147 Roundhouse Drive, BRIDGEWATER

2026-01-21
 

Quick Summary

Location
147 Roundhouse Drive, BRIDGEWATER, Nova Scotia B4V9A9
Price
$618,000 CAD
Status:
For Sale
Property Type:
Single Family
Area:
2067 sqft
Bedrooms:
3
Bathrooms:
3
Video Link:

MLS®#202601264

Property Description

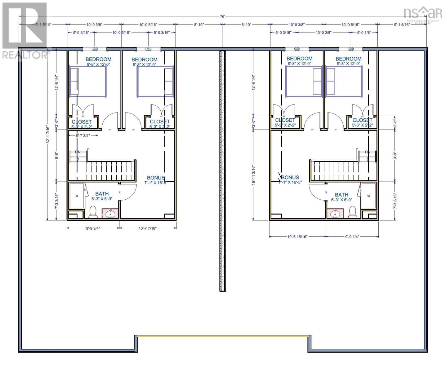
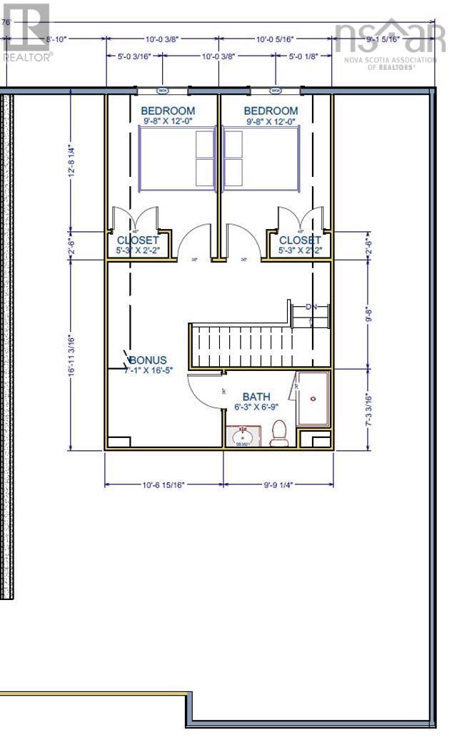
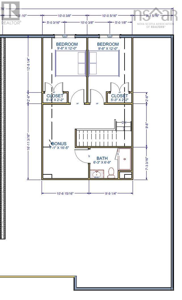
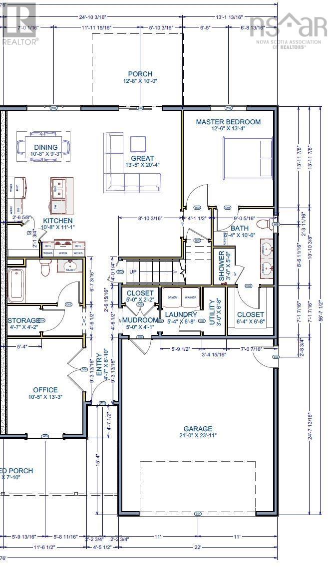
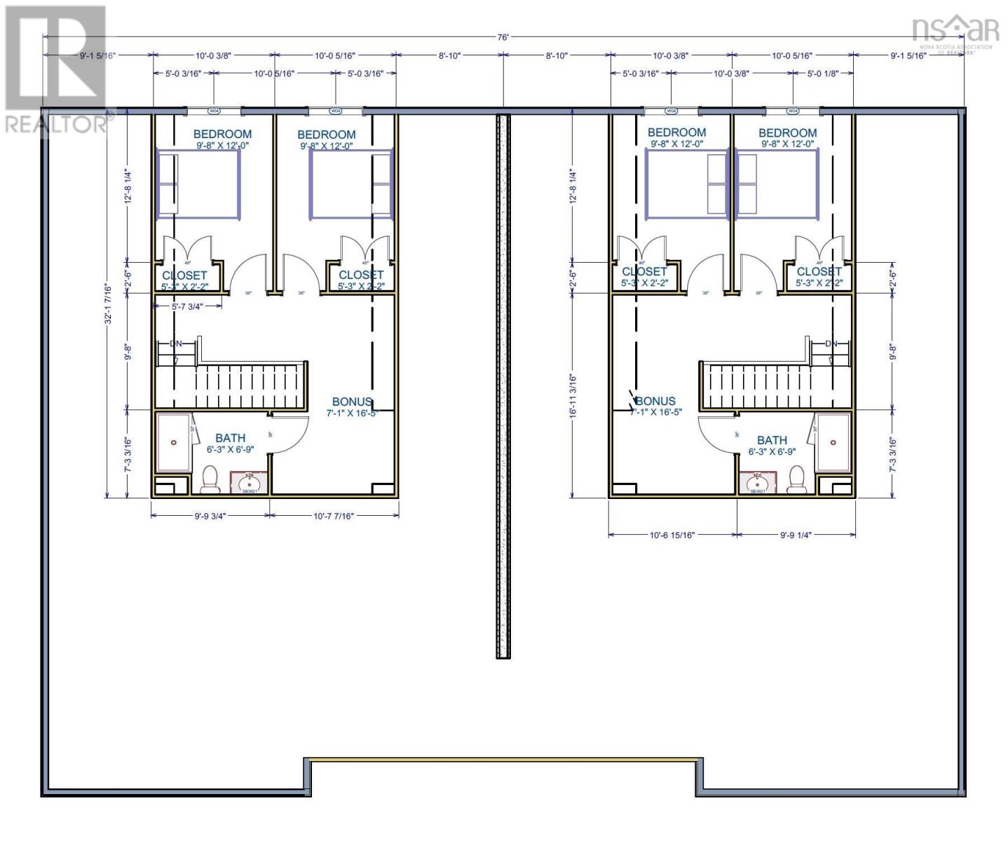
Discover this soon to be constructed stunning residential duplex located on the highly desirable Roundhouse Drive. This remarkable 2,067 sq. ft. home presents an excellent opportunity for the astute buyer, featuring 3 spacious bedrooms, den/office/4th bedroom and 3 well-appointed bathrooms. The main level offers in floor radiant heating and is where youll find the primary bedroom, complete with a luxurious 4-piece ensuite and a generous walk-in closet. Venture to the upper level, where two additional bedrooms are accompanied by a bonus area and another of the bathrooms. The impressive 9-foot ceilings on the homes lower level allow for an abundance of natural light, enhancing the overall ambiance. The open-concept layout of the kitchen, dining, and great rooms creates a seamless flow for effortless living and entertaining. Practical features include ample storage, a utility room, and a convenient laundry area located on the main floor. The double garage opens into a mudroom that easily connects to the laundry and utility spaces, ensuring a smooth transition for bringing in groceries and other items. This home is not just a residence; it's a lifestyle waiting for you and built proudly by Ziegler Homes Ltd. (id:32467)

Property Features

Ammenities Near By

  • Ammenities Near By: Golf Course, Park, Shopping, Place of Worship

Building

  • Basement Type: None
  • Construction Style: Side by side
  • Cooling Type: Wall unit, Heat Pump
  • Fireplace: No
  • Flooring Type: Vinyl Plank
  • Interior Size: 2067 sqft
  • Building Type: Duplex
  • Stories: 2
  • Utility Water: Municipal water

Land

  • Land Size: 0.5051 ac
  • Sewer: Municipal sewage system

Ownership

  • Type: Freehold

Information entered by Engel & Volkers (Lunenburg)
Listing information last updated on: 2026-01-24 19:39:57


Book your free home evaluation with a 1% REALTOR® now!


How much could you save in commission selling with One Percent Realty?

Slide to select your home's price:

$500,000

Your One Percent Realty Commission savings

$500,000

Savings calculated using One Percent Realty East Inc's posted commission rates compared to a brokerage charging 5%. (HST is extra). Not all agents charge the same.

One Percent Realty's top FAQs

Q
What is the deal exactly, with One Percent Realty East?

We are a fully licensed real estate brokerage offering the same top-tier services and exposure as the big names in the industry—but at a lower commission rate. Here's what you can expect when you work with us: ✅ Full MLS® system listing ✅ Exposure on all major internet real estate platforms ✅ Professional signage (where permitted) ✅ Property showings and open houses ✅ Strategic advertising to attract buyers ✅ Skilled negotiation to secure the best deal ✅ Seamless conveyancing to ensure a smooth closing With us, you’re getting everything you need to sell your property successfully—just without the high commission fees.

Q
What do you charge?

Simple, Transparent Pricing—No Surprises! Our commission structure is designed to save you money while providing top-tier service: • Residential Properties Under $400,000: $7,950 • Residential Properties Between $400,000 and $900,000: $9,950 • Residential Properties Over $900,000: 1% of the sale price + $950 Plus applicable taxes. Optional Flexibility: You have the option to offer additional commission to the buyer's agent. The choice is entirely yours! For commercial properties, farms, or development properties, please contact a One Percent Realty East agent directly or fill out the market evaluation form at the bottom right of our website. An agent will be in touch to discuss your specific needs. It’s that simple. Maximum service, minimum commission!

Q
Are your listings on MLS®, REALTOR.ca® and shared across the web?

Yes, yes, and yes! Our listings receive maximum exposure on the MLS® system, REALTOR.ca®, and all major real estate websites, ensuring your property gets seen by as many potential buyers as possible. With us, you’re never compromising on visibility—just saving on commission!


Learn more about the One Percent Realty Deal