Lot 5 Basin Road, EVANSTON

2024-09-21
 

Quick Summary

Location
Lot 5 Basin Road, EVANSTON, Nova Scotia B0E1J0
Price
$85,000 CAD
Status:
For Sale
Property Type:
Vacant Land

MLS®#202422890

Property Description

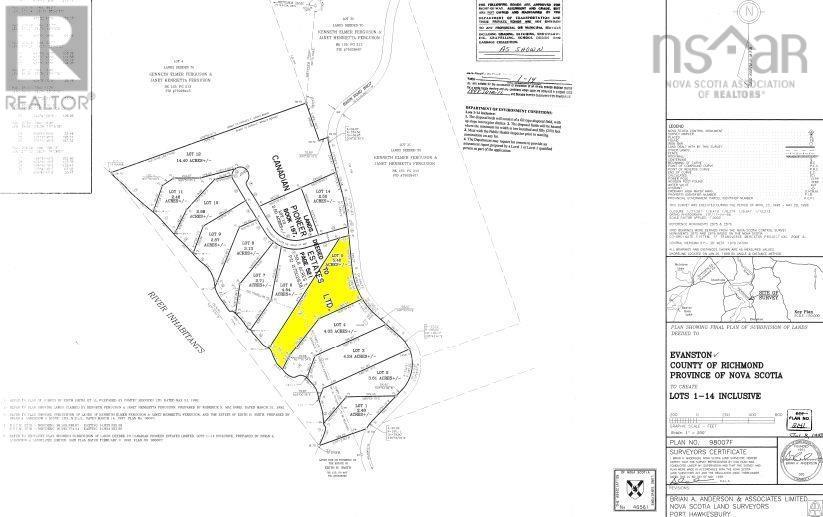
In one of Nova Scotia's most popular regions, you will find this beautiful 5.46 Acre riverfront lot (Lot 5), right on the River Inhabitants. The property, which can be used all year round, is accessed via a public road and slopes gently south-west from the road to the shore. Electricity and telephone are located directly in front of the property. High-speed internet is possible in this area without any problems. St. Peters and Port Hawkesbury with their supermarkets and various shops, schools, doctors, banks and restaurants can be reached in around 15 minutes. It is also only a quarter of an hour's drive to play golf at the Dundee Golf Club in West Bay. The world-famous Cabot Trail is around 1.5 hours' drive away and Halifax International Airport is just over two and a half hours away by car on well-developed highways. (id:32467)

Property Features

Building

  • Fireplace: No
  • Utility Water: None

Features

  • Feature: Treed

Land

  • Land Size: 5.46 ac
  • Sewer: No sewage system

Ownership

  • Type: Freehold

Information entered by EXP Realty of Canada Inc.
Listing information last updated on: 2026-03-15 17:09:40


Book your free home evaluation with a 1% REALTOR® now!


How much could you save in commission selling with One Percent Realty?

Slide to select your home's price:

$500,000

Your One Percent Realty Commission savings

$500,000

Savings calculated using One Percent Realty East Inc's posted commission rates compared to a brokerage charging 5%. (HST is extra). Not all agents charge the same.

One Percent Realty's top FAQs

Q
What is the deal exactly, with One Percent Realty East?

We are a fully licensed real estate brokerage offering the same top-tier services and exposure as the big names in the industry—but at a lower commission rate. Here's what you can expect when you work with us: ✅ Full MLS® system listing ✅ Exposure on all major internet real estate platforms ✅ Professional signage (where permitted) ✅ Property showings and open houses ✅ Strategic advertising to attract buyers ✅ Skilled negotiation to secure the best deal ✅ Seamless conveyancing to ensure a smooth closing With us, you’re getting everything you need to sell your property successfully—just without the high commission fees.

Q
What do you charge?

Simple, Transparent Pricing—No Surprises! Our commission structure is designed to save you money while providing top-tier service: • Residential Properties Under $400,000: $7,950 • Residential Properties Between $400,000 and $900,000: $9,950 • Residential Properties Over $900,000: 1% of the sale price + $950 Plus applicable taxes. Optional Flexibility: You have the option to offer additional commission to the buyer's agent. The choice is entirely yours! For commercial properties, farms, or development properties, please contact a One Percent Realty East agent directly or fill out the market evaluation form at the bottom right of our website. An agent will be in touch to discuss your specific needs. It’s that simple. Maximum service, minimum commission!

Q
Are your listings on MLS®, REALTOR.ca® and shared across the web?

Yes, yes, and yes! Our listings receive maximum exposure on the MLS® system, REALTOR.ca®, and all major real estate websites, ensuring your property gets seen by as many potential buyers as possible. With us, you’re never compromising on visibility—just saving on commission!


Learn more about the One Percent Realty Deal