Lot 25-5 Michaela Street, PICTOU

2025-04-02
 

Quick Summary

Location
Lot 25-5 Michaela Street, PICTOU, Nova Scotia B0K1H0
Price
$374,900 CAD
Status:
For Sale
Property Type:
Single Family
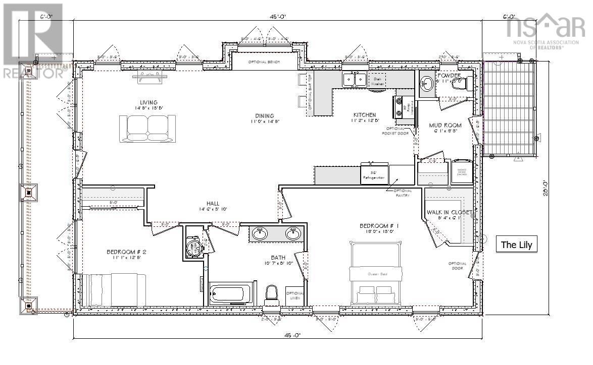
Area:
1260 sqft
Bedrooms:
2
Bathrooms:
2
Video Link:

MLS®#202506480

Property Description

This is a Facsimile Listing for a New Build. Photos included are Artist Renderings. Welcome to The Lily - Effortless living by the sea. Discover your perfect your round retreat at RoseView Estates, a new subdivision in picturesque Pictou. Designed with comfort and convenience in mind, "The Lily" is ideal for remote workers and those looking for a worry-free, all-inclusive lifestyle in a charming seaside town - with no condo fees. Located just minutes from Pictous historic waterfront, hospitals, boutique shops, and delightful dining spots, RoseView Estates offers the perfect blend of small-town charm and modern sophistication. Each home is built with Insulated Concrete Form (ICF) foundations for superior strength, energy efficiency, and year-round comfort. Why youll love living here? Bright, spacious homes: Open-concept layouts and oversized windows flood your home with natural lightperfect for creating a calming workspace or enjoying peaceful mornings with a cup of coffee. Designer Kitchens: Featuring custom cabinetry and premium countertops these kitchens make cooking a pleasure, whether you're whipping up a quick lunch or hosting friends. Low-maintenance comfort: A three-year landscaping contract covering lawn care and snow removal means you can focus on what matters most. Added amenities for an easy lifestyle: Personalize your space with options like cortex flooring and ceiling-high cabinets. Professionally designed green spaces provide tranquillity and a sense of community. RoseView Estates makes life simple, stylish, and serene. Here, you'll enjoy the charm of coastal living without the upkeep. (id:32467)

Property Features

Ammenities Near By

  • Ammenities Near By: Playground, Public Transit, Shopping, Place of Worship, Beach

Building

  • Basement Type: None
  • Construction Style: Detached
  • Cooling Type: Heat Pump
  • Exterior Finish: Vinyl
  • Fireplace: No
  • Flooring Type: Laminate
  • Interior Size: 1260 sqft
  • Building Type: House
  • Stories: 1
  • Utility Water: Municipal water

Land

  • Land Size: 0.129 ac
  • Sewer: Municipal sewage system

Ownership

  • Type: Freehold

Information entered by The Agency Real Estate Brokerage
Listing information last updated on: 2025-11-06 20:00:21


Book your free home evaluation with a 1% REALTOR® now!


How much could you save in commission selling with One Percent Realty?

Slide to select your home's price:

$500,000

Your One Percent Realty Commission savings

$500,000

Savings calculated using One Percent Realty East Inc’s posted commission rates compared to a brokerage charging 5%. (HST is extra). Not all agents charge the same.

One Percent Realty's top FAQs

Q
What is the deal exactly, with One Percent Realty East?

We are a fully licensed real estate brokerage offering the same top-tier services and exposure as the big names in the industry—but at a lower commission rate. Here's what you can expect when you work with us: ✅ Full MLS® system listing ✅ Exposure on all major internet real estate platforms ✅ Professional signage (where permitted) ✅ Property showings and open houses ✅ Strategic advertising to attract buyers ✅ Skilled negotiation to secure the best deal ✅ Seamless conveyancing to ensure a smooth closing With us, you’re getting everything you need to sell your property successfully—just without the high commission fees.

Q
What do you charge?

Simple, Transparent Pricing—No Surprises! Our commission structure is designed to save you money while providing top-tier service: • Residential Properties Under $400,000: $7,950 • Residential Properties Between $400,000 and $900,000: $9,950 • Residential Properties Over $900,000: 1% of the sale price + $950 Plus applicable taxes. Optional Flexibility: You have the option to offer additional commission to the buyer's agent. The choice is entirely yours! For commercial properties, farms, or development properties, please contact a One Percent Realty East agent directly or fill out the market evaluation form at the bottom right of our website. An agent will be in touch to discuss your specific needs. It’s that simple. Maximum service, minimum commission!

Q
Are your listings on MLS®, REALTOR.ca® and shared across the web?

Yes, yes, and yes! Our listings receive maximum exposure on the MLS® system, REALTOR.ca®, and all major real estate websites, ensuring your property gets seen by as many potential buyers as possible. With us, you’re never compromising on visibility—just saving on commission!


Learn more about the One Percent Realty Deal