75 Q12 Road, LAKE GEORGE

2025-04-09
 

Quick Summary

Location
75 Q12 Road, LAKE GEORGE, Nova Scotia B0P1C0
Price
$443,900 CAD
Status:
For Sale
Property Type:
Single Family
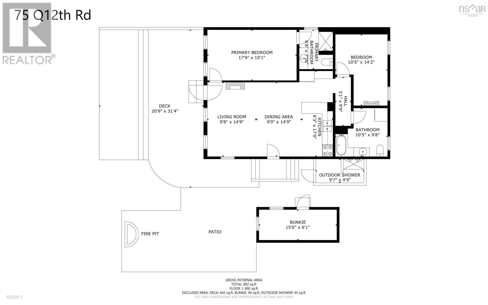
Area:
857 sqft
Bedrooms:
2
Bathrooms:
2
Year of Construction:
2013
Video Link:

MLS®#202507301

Property Description

Welcome to your luxurious year-round bungalow or your extravagant weekend retreat tucked away in a peaceful cove on Lake George, one of Nova Scotias most stunning lakes. This low-maintenance property is beautifully finished and designed for both comfort and ease of ownership. Featuring 2 bedrooms and 2 bathrooms, including a 3-piece ensuite, it offers all the luxuries of home in a serene lakeside setting. Inside, enjoy breathtaking lake views and high-end finishes, including hardwood and tile floors and Corian countertops. A heat pump ensures year-round comfort, keeping you cool in the summer and warm in the winter. From the lake to the spacious deck, this property is made for unforgettable summers perfect for hosting friends and family. An outdoor shower with hot and cold water makes it easy to rinse off after a swim or paddle, keeping the interior fresh and clean. The property also includes a shed for storage and a Bunkie for extra storage, making it an ideal space for both relaxation and entertaining. A rare opportunity to own a low-maintenance luxury bungalow, tucked away in a cove on Lake George (id:32467)

Property Features

Ammenities Near By

  • Ammenities Near By: Beach

Building

  • Appliances: Stove, Dryer, Washer, Microwave Range Hood Combo, Refrigerator
  • Construction Style: Detached
  • Cooling Type: Heat Pump
  • Exterior Finish: Wood shingles
  • Fireplace: No
  • Flooring Type: Hardwood, Tile
  • Interior Size: 857 sqft
  • Building Type: House
  • Stories: 1
  • Utility Water: Drilled Well

Features

  • Feature: Level

Land

  • Land Size: 0.0823 ac
  • Sewer: Septic System

Ownership

  • Type: Freehold

Structure

  • Structure: Shed

Information entered by Exit Realty Town & Country
Listing information last updated on: 2025-10-08 13:10:06


Book your free home evaluation with a 1% REALTOR® now!


How much could you save in commission selling with One Percent Realty?

Slide to select your home's price:

$500,000

Your One Percent Realty Commission savings

$500,000

Savings calculated using One Percent Realty East Inc’s posted commission rates compared to a brokerage charging 5%. (HST is extra). Not all agents charge the same.

One Percent Realty's top FAQs

Q
What is the deal exactly, with One Percent Realty East?

We are a fully licensed real estate brokerage offering the same top-tier services and exposure as the big names in the industry—but at a lower commission rate. Here's what you can expect when you work with us: ✅ Full MLS® system listing ✅ Exposure on all major internet real estate platforms ✅ Professional signage (where permitted) ✅ Property showings and open houses ✅ Strategic advertising to attract buyers ✅ Skilled negotiation to secure the best deal ✅ Seamless conveyancing to ensure a smooth closing With us, you’re getting everything you need to sell your property successfully—just without the high commission fees.

Q
What do you charge?

Simple, Transparent Pricing—No Surprises! Our commission structure is designed to save you money while providing top-tier service: • Residential Properties Under $400,000: $7,950 • Residential Properties Between $400,000 and $900,000: $9,950 • Residential Properties Over $900,000: 1% of the sale price + $950 Plus applicable taxes. Optional Flexibility: You have the option to offer additional commission to the buyer's agent. The choice is entirely yours! For commercial properties, farms, or development properties, please contact a One Percent Realty East agent directly or fill out the market evaluation form at the bottom right of our website. An agent will be in touch to discuss your specific needs. It’s that simple. Maximum service, minimum commission!

Q
Are your listings on MLS®, REALTOR.ca® and shared across the web?

Yes, yes, and yes! Our listings receive maximum exposure on the MLS® system, REALTOR.ca®, and all major real estate websites, ensuring your property gets seen by as many potential buyers as possible. With us, you’re never compromising on visibility—just saving on commission!


Learn more about the One Percent Realty Deal