632 Oakland Road, INDIAN POINT

2025-05-04
 

Quick Summary

Location
632 Oakland Road, INDIAN POINT, Nova Scotia B0J2E0
Price
$479,000 CAD
Status:
For Sale
Property Type:
Single Family
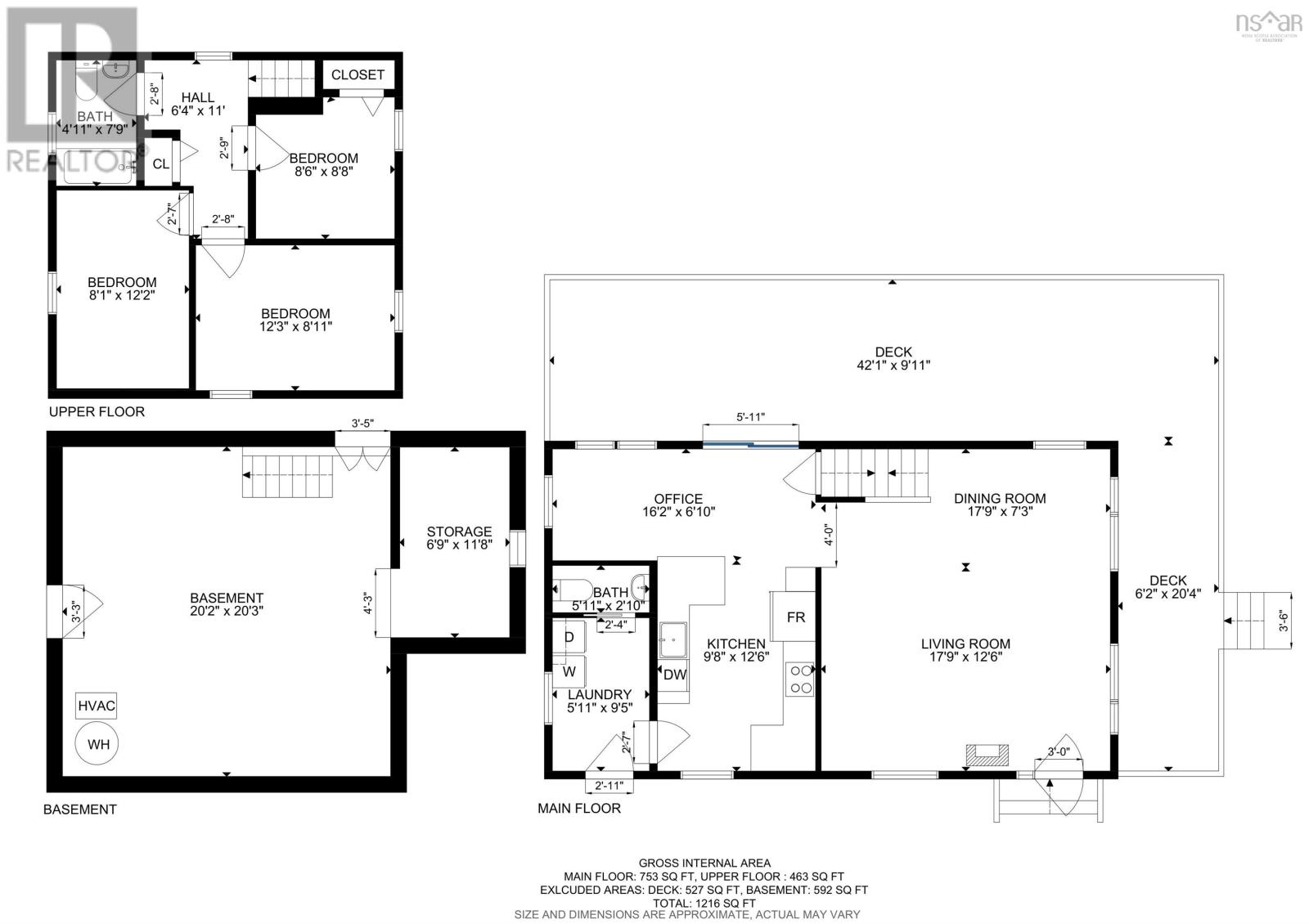
Area:
1215 sqft
Bedrooms:
3
Bathrooms:
2
Year of Construction:
1954
Video Link:

MLS®#202509750

Property Description

This mid-20th century home has a quiet, idyllic enclave by the ocean. Nestled in what was once an active fishing village, Indian Point is an unassuming sought-after location on Nova Scotia's beautiful South Shore. The house overlooks a small bridge and a sheltered cove and beyond to the islands of greater Mahone Bay. The property directly fronts on a tidal pond, with its abundant wildlife, and is surrounded by long established, good neighbours - just over five minutes drive to Mahone Bay by the sea. The house has a clean, simple, traditional design. The former front porch has been incorporated into the main living-dining space and provides lovely views over the water. The kitchen "L" has been recently renovated with manufactured-stone countertops, a convection cooktop and stainless appliances. The appealing casual dining area has sliding glass doors off the breakfast nook with access to an exterior deck allowing for views of the pond. The rear mudroom-laundry has a powder room at one end and is located immediately off the driveway with ample parking for three cars. This home also features a new, high efficiency, propane furnace and a new septic system. A recently constructed 20 ft. by 20 ft. workshop would also serve well as an at-home office or studio, or seasonal bunky for grandchildren. The second floor features three bedrooms and the family bath. This home also features a recently installed, high efficiency, propane furnace. Indian Point is an active, walkable community ideal for seniors or young families. There is a possibility of a mooring in the bay and the village is just minutes drive to the 103 Highway, with Bridgewater a 15 minute drive, and Halifax or the airport just over one hour's drive. Whether full-time home, seasonal retreat, or as a tourist destination, this home offers lifestyle and convenience at an affordable price, on the waters of Mahone Bay ! (id:32467)

Property Features

Building

  • Appliances: Central Vacuum, Oven - Electric, Dishwasher, Dryer - Electric, Washer, Microwave Range Hood Combo, Refrigerator
  • Basement Development: Unfinished
  • Basement Type: Full (Unfinished)
  • Construction Style: Detached
  • Exterior Finish: Wood shingles
  • Fireplace: Yes
  • Flooring Type: Carpeted, Wood, Tile
  • Interior Size: 1215 sqft
  • Building Type: House
  • Stories: 1.5
  • Utility Water: Dug Well

Land

  • Land Size: 0.202 ac
  • Sewer: Septic System

Ownership

  • Type: Freehold

Structure

  • Structure: Shed

Information entered by Engel & Volkers (Lunenburg)
Listing information last updated on: 2025-10-22 13:50:28


Book your free home evaluation with a 1% REALTOR® now!


How much could you save in commission selling with One Percent Realty?

Slide to select your home's price:

$500,000

Your One Percent Realty Commission savings

$500,000

Savings calculated using One Percent Realty East Inc’s posted commission rates compared to a brokerage charging 5%. (HST is extra). Not all agents charge the same.

One Percent Realty's top FAQs

Q
What is the deal exactly, with One Percent Realty East?

We are a fully licensed real estate brokerage offering the same top-tier services and exposure as the big names in the industry—but at a lower commission rate. Here's what you can expect when you work with us: ✅ Full MLS® system listing ✅ Exposure on all major internet real estate platforms ✅ Professional signage (where permitted) ✅ Property showings and open houses ✅ Strategic advertising to attract buyers ✅ Skilled negotiation to secure the best deal ✅ Seamless conveyancing to ensure a smooth closing With us, you’re getting everything you need to sell your property successfully—just without the high commission fees.

Q
What do you charge?

Simple, Transparent Pricing—No Surprises! Our commission structure is designed to save you money while providing top-tier service: • Residential Properties Under $400,000: $7,950 • Residential Properties Between $400,000 and $900,000: $9,950 • Residential Properties Over $900,000: 1% of the sale price + $950 Plus applicable taxes. Optional Flexibility: You have the option to offer additional commission to the buyer's agent. The choice is entirely yours! For commercial properties, farms, or development properties, please contact a One Percent Realty East agent directly or fill out the market evaluation form at the bottom right of our website. An agent will be in touch to discuss your specific needs. It’s that simple. Maximum service, minimum commission!

Q
Are your listings on MLS®, REALTOR.ca® and shared across the web?

Yes, yes, and yes! Our listings receive maximum exposure on the MLS® system, REALTOR.ca®, and all major real estate websites, ensuring your property gets seen by as many potential buyers as possible. With us, you’re never compromising on visibility—just saving on commission!


Learn more about the One Percent Realty Deal