155 Rocky Ridge Road, TRURO HEIGHTS

2025-05-26
 

Quick Summary

Location
155 Rocky Ridge Road, TRURO HEIGHTS, Nova Scotia B6L1S6
Price
$599,900 CAD
Status:
For Sale
Property Type:
Single Family
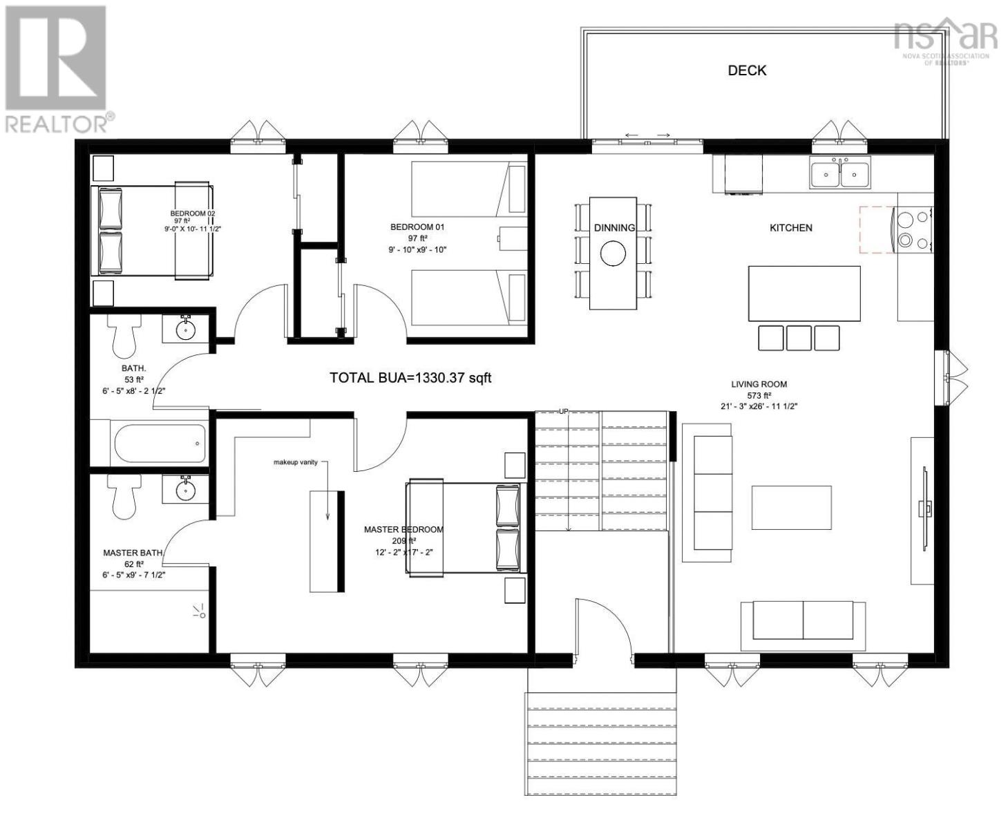
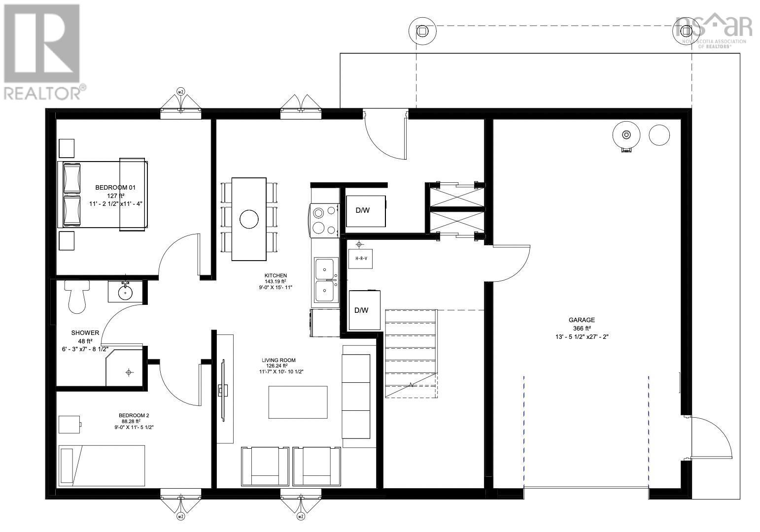
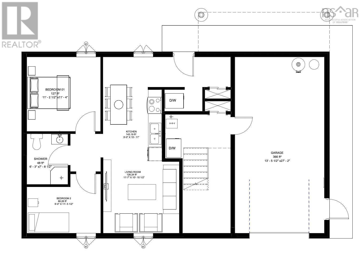
Area:
2660 sqft
Bedrooms:
3 bed +2
Bathrooms:
3

MLS®#202512266

Property Description

Move in for Christmas! This stunning new construction home with a legal rental suite just minutes away from everything Truro has to offer will be ready for occupancy this December. This beautifully built 5-bedroom, 3-bathroom offers exceptional quality, spacious living, and modern functionality. The main level features premium steel framing for superior durability and peace of mind, while the open-concept layout provides a bright and airy feel throughout. This level has three generously sized bedrooms and two bathrooms. Enjoy high-end finishes, sleek fixtures, and thoughtful design in every room. Not to mention, the primary bedroom is a true retreat. Boasting a generous walk-in closet and spa-inspired ensuite. A standout feature is the legal rental unit on the lower level featuring two bedrooms and one bathroom perfect for generating income or accommodating extended family. Additional highlights include 9 foot ceilings, a concrete walkway, exquisite kitchen design, two electrical panels, two hot water tanks, two HRV systems and many more! Don't miss this opportunity to own this beautifully constructed home with investment potential. Bonus: the lower level has just been issued its own civic as 157 Rocky Ridge Road. Book your private showing today! (id:32467)

Property Features

Ammenities Near By

  • Ammenities Near By: Park, Shopping

Building

  • Appliances: None
  • Construction Style: Detached
  • Cooling Type: Heat Pump
  • Exterior Finish: Vinyl
  • Fireplace: No
  • Flooring Type: Porcelain Tile, Vinyl
  • Interior Size: 2660 sqft
  • Building Type: House
  • Stories: 1
  • Utility Water: Well

Land

  • Land Size: 0.379 ac
  • Sewer: Municipal sewage system

Ownership

  • Type: Freehold

Information entered by RE/MAX Nova (Halifax)
Listing information last updated on: 2025-12-02 14:09:49


Book your free home evaluation with a 1% REALTOR® now!


How much could you save in commission selling with One Percent Realty?

Slide to select your home's price:

$500,000

Your One Percent Realty Commission savings

$500,000

Savings calculated using One Percent Realty East Inc’s posted commission rates compared to a brokerage charging 5%. (HST is extra). Not all agents charge the same.

One Percent Realty's top FAQs

Q
What is the deal exactly, with One Percent Realty East?

We are a fully licensed real estate brokerage offering the same top-tier services and exposure as the big names in the industry—but at a lower commission rate. Here's what you can expect when you work with us: ✅ Full MLS® system listing ✅ Exposure on all major internet real estate platforms ✅ Professional signage (where permitted) ✅ Property showings and open houses ✅ Strategic advertising to attract buyers ✅ Skilled negotiation to secure the best deal ✅ Seamless conveyancing to ensure a smooth closing With us, you’re getting everything you need to sell your property successfully—just without the high commission fees.

Q
What do you charge?

Simple, Transparent Pricing—No Surprises! Our commission structure is designed to save you money while providing top-tier service: • Residential Properties Under $400,000: $7,950 • Residential Properties Between $400,000 and $900,000: $9,950 • Residential Properties Over $900,000: 1% of the sale price + $950 Plus applicable taxes. Optional Flexibility: You have the option to offer additional commission to the buyer's agent. The choice is entirely yours! For commercial properties, farms, or development properties, please contact a One Percent Realty East agent directly or fill out the market evaluation form at the bottom right of our website. An agent will be in touch to discuss your specific needs. It’s that simple. Maximum service, minimum commission!

Q
Are your listings on MLS®, REALTOR.ca® and shared across the web?

Yes, yes, and yes! Our listings receive maximum exposure on the MLS® system, REALTOR.ca®, and all major real estate websites, ensuring your property gets seen by as many potential buyers as possible. With us, you’re never compromising on visibility—just saving on commission!


Learn more about the One Percent Realty Deal