UNIT 36 SWEETLAND Road, SWEETLAND

2025-06-22
 

Quick Summary

Location
UNIT 36 SWEETLAND Road, SWEETLAND, Nova Scotia B0J1E0
Price
$683,999 CAD
Status:
For Sale
Property Type:
Single Family
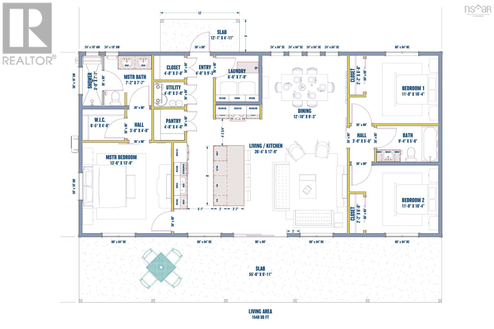
Area:
1540 sqft
Bedrooms:
3
Bathrooms:
2

MLS®#202515241

Property Description

Lot 36, Sweetland Estates Turn-Key Lakeside Living 1,540 Sq. Ft. Home Included Experience effortless lakeside living with Lot 36 in Sweetland Estatesa fully turn-key package that includes both the lot and a beautifully finished 1,540 sq. ft. home, already in place and ready for immediate occupancy. Perfectly suited for buyers seeking comfort, quality, and convenience, this move-in-ready property features thoughtful design, modern finishes, and a peaceful, nature-filled setting. Enjoy all the benefits of this established lakeside communityincluding exclusive access to Old Sweetland Beach on Big Mushamush Lakeideal for swimming, boating, and relaxing by the water. Whether you're looking for a full-time residence or a ready-to-enjoy retreat, Lot 36 offers a rare opportunity to skip the build and start living the lakeside lifestyle right away. Just a short drive from Bridgewater and South Shore amenities, this is a seamless blend of rural charm and modern ease. (id:32467)

Property Features

Building

  • Appliances: Range - Electric, Dishwasher, Dryer - Electric, Washer, Refrigerator
  • Architectural Style: Bungalow
  • Basement Type: None
  • Construction Style: Detached
  • Cooling Type: Central air conditioning, Heat Pump
  • Exterior Finish: Vinyl
  • Fireplace: No
  • Flooring Type: Laminate
  • Interior Size: 1540 sqft
  • Stories: 1
  • Utility Water: Drilled Well

Land

  • Land Size: 1.09 ac
  • Sewer: Septic System

Maintenance Fee

  • Maintenance Fee: 36.71

Ownership

  • Type: Condominium/Strata

Information entered by Holm Realty Limited
Listing information last updated on: 2026-02-25 19:59:26


Book your free home evaluation with a 1% REALTOR® now!


How much could you save in commission selling with One Percent Realty?

Slide to select your home's price:

$500,000

Your One Percent Realty Commission savings

$500,000

Savings calculated using One Percent Realty East Inc's posted commission rates compared to a brokerage charging 5%. (HST is extra). Not all agents charge the same.

One Percent Realty's top FAQs

Q
What is the deal exactly, with One Percent Realty East?

We are a fully licensed real estate brokerage offering the same top-tier services and exposure as the big names in the industry—but at a lower commission rate. Here's what you can expect when you work with us: ✅ Full MLS® system listing ✅ Exposure on all major internet real estate platforms ✅ Professional signage (where permitted) ✅ Property showings and open houses ✅ Strategic advertising to attract buyers ✅ Skilled negotiation to secure the best deal ✅ Seamless conveyancing to ensure a smooth closing With us, you’re getting everything you need to sell your property successfully—just without the high commission fees.

Q
What do you charge?

Simple, Transparent Pricing—No Surprises! Our commission structure is designed to save you money while providing top-tier service: • Residential Properties Under $400,000: $7,950 • Residential Properties Between $400,000 and $900,000: $9,950 • Residential Properties Over $900,000: 1% of the sale price + $950 Plus applicable taxes. Optional Flexibility: You have the option to offer additional commission to the buyer's agent. The choice is entirely yours! For commercial properties, farms, or development properties, please contact a One Percent Realty East agent directly or fill out the market evaluation form at the bottom right of our website. An agent will be in touch to discuss your specific needs. It’s that simple. Maximum service, minimum commission!

Q
Are your listings on MLS®, REALTOR.ca® and shared across the web?

Yes, yes, and yes! Our listings receive maximum exposure on the MLS® system, REALTOR.ca®, and all major real estate websites, ensuring your property gets seen by as many potential buyers as possible. With us, you’re never compromising on visibility—just saving on commission!


Learn more about the One Percent Realty Deal