9878 Main Street, CANNING

2025-07-08
 

Quick Summary

Location
9878 Main Street, CANNING, Nova Scotia B0P1H0
Price
$1,390,000 CAD
Status:
For Sale
Property Type:
Single Family
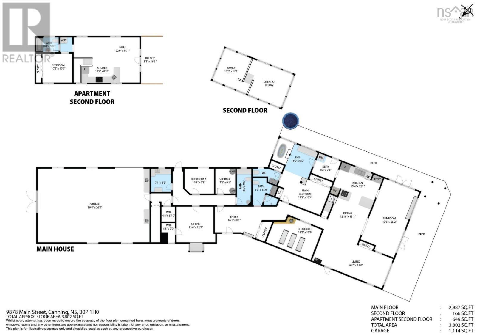
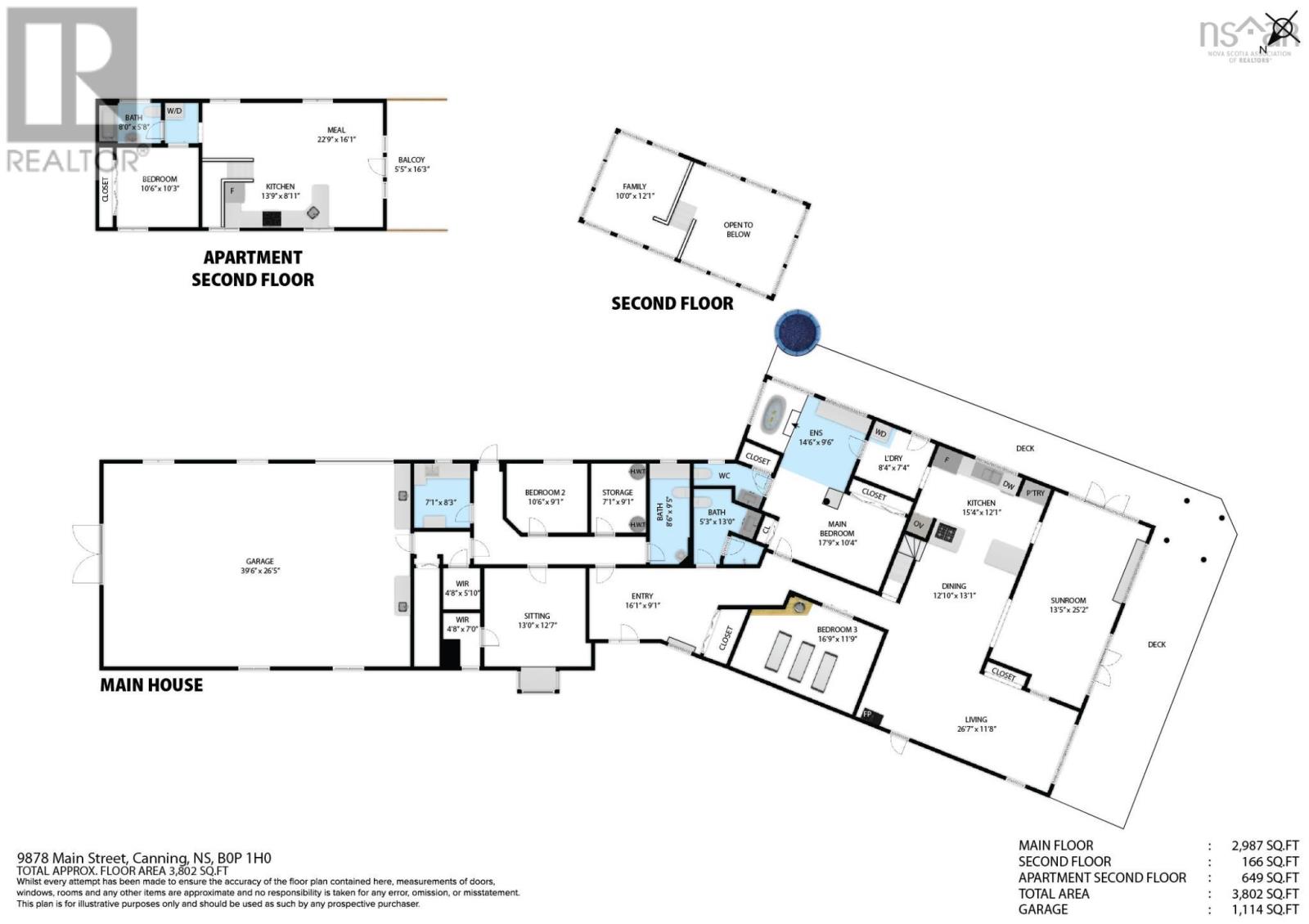
Area:
3802 sqft
Bedrooms:
5
Bathrooms:
4
Year of Construction:
2008
Video Link:

MLS®#202516976

Property Description

Live, work, host, and createall within one beautifully designed structure offering a main residence, private apartment, professional office suite, and expansive workshop. A rare and remarkable offering just steps from the charming heart of Canning where you can walk to all amenities; 15 minutes from Wolfville and Acadia University and excellent access to the highway. This distinctive waterfront property is a harmonious blend of architectural elegance and thoughtful design. Set along the banks of the Habitant River, the residence is nestled among beautifully landscaped grounds filled with mature flowering trees and shrubs, and spacious gardens, offering a tranquil retreat. The main home, an artful two-bedroom, two-bathroom masterpiece, is flooded with natural light and features a striking west-facing solarium, open concept living space with a sizable loft with every part bathed in natural light. A south-facing kitchen overlooks the lush gardens, while elegant architectural details and solid ICF construction ensure both beauty and energy efficiency. This exceptional property offers a rare versatility with four distinct spaces. Attached to the main house is a dedicated two-office suite with accessible washroom, kitchenette and private entrance providing an ideal space for a home-based business or studio. An impressive two-storey high garage/shop adds further opportunity and flexibility. A self-contained bright, one-bedroom apartment on the second floor features warm cork flooring and captivating views. Every element of this home has been designed for elegance, function, and connection to its natural surroundingsa private sanctuary with unlimited potential in one of Nova Scotias most vibrant and sought-after communities. (id:32467)

Property Features

Ammenities Near By

  • Ammenities Near By: Park, Shopping, Beach

Building

  • Basement Type: None
  • Construction Style: Detached
  • Exterior Finish: Stucco
  • Fireplace: No
  • Flooring Type: Ceramic Tile, Cork
  • Interior Size: 3802 sqft
  • Building Type: House
  • Stories: 2
  • Utility Water: Municipal water

Land

  • Land Size: 2.08 ac
  • Sewer: Municipal sewage system

Ownership

  • Type: Freehold

Information entered by Engel & Volkers
Listing information last updated on: 2025-10-08 18:20:51


Book your free home evaluation with a 1% REALTOR® now!


How much could you save in commission selling with One Percent Realty?

Slide to select your home's price:

$500,000

Your One Percent Realty Commission savings

$500,000

Savings calculated using One Percent Realty East Inc’s posted commission rates compared to a brokerage charging 5%. (HST is extra). Not all agents charge the same.

One Percent Realty's top FAQs

Q
What is the deal exactly, with One Percent Realty East?

We are a fully licensed real estate brokerage offering the same top-tier services and exposure as the big names in the industry—but at a lower commission rate. Here's what you can expect when you work with us: ✅ Full MLS® system listing ✅ Exposure on all major internet real estate platforms ✅ Professional signage (where permitted) ✅ Property showings and open houses ✅ Strategic advertising to attract buyers ✅ Skilled negotiation to secure the best deal ✅ Seamless conveyancing to ensure a smooth closing With us, you’re getting everything you need to sell your property successfully—just without the high commission fees.

Q
What do you charge?

Simple, Transparent Pricing—No Surprises! Our commission structure is designed to save you money while providing top-tier service: • Residential Properties Under $400,000: $7,950 • Residential Properties Between $400,000 and $900,000: $9,950 • Residential Properties Over $900,000: 1% of the sale price + $950 Plus applicable taxes. Optional Flexibility: You have the option to offer additional commission to the buyer's agent. The choice is entirely yours! For commercial properties, farms, or development properties, please contact a One Percent Realty East agent directly or fill out the market evaluation form at the bottom right of our website. An agent will be in touch to discuss your specific needs. It’s that simple. Maximum service, minimum commission!

Q
Are your listings on MLS®, REALTOR.ca® and shared across the web?

Yes, yes, and yes! Our listings receive maximum exposure on the MLS® system, REALTOR.ca®, and all major real estate websites, ensuring your property gets seen by as many potential buyers as possible. With us, you’re never compromising on visibility—just saving on commission!


Learn more about the One Percent Realty Deal