6519 Chester Avenue, HALIFAX

2025-07-15
 

Quick Summary

Location
6519 Chester Avenue, HALIFAX, Nova Scotia B3L2P5
Price
$415,000 CAD
Status:
For Sale
Property Type:
Single Family
Area:
816 sqft
Bedrooms:
2
Bathrooms:
1
Year of Construction:
1943

MLS®#202517663

Property Description

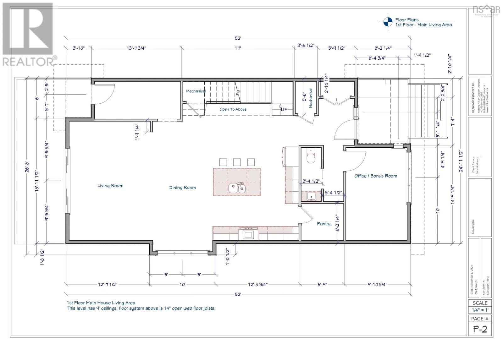
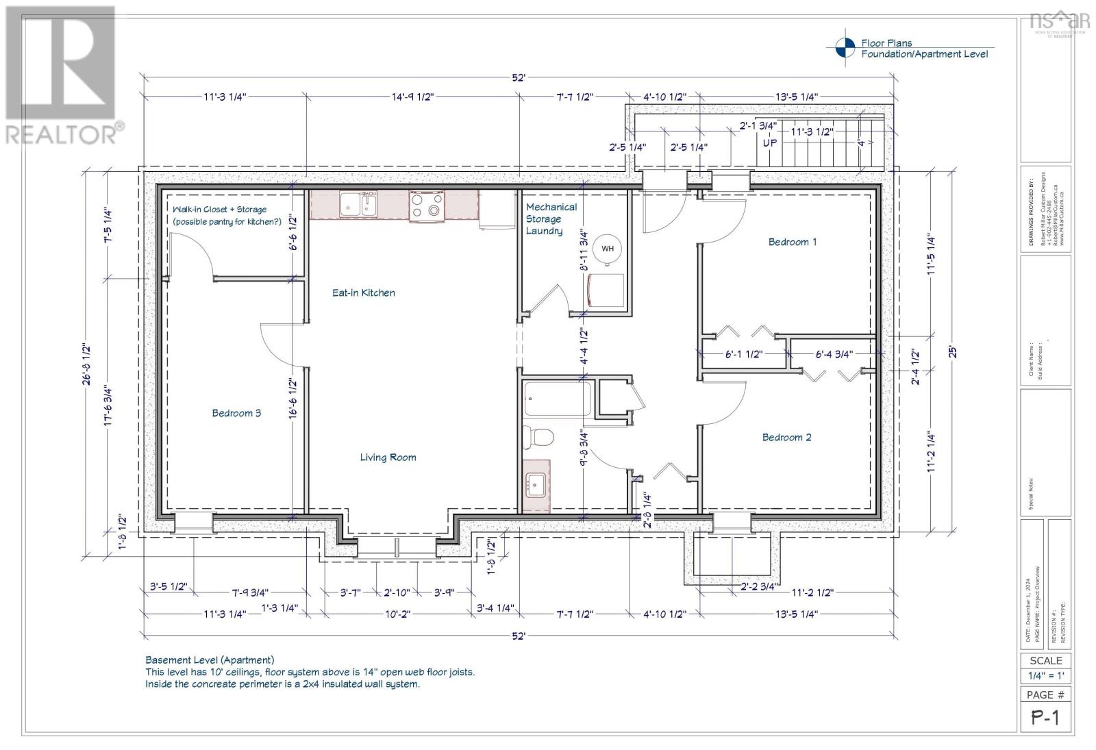
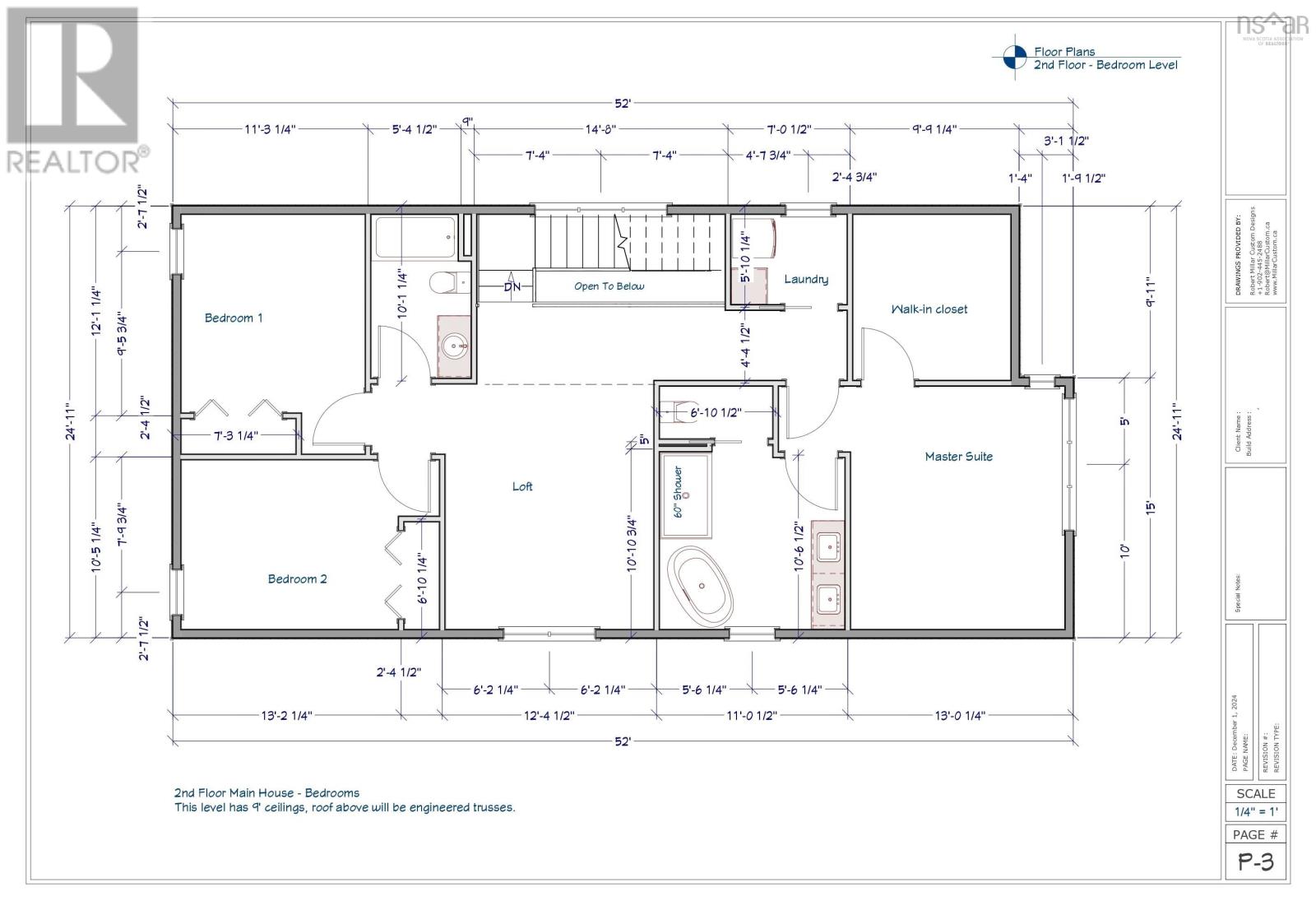
Opportunity for development on the Peninsula! Highly sought-after West End location with walking distance to St. Catherines Elementary School and Halifax Independent School. This home will likely need to be taken back to the studs or torn down completely. The property is being sold as is, where is. See plans for ideas about your new dream home!!! (id:32467)

Property Features

Building

  • Appliances: None
  • Architectural Style: Bungalow
  • Basement Type: Full
  • Construction Style: Detached
  • Exterior Finish: Vinyl
  • Fireplace: No
  • Interior Size: 816 sqft
  • Building Type: House
  • Stories: 1
  • Utility Water: Municipal water

Land

  • Land Size: 0.0918 ac
  • Sewer: Municipal sewage system

Ownership

  • Type: Freehold

Information entered by Engel & Volkers
Listing information last updated on: 2025-10-17 16:36:05


Book your free home evaluation with a 1% REALTOR® now!


How much could you save in commission selling with One Percent Realty?

Slide to select your home's price:

$500,000

Your One Percent Realty Commission savings

$500,000

Savings calculated using One Percent Realty East Inc’s posted commission rates compared to a brokerage charging 5%. (HST is extra). Not all agents charge the same.

Send a Message


One Percent Realty's top FAQs

Q
What is the deal exactly, with One Percent Realty East?

We are a fully licensed real estate brokerage offering the same top-tier services and exposure as the big names in the industry—but at a lower commission rate. Here's what you can expect when you work with us: ✅ Full MLS® system listing ✅ Exposure on all major internet real estate platforms ✅ Professional signage (where permitted) ✅ Property showings and open houses ✅ Strategic advertising to attract buyers ✅ Skilled negotiation to secure the best deal ✅ Seamless conveyancing to ensure a smooth closing With us, you’re getting everything you need to sell your property successfully—just without the high commission fees.

Q
What do you charge?

Simple, Transparent Pricing—No Surprises! Our commission structure is designed to save you money while providing top-tier service: • Residential Properties Under $400,000: $7,950 • Residential Properties Between $400,000 and $900,000: $9,950 • Residential Properties Over $900,000: 1% of the sale price + $950 Plus applicable taxes. Optional Flexibility: You have the option to offer additional commission to the buyer's agent. The choice is entirely yours! For commercial properties, farms, or development properties, please contact a One Percent Realty East agent directly or fill out the market evaluation form at the bottom right of our website. An agent will be in touch to discuss your specific needs. It’s that simple. Maximum service, minimum commission!

Q
Are your listings on MLS®, REALTOR.ca® and shared across the web?

Yes, yes, and yes! Our listings receive maximum exposure on the MLS® system, REALTOR.ca®, and all major real estate websites, ensuring your property gets seen by as many potential buyers as possible. With us, you’re never compromising on visibility—just saving on commission!


Learn more about the One Percent Realty Deal

 

Alison McNair REALTOR®

Phone:
(902) 830-4363
Email:
alisonmcnair@eastlink.ca
Support Area:
Halifax Municipality and surrounding areas, Elmsdale, Enfield, Belnan, Nine Mile RIver

With over 11 years experience in the real estate industry you can count on a high level of success ...

Full Profile

 

Adrienne Briand BROKER/REALTOR®

Phone:
(902) 499-7998
Mobile:
(902) 499-7998
Email:
abriand@onepercentrealty.com
Support Area:
Bedford, Hammonds Plains, . Halifax, Dartmouth, Sackville, Enfield, Elmsdale, Tantallon, Timberlea, West Bedford, Bedford South, Glen Haven, Glen Margaret, Boutiliers Point

Entering into the buying or selling market can be an overwhelming experience, but with the right REA ...

Full Profile

 

Natalie Urquhart B.A, REALTOR ®, AIC Candidate Member (Appraisal Institute of Canada)

Phone:
(902) 489-0700
Email:
natalieonepercent@gmail.com
Support Area:
Bedford, Halifax, Dartmouth, Tantallon, Timberlea, Sackville, Elmsdale, Enfield, Chester, St Margarets Bay, Ellershouse, Beaver Bank

Selling and buying a home is a significant event. Natalie is a professional who will listen to your ...

Full Profile