21 Vista Lane, MOUNT UNIACKE

2025-08-01
 

Quick Summary

Location
21 Vista Lane, MOUNT UNIACKE, Nova Scotia B0N1Z0
Price
$185,000 CAD
Status:
For Sale
Property Type:
Vacant Land

MLS®#202519441

Property Description

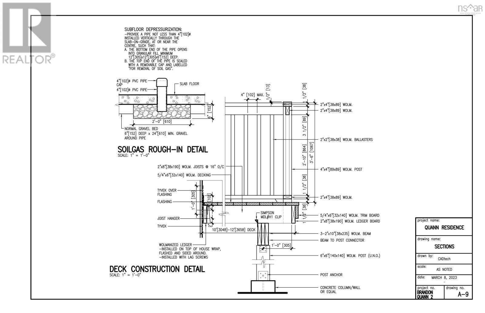
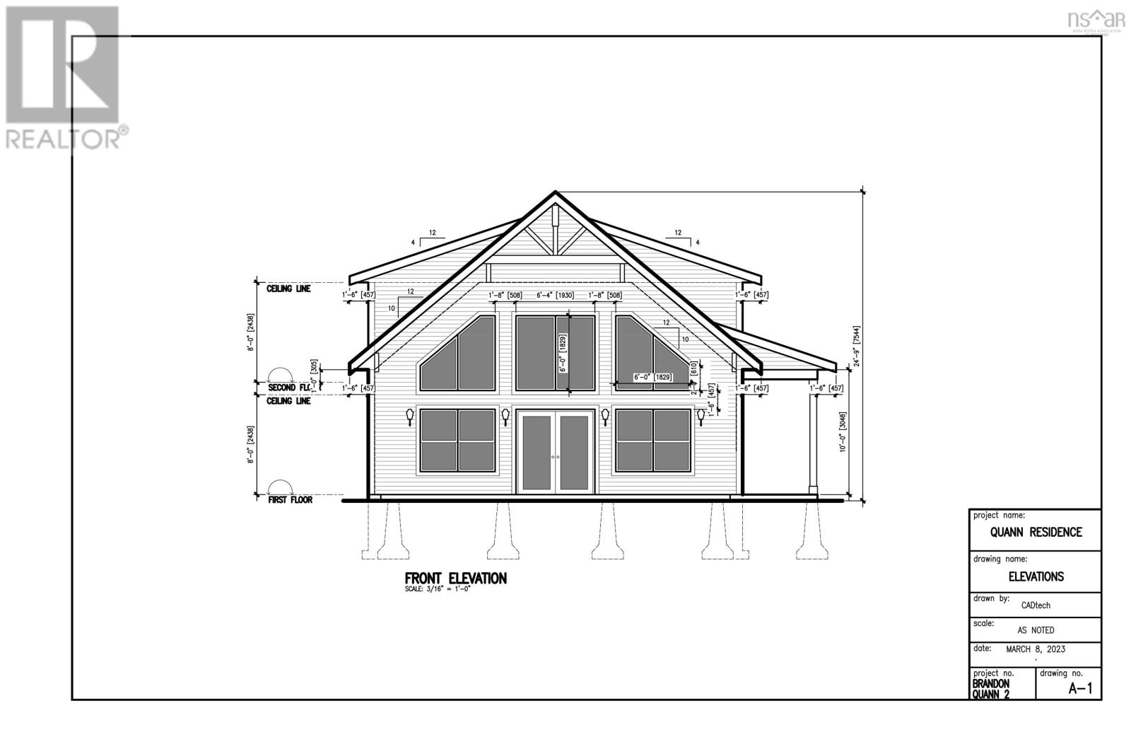
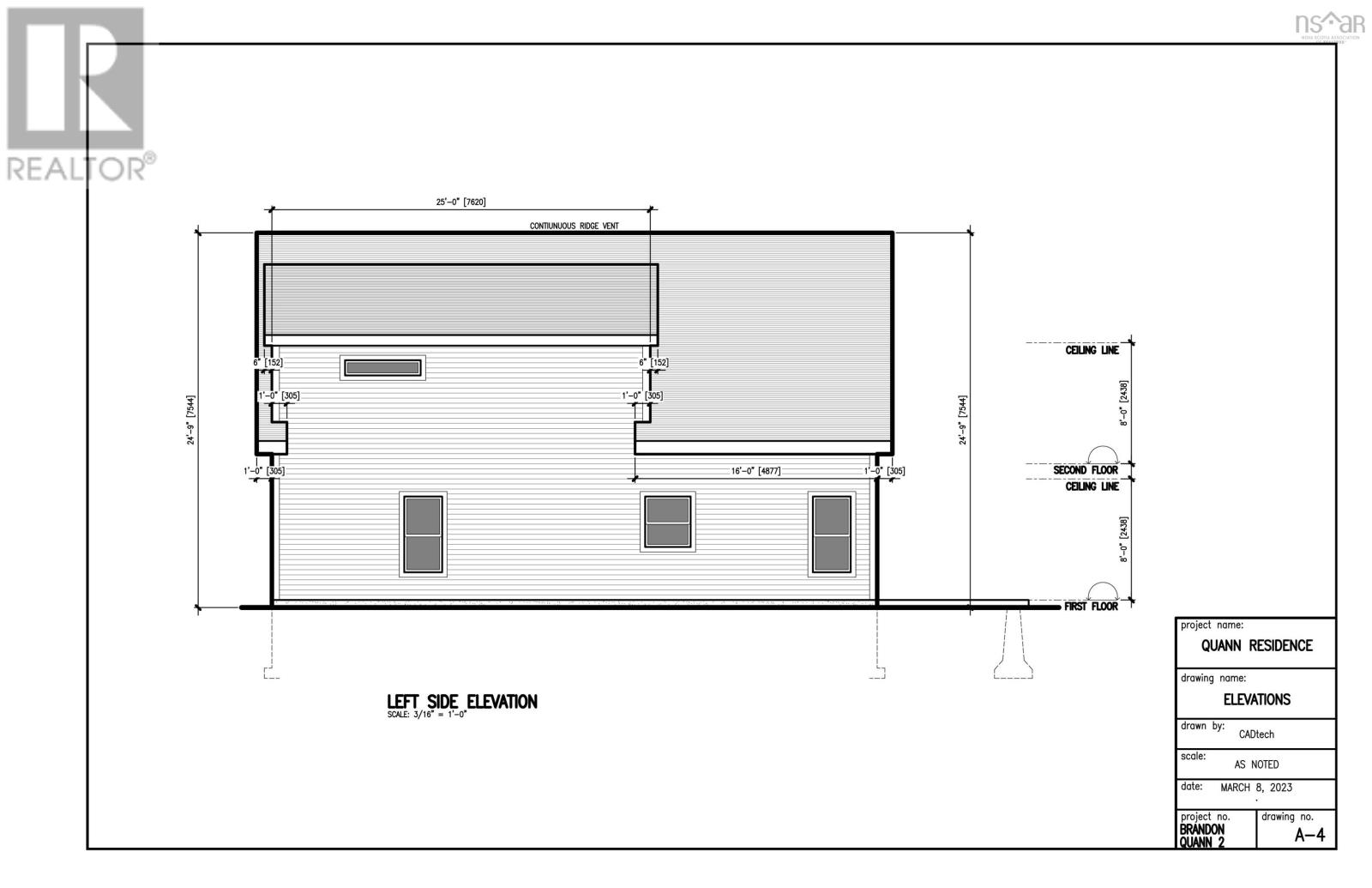
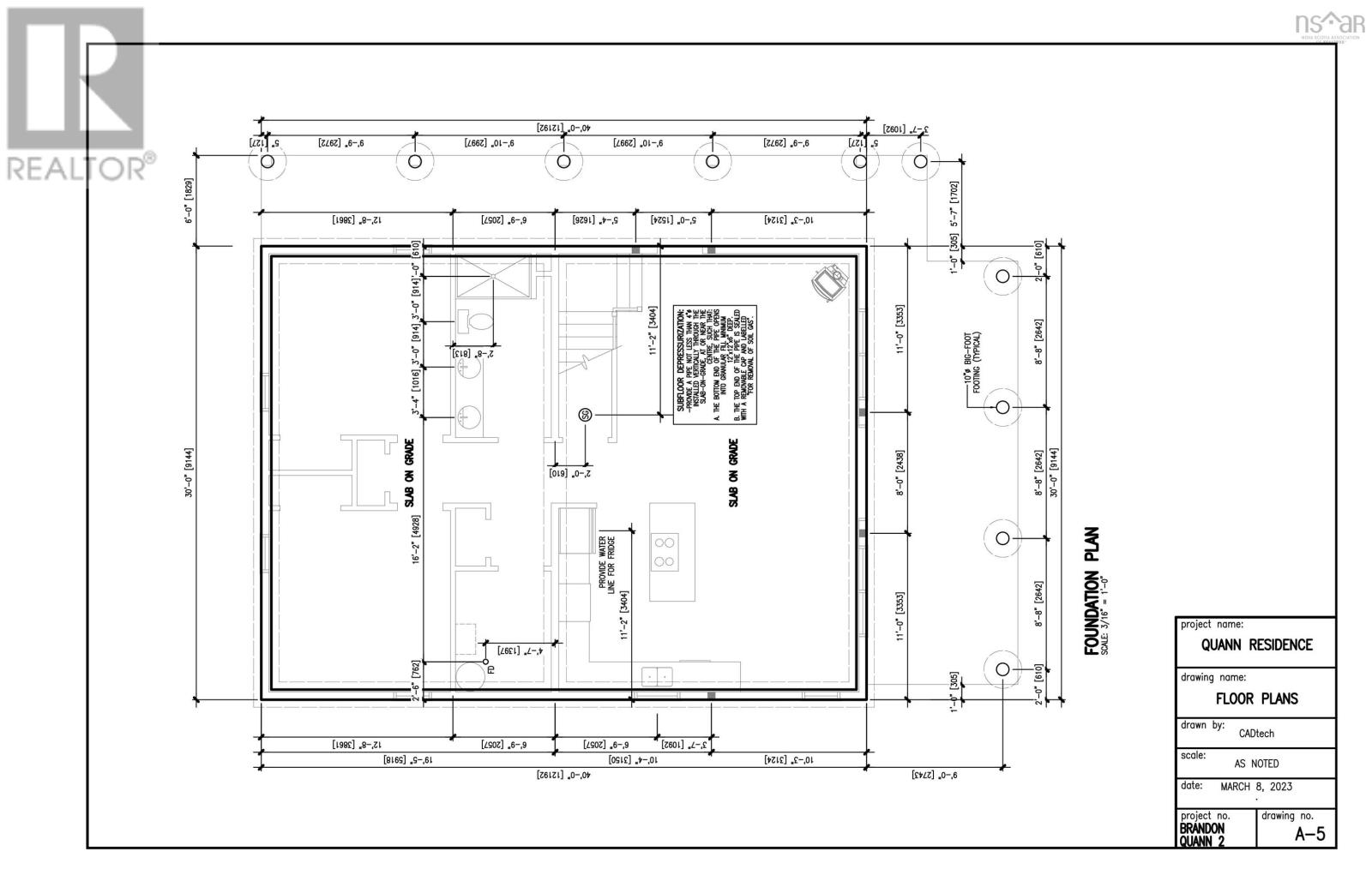
ACTIVE BULDING PERMIT. READY FOR FRAMING! Welcome to Meek Arm Cove at The Villages of Long Lakewhere you can enjoy the many benefits of nature while experiencing a quality of life that is second to none. DEEDED LAKE ACCESS This prime corner lot offers 1.32 acres of partially cleared land, complete with a gravel driveway leading to a 29' x 39' concrete padready for framing. A septic tank is installed and connected to the shared septic field. Some building materials, including roof trusses, plywood are currently on the lot and included in the purchase price in as is condition. (windows are currently stored at another location and included in the purchase price) A monthly condo fee of $57.00 covers septic and road maintenance. Path on the property that leads to Meek Arm Trail, offering a short walk to the lake, where you'll find a floating dock and a separate boat launch. The stunning lake area features sheltered coves, islands, lush forests, hiking trails, rivers, and streams. Its a paradise for kayaking, boating, swimming, hiking, fishing, picnickingor simply enjoying breathtaking sunrises and sunsets on the water. (id:32467)

Property Features

Building

  • Fireplace: No
  • Utility Water: None

Features

  • Feature: Treed, Partially cleared

Land

  • Land Size: 1.321 ac
  • Sewer: Septic System

Ownership

  • Type: Freehold

Information entered by RE/MAX Nova
Listing information last updated on: 2025-10-23 19:47:45


Book your free home evaluation with a 1% REALTOR® now!


How much could you save in commission selling with One Percent Realty?

Slide to select your home's price:

$500,000

Your One Percent Realty Commission savings

$500,000

Savings calculated using One Percent Realty East Inc’s posted commission rates compared to a brokerage charging 5%. (HST is extra). Not all agents charge the same.

Send a Message


One Percent Realty's top FAQs

Q
What is the deal exactly, with One Percent Realty East?

We are a fully licensed real estate brokerage offering the same top-tier services and exposure as the big names in the industry—but at a lower commission rate. Here's what you can expect when you work with us: ✅ Full MLS® system listing ✅ Exposure on all major internet real estate platforms ✅ Professional signage (where permitted) ✅ Property showings and open houses ✅ Strategic advertising to attract buyers ✅ Skilled negotiation to secure the best deal ✅ Seamless conveyancing to ensure a smooth closing With us, you’re getting everything you need to sell your property successfully—just without the high commission fees.

Q
What do you charge?

Simple, Transparent Pricing—No Surprises! Our commission structure is designed to save you money while providing top-tier service: • Residential Properties Under $400,000: $7,950 • Residential Properties Between $400,000 and $900,000: $9,950 • Residential Properties Over $900,000: 1% of the sale price + $950 Plus applicable taxes. Optional Flexibility: You have the option to offer additional commission to the buyer's agent. The choice is entirely yours! For commercial properties, farms, or development properties, please contact a One Percent Realty East agent directly or fill out the market evaluation form at the bottom right of our website. An agent will be in touch to discuss your specific needs. It’s that simple. Maximum service, minimum commission!

Q
Are your listings on MLS®, REALTOR.ca® and shared across the web?

Yes, yes, and yes! Our listings receive maximum exposure on the MLS® system, REALTOR.ca®, and all major real estate websites, ensuring your property gets seen by as many potential buyers as possible. With us, you’re never compromising on visibility—just saving on commission!


Learn more about the One Percent Realty Deal

 

Jasmine McNair REALTOR®/Associate Broker

Phone:
902.441.4566
Email:
jasmineonepercent@gmail.com
Support Area:
Bedford, Dartmouth, Halifax, Hammonds Plains, West Bedford, Bedford South, Downtown Dartmouth, Downtown Halifax, Tantallon, Fall River, Sackville, Hubley, Enfield, Elmsdale, Mount Uniacke, Clayton Park, Windsor Junction, Waverley, Eastern Passage, Timberlea, Belnan, Wellingto

Experience Exceptional Service with Jasmine McNairWith over 550 homes sold in the past 14 years ...

Full Profile