824 Beech Hill Road, Beech Hill Farms

2025-08-12
 

Quick Summary

Location
824 Beech Hill Road, Beech Hill Farms, Nova Scotia B0T1G0
Price
$75,000 CAD
Status:
For Sale
Property Type:
Single Family
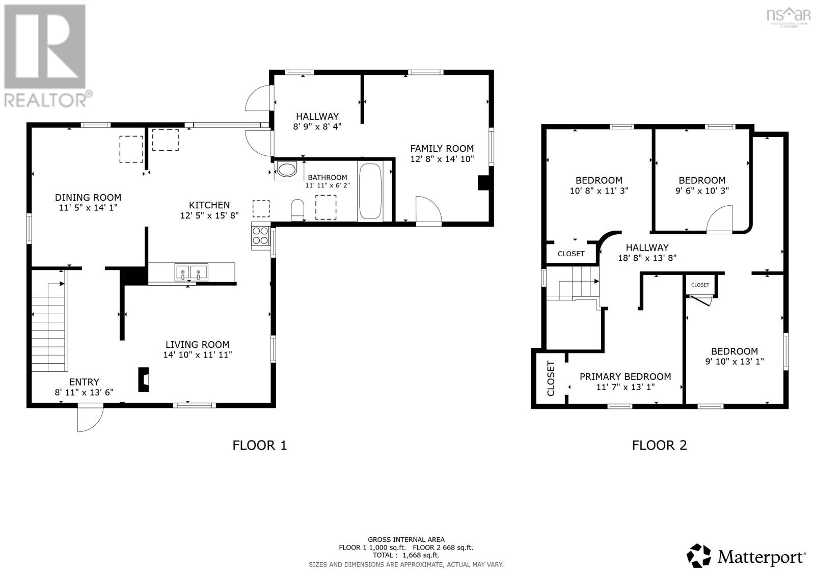
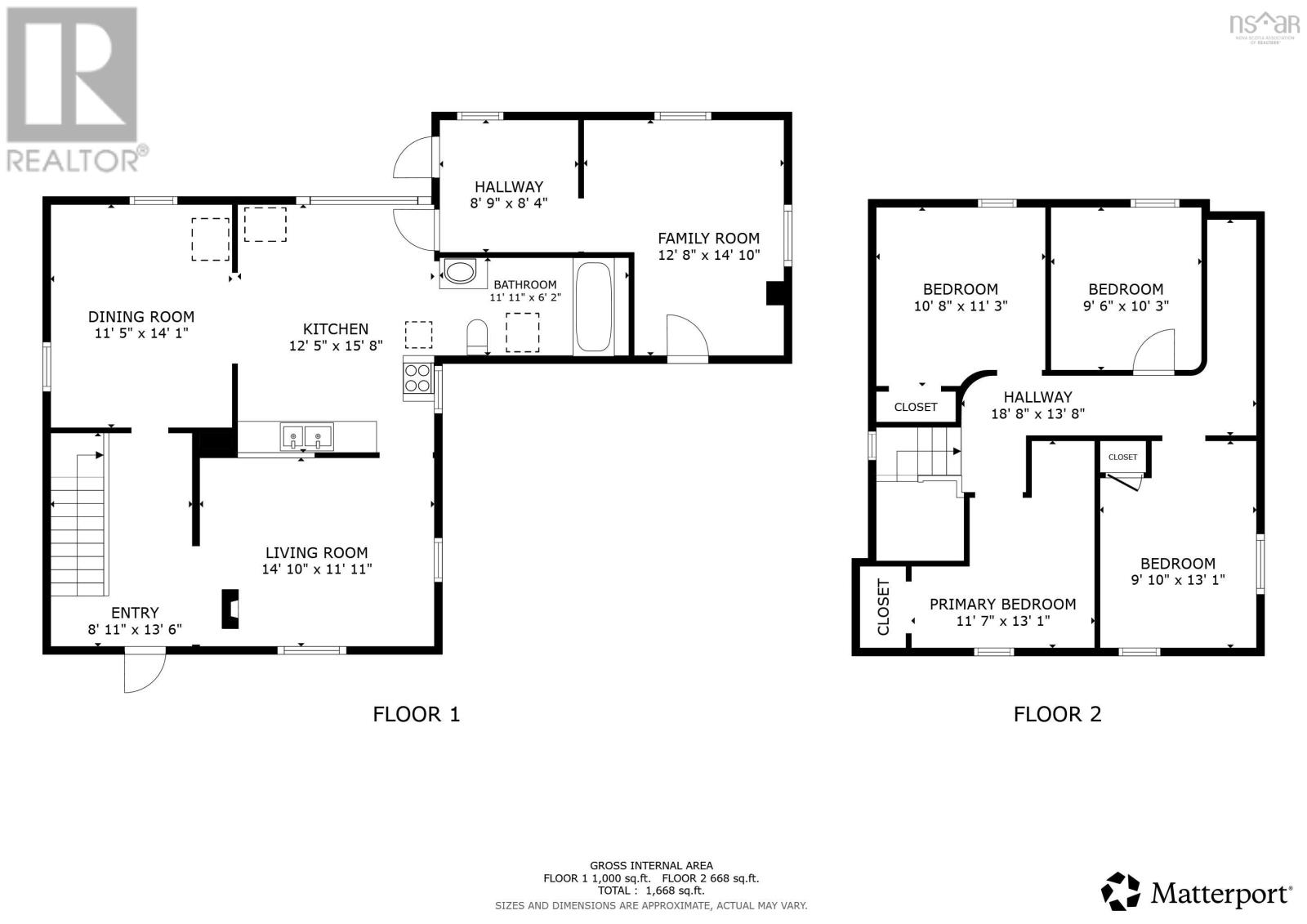
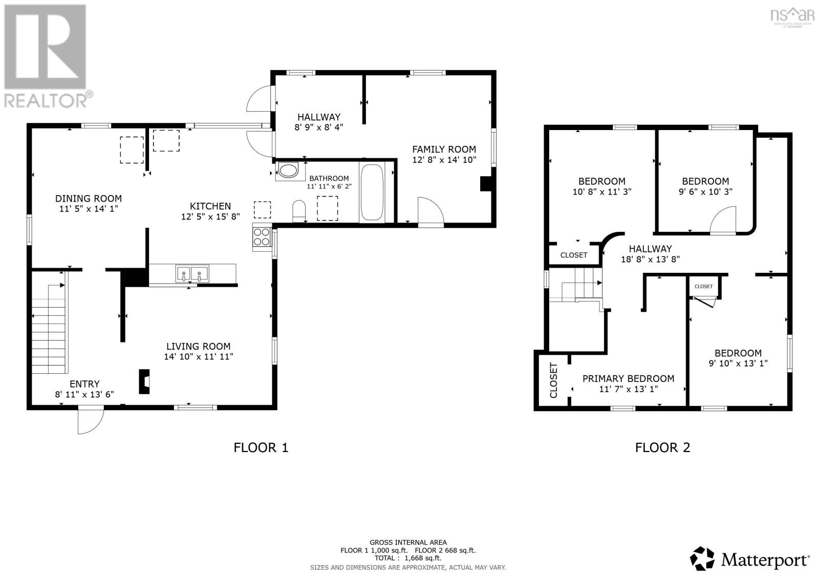
Area:
1668 sqft
Bedrooms:
4
Bathrooms:
1
Video Link:

MLS®#202520386

Property Description

Discover the potential in this peaceful country retreat just a short stroll or bike ride from some of the areas most beautiful beaches. Set on 1.1 acres in the quiet community of Beach Hill Farms, this four-bedroom, one-bathroom home offers plenty of space both inside and out. Surrounded by nature, its an ideal location for those seeking a slower pace of life, yet still within reach of everyday amenities. The property is in need of significant work and updating, making it a fantastic opportunity for those with vision to create their dream home or a relaxing coastal getaway. Whether you imagine cozy evenings by the fire, lush gardens, or a modern open-concept design, the blank canvas is yours to shape. Enjoy the sound of the ocean nearby, the fresh salt air, and the charm of living in a friendly rural settingall while being just minutes from sandy shores. (id:32467)

Property Features

Ammenities Near By

  • Ammenities Near By: Beach

Building

  • Architectural Style: 3 Level
  • Basement Type: Partial
  • Construction Style: Detached
  • Exterior Finish: Vinyl, Wood siding
  • Fireplace: Yes
  • Flooring Type: Hardwood, Linoleum
  • Interior Size: 1668 sqft
  • Building Type: House
  • Stories: 2
  • Utility Water: Drilled Well

Land

  • Land Size: 1.1 ac
  • Sewer: Septic System

Ownership

  • Type: Freehold

Structure

  • Structure: Shed

Information entered by EXIT Realty Inter Lake
Listing information last updated on: 2025-09-05 15:35:34


Book your free home evaluation with a 1% REALTOR® now!


How much could you save in commission selling with One Percent Realty?

Slide to select your home's price:

$500,000

Your One Percent Realty Commission savings

$500,000

Savings calculated using One Percent Realty East Inc’s posted commission rates compared to a brokerage charging 5%. (HST is extra). Not all agents charge the same.

One Percent Realty's top FAQs

Q
What is the deal exactly, with One Percent Realty East?

We are a fully licensed real estate brokerage offering the same top-tier services and exposure as the big names in the industry—but at a lower commission rate. Here's what you can expect when you work with us: ✅ Full MLS® system listing ✅ Exposure on all major internet real estate platforms ✅ Professional signage (where permitted) ✅ Property showings and open houses ✅ Strategic advertising to attract buyers ✅ Skilled negotiation to secure the best deal ✅ Seamless conveyancing to ensure a smooth closing With us, you’re getting everything you need to sell your property successfully—just without the high commission fees.

Q
What do you charge?

Simple, Transparent Pricing—No Surprises! Our commission structure is designed to save you money while providing top-tier service: • Residential Properties Under $400,000: $7,950 • Residential Properties Between $400,000 and $900,000: $9,950 • Residential Properties Over $900,000: 1% of the sale price + $950 Plus applicable taxes. Optional Flexibility: You have the option to offer additional commission to the buyer's agent. The choice is entirely yours! For commercial properties, farms, or development properties, please contact a One Percent Realty East agent directly or fill out the market evaluation form at the bottom right of our website. An agent will be in touch to discuss your specific needs. It’s that simple. Maximum service, minimum commission!

Q
Are your listings on MLS®, REALTOR.ca® and shared across the web?

Yes, yes, and yes! Our listings receive maximum exposure on the MLS® system, REALTOR.ca®, and all major real estate websites, ensuring your property gets seen by as many potential buyers as possible. With us, you’re never compromising on visibility—just saving on commission!


Learn more about the One Percent Realty Deal