Lot # 6B Kara Anne Court, NEW MINAS

2025-08-19
 

Quick Summary

Location
Lot # 6B Kara Anne Court, NEW MINAS, Nova Scotia B4N0H6
Price
$439,000 CAD
Status:
For Sale
Property Type:
Single Family
Area:
1520 sqft
Bedrooms:
3
Bathrooms:
2

MLS®#202521092

Property Description

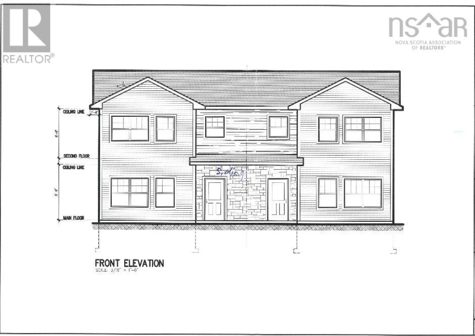
This brand new, three bedroom, 1.5 bath family home is now under construction. These quality built homes are conveniently located on the bus route. Sidewalks lead you to downtown, where you can enjoy many amenities, including shopping, theatre, the gym, dining, the Veterinary and many more! It's just a short drive to Acadia University, many local award-winning wineries, Hwy # 101 access and Kingsport, where you can enjoy views of some of the highest tides in the world. The kitchen boasts ample cabinets, with a peninsula and space for a dishwasher. You can access the deck via patio doors from the dining area. The laundry is conveniently located on the upper level near the bedrooms. Large windows allow for lots of natural light. Easy care vinyl plank flooring is found throughout the home, except the stairway, where you'll find non-slip carpet. Lot to be subdivided prior to closing. Total lot size to be approx 5500 sf, but will be determined when divided. (id:32467)

Property Features

Ammenities Near By

  • Ammenities Near By: Golf Course, Park, Playground, Public Transit, Shopping, Place of Worship

Building

  • Basement Type: None
  • Construction Style: Semi-detached
  • Cooling Type: Heat Pump
  • Exterior Finish: Vinyl
  • Fireplace: No
  • Flooring Type: Carpeted, Vinyl Plank
  • Interior Size: 1520 sqft
  • Building Type: House
  • Stories: 2
  • Utility Water: Municipal water

Land

  • Land Size: 0.116 ac
  • Sewer: Municipal sewage system

Ownership

  • Type: Freehold

Information entered by Royal LePage Atlantic (New Minas)
Listing information last updated on: 2025-11-10 20:46:54


Book your free home evaluation with a 1% REALTOR® now!


How much could you save in commission selling with One Percent Realty?

Slide to select your home's price:

$500,000

Your One Percent Realty Commission savings

$500,000

Savings calculated using One Percent Realty East Inc’s posted commission rates compared to a brokerage charging 5%. (HST is extra). Not all agents charge the same.

One Percent Realty's top FAQs

Q
What is the deal exactly, with One Percent Realty East?

We are a fully licensed real estate brokerage offering the same top-tier services and exposure as the big names in the industry—but at a lower commission rate. Here's what you can expect when you work with us: ✅ Full MLS® system listing ✅ Exposure on all major internet real estate platforms ✅ Professional signage (where permitted) ✅ Property showings and open houses ✅ Strategic advertising to attract buyers ✅ Skilled negotiation to secure the best deal ✅ Seamless conveyancing to ensure a smooth closing With us, you’re getting everything you need to sell your property successfully—just without the high commission fees.

Q
What do you charge?

Simple, Transparent Pricing—No Surprises! Our commission structure is designed to save you money while providing top-tier service: • Residential Properties Under $400,000: $7,950 • Residential Properties Between $400,000 and $900,000: $9,950 • Residential Properties Over $900,000: 1% of the sale price + $950 Plus applicable taxes. Optional Flexibility: You have the option to offer additional commission to the buyer's agent. The choice is entirely yours! For commercial properties, farms, or development properties, please contact a One Percent Realty East agent directly or fill out the market evaluation form at the bottom right of our website. An agent will be in touch to discuss your specific needs. It’s that simple. Maximum service, minimum commission!

Q
Are your listings on MLS®, REALTOR.ca® and shared across the web?

Yes, yes, and yes! Our listings receive maximum exposure on the MLS® system, REALTOR.ca®, and all major real estate websites, ensuring your property gets seen by as many potential buyers as possible. With us, you’re never compromising on visibility—just saving on commission!


Learn more about the One Percent Realty Deal