150 Evans Avenue, HALIFAX

2025-09-29
 

Quick Summary

Location
150 Evans Avenue, HALIFAX, Nova Scotia B3M1E1
Price
$544,900 CAD
Status:
For Sale
Property Type:
Single Family
Area:
2112 sqft
Bedrooms:
3 bed +1
Bathrooms:
2
Year of Construction:
1960
Brochure Link:
Video Link:
Open House:
09/11/2025 01:00:00 PM to
09/11/2025 03:00:00 PM

MLS®#202524619

Property Description

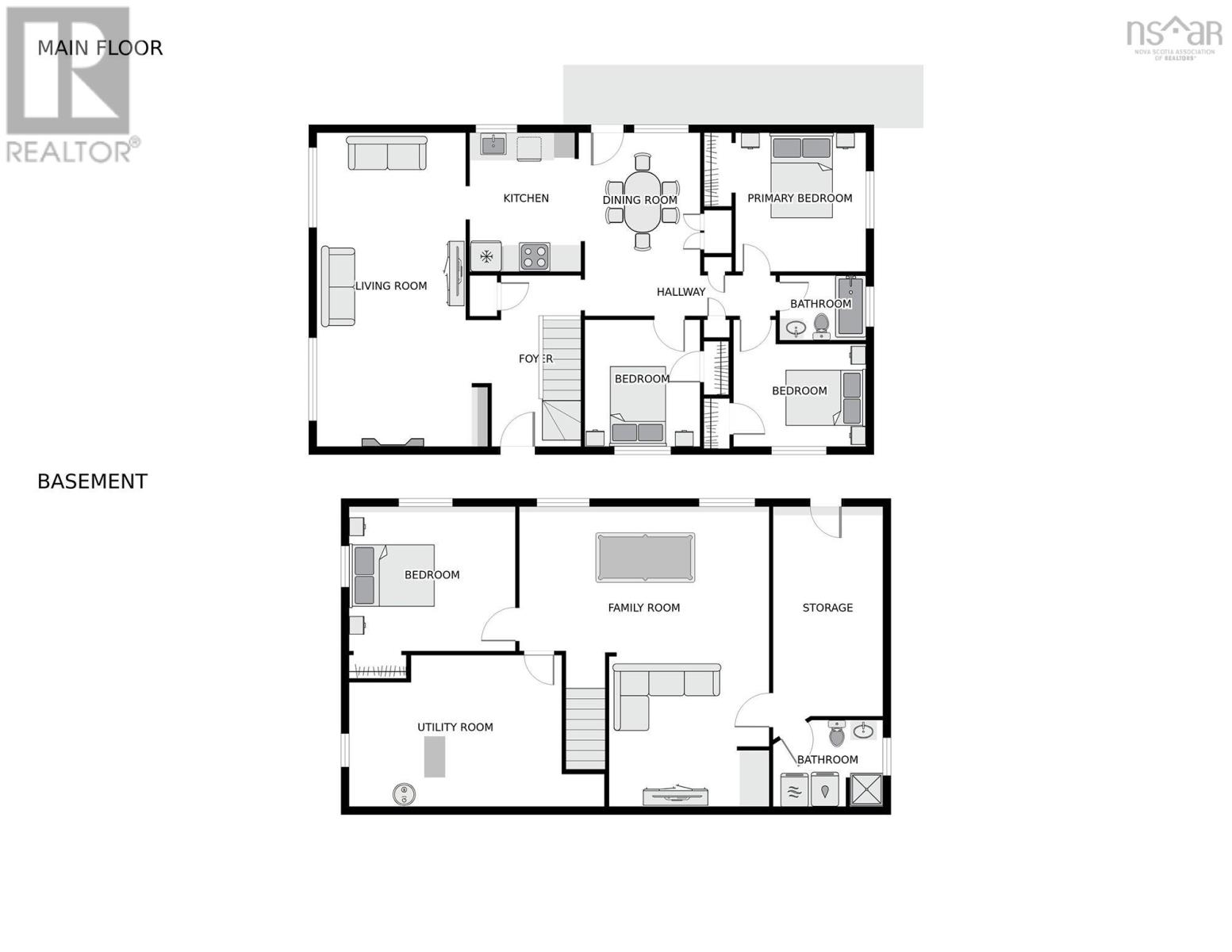
Welcome to 150 Evans Avenue A Home of Light, Character, and Thoughtful Renewal. Set on a generous 7,000 sq. ft. SW corner lot in Fairview, this beautifully updated residence blends mid-century features with contemporary design. The main floor is anchored by a sunlit living room where an original wood-burning fireplace (as is) adds warmth and authenticity. The new kitchen (2025) is a statement in functionality and design, featuring stainless steel new appliances, abundant counter space, and a seamless connection to a spacious dining areaideal for gathering and everyday living. Step outside from the dining room onto a back deck with an access to your driveway. Three bright bedrooms on the upper level each offer generous windows, and large closets. The main bath has been fully renovated with a deep soaker tub, marble-inspired tile surround, and contemporary fixtures (2025). Downstairs, the fully finished lower level, extends the living experience with a bright family room, 4th bedroom, a second full bath with laundry, and a walk-out mudroom offering excellent potential for a secondary unit. Recent upgrades include updated roof (2022), painted exterior (2025), whitewash hardwood flooring (2025), updated laminate in the lower level (2022), new plumbing in the kitchen and bathrooms, new LED lighting and new hardware. Convenient ducted heating for seasonal comfort. With quick access to major highways, Bayers Lake shopping district, local schools, and public transit, this home is equally well suited for growing families, first time buyers or savvy investors. (id:32467)

Property Features

Ammenities Near By

  • Ammenities Near By: Park, Playground, Public Transit, Shopping, Place of Worship

Building

  • Appliances: Range - Electric, Dishwasher, Dryer - Electric, Washer, Microwave Range Hood Combo, Refrigerator
  • Architectural Style: Bungalow
  • Construction Style: Detached
  • Exterior Finish: Wood siding
  • Fireplace: Yes
  • Flooring Type: Ceramic Tile, Hardwood, Laminate, Linoleum
  • Interior Size: 2112 sqft
  • Building Type: House
  • Stories: 1
  • Utility Water: Municipal water

Land

  • Land Size: 0.1625 ac
  • Sewer: Municipal sewage system

Ownership

  • Type: Freehold

Information entered by RE/MAX Nova (Halifax)
Listing information last updated on: 2025-11-06 23:26:29


Book your free home evaluation with a 1% REALTOR® now!


How much could you save in commission selling with One Percent Realty?

Slide to select your home's price:

$500,000

Your One Percent Realty Commission savings

$500,000

Savings calculated using One Percent Realty East Inc’s posted commission rates compared to a brokerage charging 5%. (HST is extra). Not all agents charge the same.

Send a Message


One Percent Realty's top FAQs

Q
What is the deal exactly, with One Percent Realty East?

We are a fully licensed real estate brokerage offering the same top-tier services and exposure as the big names in the industry—but at a lower commission rate. Here's what you can expect when you work with us: ✅ Full MLS® system listing ✅ Exposure on all major internet real estate platforms ✅ Professional signage (where permitted) ✅ Property showings and open houses ✅ Strategic advertising to attract buyers ✅ Skilled negotiation to secure the best deal ✅ Seamless conveyancing to ensure a smooth closing With us, you’re getting everything you need to sell your property successfully—just without the high commission fees.

Q
What do you charge?

Simple, Transparent Pricing—No Surprises! Our commission structure is designed to save you money while providing top-tier service: • Residential Properties Under $400,000: $7,950 • Residential Properties Between $400,000 and $900,000: $9,950 • Residential Properties Over $900,000: 1% of the sale price + $950 Plus applicable taxes. Optional Flexibility: You have the option to offer additional commission to the buyer's agent. The choice is entirely yours! For commercial properties, farms, or development properties, please contact a One Percent Realty East agent directly or fill out the market evaluation form at the bottom right of our website. An agent will be in touch to discuss your specific needs. It’s that simple. Maximum service, minimum commission!

Q
Are your listings on MLS®, REALTOR.ca® and shared across the web?

Yes, yes, and yes! Our listings receive maximum exposure on the MLS® system, REALTOR.ca®, and all major real estate websites, ensuring your property gets seen by as many potential buyers as possible. With us, you’re never compromising on visibility—just saving on commission!


Learn more about the One Percent Realty Deal

 

Alison McNair REALTOR®

Phone:
(902) 830-4363
Email:
alisonmcnair@eastlink.ca
Support Area:
Halifax Municipality and surrounding areas, Elmsdale, Enfield, Belnan, Nine Mile RIver

With over 11 years experience in the real estate industry you can count on a high level of success ...

Full Profile

 

Adrienne Briand BROKER/REALTOR®

Phone:
(902) 499-7998
Mobile:
(902) 499-7998
Email:
abriand@onepercentrealty.com
Support Area:
Bedford, Hammonds Plains, . Halifax, Dartmouth, Sackville, Enfield, Elmsdale, Tantallon, Timberlea, West Bedford, Bedford South, Glen Haven, Glen Margaret, Boutiliers Point

Entering into the buying or selling market can be an overwhelming experience, but with the right REA ...

Full Profile

 

Natalie Urquhart B.A, REALTOR ®, AIC Candidate Member (Appraisal Institute of Canada)

Phone:
(902) 489-0700
Email:
natalieonepercent@gmail.com
Support Area:
Bedford, Halifax, Dartmouth, Tantallon, Timberlea, Sackville, Elmsdale, Enfield, Chester, St Margarets Bay, Ellershouse, Beaver Bank

Selling and buying a home is a significant event. Natalie is a professional who will listen to your ...

Full Profile