1715 Ashdale Road, SOUTH RAWDON

2025-10-14
 

Quick Summary

Location
1715 Ashdale Road, SOUTH RAWDON, Nova Scotia B0N1Z0
Price
$575,000 CAD
Status:
For Sale
Property Type:
Single Family
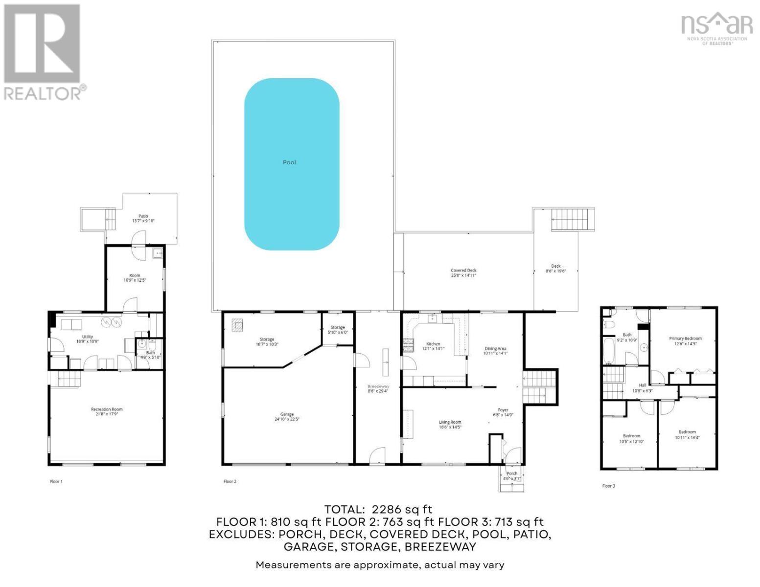
Area:
2286 sqft
Bedrooms:
3
Bathrooms:
2
Year of Construction:
1978

MLS®#202525717

Property Description

Imagine living on a quiet country road with plenty of privacy and still 30 minutes from all the amenities. This 3 bedroom, 1.5 bath home is big enough for a growing family. The yard has an in-ground pool, greenhouse, fruit trees, a pond, cherry and apple trees, 3 kinds of grapes growing as well as a variety of perennials. A double attached garage through a breezeway off the kitchen is an added bonus along with a 5 year old metal roof. Simply a little oasis in the country to come home to after a busy day! Call your agent and book a viewing today. (id:32467)

Property Features

Building

  • Appliances: Stove, Dryer, Washer, Refrigerator, Central Vacuum
  • Construction Style: Detached
  • Cooling Type: Heat Pump
  • Exterior Finish: Brick, Vinyl
  • Fireplace: No
  • Flooring Type: Ceramic Tile, Laminate
  • Interior Size: 2286 sqft
  • Building Type: House
  • Stories: 2
  • Utility Water: Drilled Well

Features

  • Feature: Level

Land

  • Land Size: 1.34 ac
  • Sewer: Septic System

Ownership

  • Type: Freehold

Information entered by Exit Realty Metro
Listing information last updated on: 2025-10-14 14:33:13


Book your free home evaluation with a 1% REALTOR® now!


How much could you save in commission selling with One Percent Realty?

Slide to select your home's price:

$500,000

Your One Percent Realty Commission savings

$500,000

Savings calculated using One Percent Realty East Inc’s posted commission rates compared to a brokerage charging 5%. (HST is extra). Not all agents charge the same.

One Percent Realty's top FAQs

Q
What is the deal exactly, with One Percent Realty East?

We are a fully licensed real estate brokerage offering the same top-tier services and exposure as the big names in the industry—but at a lower commission rate. Here's what you can expect when you work with us: ✅ Full MLS® system listing ✅ Exposure on all major internet real estate platforms ✅ Professional signage (where permitted) ✅ Property showings and open houses ✅ Strategic advertising to attract buyers ✅ Skilled negotiation to secure the best deal ✅ Seamless conveyancing to ensure a smooth closing With us, you’re getting everything you need to sell your property successfully—just without the high commission fees.

Q
What do you charge?

Simple, Transparent Pricing—No Surprises! Our commission structure is designed to save you money while providing top-tier service: • Residential Properties Under $400,000: $7,950 • Residential Properties Between $400,000 and $900,000: $9,950 • Residential Properties Over $900,000: 1% of the sale price + $950 Plus applicable taxes. Optional Flexibility: You have the option to offer additional commission to the buyer's agent. The choice is entirely yours! For commercial properties, farms, or development properties, please contact a One Percent Realty East agent directly or fill out the market evaluation form at the bottom right of our website. An agent will be in touch to discuss your specific needs. It’s that simple. Maximum service, minimum commission!

Q
Are your listings on MLS®, REALTOR.ca® and shared across the web?

Yes, yes, and yes! Our listings receive maximum exposure on the MLS® system, REALTOR.ca®, and all major real estate websites, ensuring your property gets seen by as many potential buyers as possible. With us, you’re never compromising on visibility—just saving on commission!


Learn more about the One Percent Realty Deal