Lot BB927 201 Brunello Boulevard, Brunello Estates

2025-10-14
 

Quick Summary

Location
Lot BB927 201 Brunello Boulevard, Brunello Estates, Nova Scotia B3T0J3
Price
$779,900 CAD
Status:
For Sale
Property Type:
Single Family
Area:
2440 sqft
Bedrooms:
3 bed +1
Bathrooms:
4

MLS®#202525764

Property Description

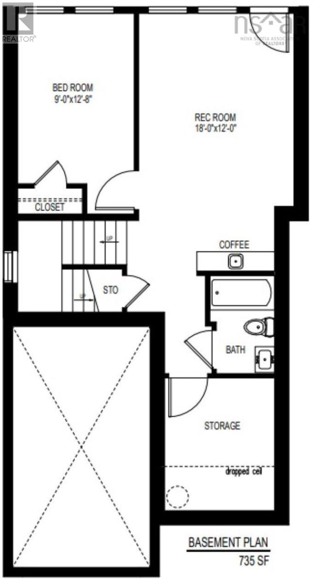
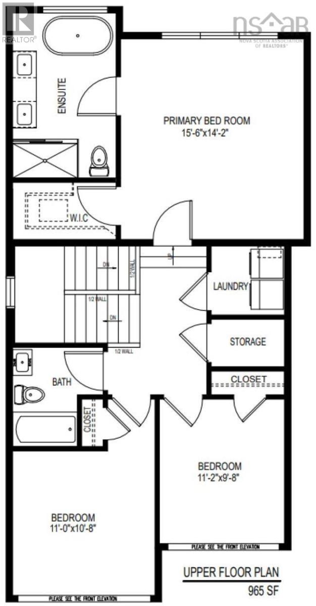
Now under construction on the extension of Brunello Boulevard, A bright foyer welcomes you to a lovely den/flex space with glass overlooking the entry. The spectacular Great Room has 9' ceilings & large windows, including a massive window in the kitchen making the most of natural light and views to the spacious backyard. A large island is ideal for gathering around to start your day, quartz countertops, a fantastic pantry, dining area and living space with access to take the entertaining outside to your deck. Convenience of a discrete powder room and access to the garage complete this level which features designer tile and hardwood floors. Provident's penthouse primary suite is a true retreat with hardwood floors, a walk-in closet and spa-like ensuite with soaker tub, double raised underlit vanity and separate shower. Two nice size bedrooms, another full bath & laundry closet, provide a super functional upper floor. A rec room, 4th bedroom & 3rd full bath create a perfect space for guests downstairs which walks out to your yard. Completed with the comfort of heat pump heating and cooling. Additional lots and layouts available. Fantastic location in Brunello where residents enjoy walking the golf course trails, access to Nine Mile River, tennis, skating, cross country skiing, events at the club house (no membership required!), and super great access to Bayers Lake and downtown Halifax. The community is growing with new services and amenities all the time. Terrific lifestyle in a beautiful new home! (id:32467)

Property Features

Ammenities Near By

  • Ammenities Near By: Golf Course, Public Transit, Shopping

Building

  • Basement Development: Finished
  • Basement Type: Full (Finished)
  • Construction Style: Detached
  • Cooling Type: Heat Pump
  • Exterior Finish: Brick, Vinyl, Other
  • Fireplace: No
  • Flooring Type: Ceramic Tile, Hardwood, Laminate
  • Interior Size: 2440 sqft
  • Building Type: House
  • Stories: 2
  • Utility Water: Municipal water

Features

  • Feature: Level

Land

  • Land Size: 0.113 ac
  • Sewer: Municipal sewage system

Ownership

  • Type: Freehold

Information entered by PLUMB LINE REALTY INC. - 12234
Listing information last updated on: 2025-11-05 08:06:43


Book your free home evaluation with a 1% REALTOR® now!


How much could you save in commission selling with One Percent Realty?

Slide to select your home's price:

$500,000

Your One Percent Realty Commission savings

$500,000

Savings calculated using One Percent Realty East Inc’s posted commission rates compared to a brokerage charging 5%. (HST is extra). Not all agents charge the same.

One Percent Realty's top FAQs

Q
What is the deal exactly, with One Percent Realty East?

We are a fully licensed real estate brokerage offering the same top-tier services and exposure as the big names in the industry—but at a lower commission rate. Here's what you can expect when you work with us: ✅ Full MLS® system listing ✅ Exposure on all major internet real estate platforms ✅ Professional signage (where permitted) ✅ Property showings and open houses ✅ Strategic advertising to attract buyers ✅ Skilled negotiation to secure the best deal ✅ Seamless conveyancing to ensure a smooth closing With us, you’re getting everything you need to sell your property successfully—just without the high commission fees.

Q
What do you charge?

Simple, Transparent Pricing—No Surprises! Our commission structure is designed to save you money while providing top-tier service: • Residential Properties Under $400,000: $7,950 • Residential Properties Between $400,000 and $900,000: $9,950 • Residential Properties Over $900,000: 1% of the sale price + $950 Plus applicable taxes. Optional Flexibility: You have the option to offer additional commission to the buyer's agent. The choice is entirely yours! For commercial properties, farms, or development properties, please contact a One Percent Realty East agent directly or fill out the market evaluation form at the bottom right of our website. An agent will be in touch to discuss your specific needs. It’s that simple. Maximum service, minimum commission!

Q
Are your listings on MLS®, REALTOR.ca® and shared across the web?

Yes, yes, and yes! Our listings receive maximum exposure on the MLS® system, REALTOR.ca®, and all major real estate websites, ensuring your property gets seen by as many potential buyers as possible. With us, you’re never compromising on visibility—just saving on commission!


Learn more about the One Percent Realty Deal