4730 East River East Side Road, PLYMOUTH

2025-10-20
 

Quick Summary

Location
4730 East River East Side Road, PLYMOUTH, Nova Scotia B2H5C5
Price
$324,500 CAD
Status:
For Sale
Property Type:
Single Family
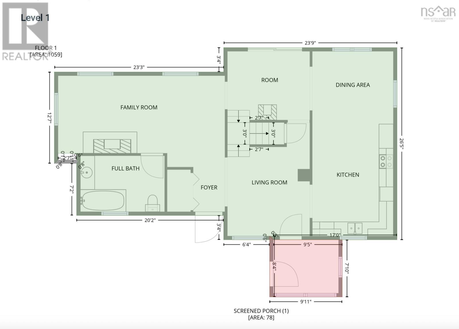
Area:
1764 sqft
Bedrooms:
3
Bathrooms:
2
Year of Construction:
1930

MLS®#202526184

Property Description

Welcome to this inviting 3-bed, 2-bath farmhouse that has been thoughtfully updated while preserving all the character and warmth of a classic country home. Surrounded by scenic panoramic views, this property offers peaceful rural living just minutes from town in the desirable community of Plymouth. Inside, youll love the cozy warmth of the wood stove in winter and the comfort of a heat pump for efficient cooling in summer. Recent updates provide peace of mind, including newer shingles, vinyl windows, a new hot water tank, and a newly certified wood stove. Outdoors, the property shines with three well-appointed outbuildings two barns ready for your cows and chickens, plus a workshop perfect for hobbies or storage. Theres also plenty of space for gardening and enjoying the simple pleasures of outdoor life. With the potential to create a 4th bedroom, this property is perfect for a growing family! (id:32467)

Property Features

Ammenities Near By

  • Ammenities Near By: Golf Course, Park, Playground, Shopping, Place of Worship, Beach

Building

  • Appliances: Oven, Stove, Dishwasher, Dryer, Washer, Microwave, Refrigerator
  • Basement Development: Unfinished
  • Basement Features: Walk out
  • Basement Type: Full (Unfinished)
  • Construction Style: Detached
  • Cooling Type: Heat Pump
  • Exterior Finish: Wood siding
  • Fireplace: Yes
  • Flooring Type: Engineered hardwood, Vinyl
  • Interior Size: 1764 sqft
  • Building Type: House
  • Stories: 2
  • Utility Water: Dug Well

Land

  • Land Size: 0.75 ac
  • Sewer: Septic System

Ownership

  • Type: Freehold

Structure

  • Structure: Shed

Information entered by Royal LePage Atlantic(Stellarton)
Listing information last updated on: 2025-10-22 23:39:47


Book your free home evaluation with a 1% REALTOR® now!


How much could you save in commission selling with One Percent Realty?

Slide to select your home's price:

$500,000

Your One Percent Realty Commission savings

$500,000

Savings calculated using One Percent Realty East Inc’s posted commission rates compared to a brokerage charging 5%. (HST is extra). Not all agents charge the same.

One Percent Realty's top FAQs

Q
What is the deal exactly, with One Percent Realty East?

We are a fully licensed real estate brokerage offering the same top-tier services and exposure as the big names in the industry—but at a lower commission rate. Here's what you can expect when you work with us: ✅ Full MLS® system listing ✅ Exposure on all major internet real estate platforms ✅ Professional signage (where permitted) ✅ Property showings and open houses ✅ Strategic advertising to attract buyers ✅ Skilled negotiation to secure the best deal ✅ Seamless conveyancing to ensure a smooth closing With us, you’re getting everything you need to sell your property successfully—just without the high commission fees.

Q
What do you charge?

Simple, Transparent Pricing—No Surprises! Our commission structure is designed to save you money while providing top-tier service: • Residential Properties Under $400,000: $7,950 • Residential Properties Between $400,000 and $900,000: $9,950 • Residential Properties Over $900,000: 1% of the sale price + $950 Plus applicable taxes. Optional Flexibility: You have the option to offer additional commission to the buyer's agent. The choice is entirely yours! For commercial properties, farms, or development properties, please contact a One Percent Realty East agent directly or fill out the market evaluation form at the bottom right of our website. An agent will be in touch to discuss your specific needs. It’s that simple. Maximum service, minimum commission!

Q
Are your listings on MLS®, REALTOR.ca® and shared across the web?

Yes, yes, and yes! Our listings receive maximum exposure on the MLS® system, REALTOR.ca®, and all major real estate websites, ensuring your property gets seen by as many potential buyers as possible. With us, you’re never compromising on visibility—just saving on commission!


Learn more about the One Percent Realty Deal