3 Tutor Court, DARTMOUTH

2025-10-22
 

Quick Summary

Location
3 Tutor Court, DARTMOUTH, Nova Scotia B3A4X9
Price
$599,900 CAD
Status:
For Sale
Property Type:
Single Family
Area:
2037 sqft
Bedrooms:
3
Bathrooms:
3
Year of Construction:
2000
Video Link:
Open House:
26/10/2025 02:00:00 PM to
26/10/2025 04:00:00 PM

MLS®#202526347

Property Description

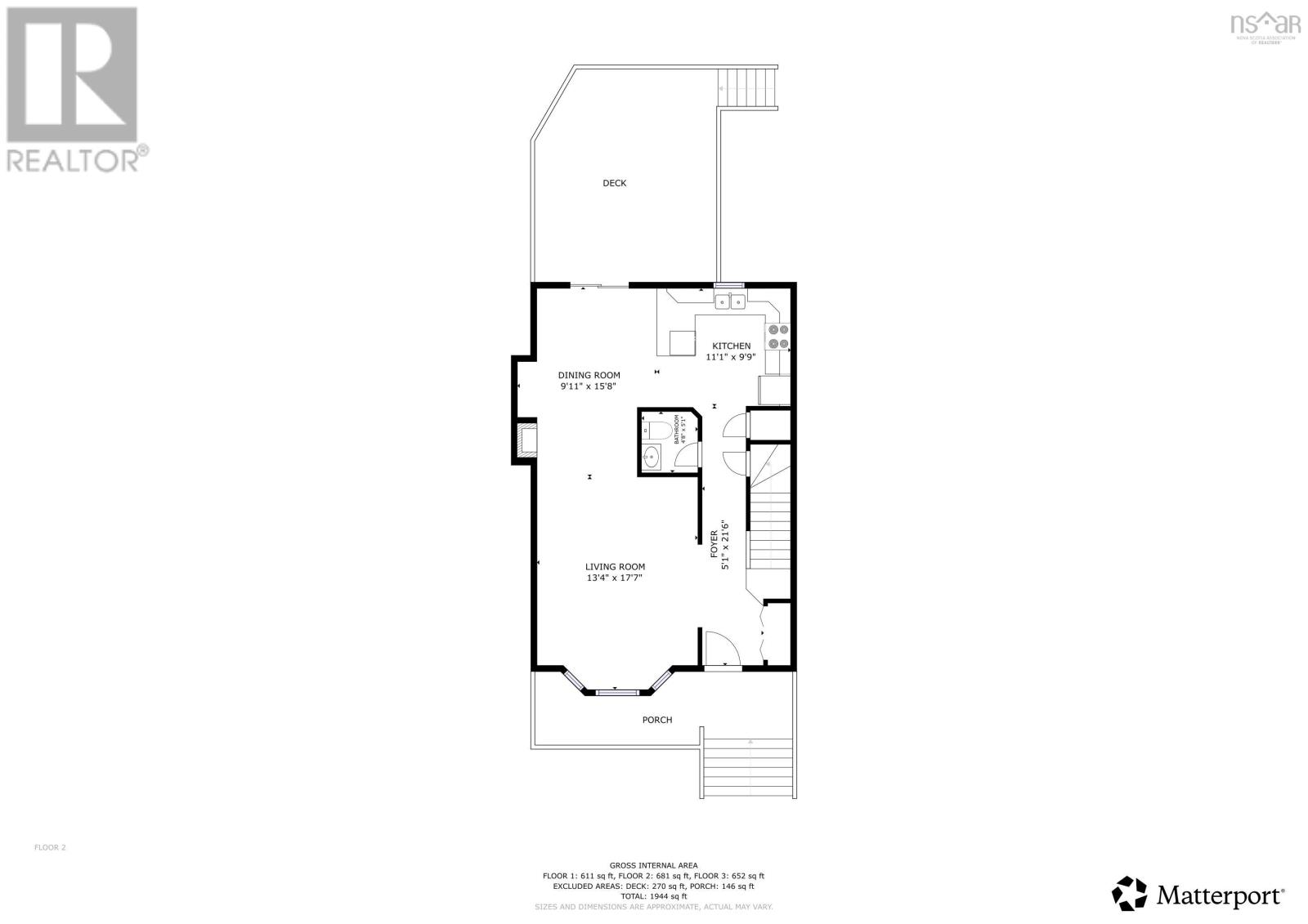
Looking for move-in ready on a quiet cul-de-sac in a fantastic area? 3 Tutor Court is it! Located in a family friendly neighbourhood, this beautiful two storey home comes complete with thoughtful updates. There is room for the whole family as it is finished on all levels with care and consideration given to layout, design and function. This home is ready for new owners. Under the covered porch, the welcoming and spacious entry leads into the large main level living room with a cozy fireplace. This great space flows nicely to the spacious updated dining and kitchen with quartz countertops, loads of cabinets, and a great pantry for extra storage. The easy flow extends through the patio door to an expansive deck which adds some great outdoor living space. This level also has a ductless heat pump and a convenient main floor half-bath. The beautiful staircase leads to the bedroom level. The primary suite oasis with a heat pump and skylights contains an adjoining full ensuite and walk-in closet. A freshly renovated full bathroom and 2 other bedrooms complete the upper space. The lower level boasts a terrific family room, laundry, loads of storage and utility room. Nestled in sought after Lancaster, Tutor Court is off the main routes, but still close to everything. So, this quiet neighbourhood is an ideal location to be away from the hustle and still be able to quickly access nearby amenities and work centres. Commutes are a breeze, access to 100 series highways are quick and all types of shopping are nearby with the Big Mall in Dartmouth, Dartmouth Crossing and grocery stores just a few minutes away. The vibrant greater community of Dartmouth is close, too. The 'City of Lakes' has all any family member would want: outdoor activities, cafes, shops, gyms, restaurants and so much more. Be in lively Downtown Dartmouth in just a few minutes and Halifax, too. Be sure to view the Virtual tour and book a viewing! (id:32467)

Property Features

Ammenities Near By

  • Ammenities Near By: Golf Course, Park, Playground, Public Transit, Shopping, Place of Worship, Beach

Building

  • Appliances: Oven, Dishwasher, Dryer, Washer, Microwave Range Hood Combo, Refrigerator
  • Basement Development: Partially finished
  • Basement Type: Full (Partially finished)
  • Construction Style: Detached
  • Cooling Type: Heat Pump
  • Exterior Finish: Vinyl
  • Fireplace: No
  • Flooring Type: Hardwood, Laminate, Tile
  • Interior Size: 2037 sqft
  • Building Type: House
  • Stories: 2
  • Utility Water: Municipal water

Land

  • Land Size: 0.0878 ac
  • Sewer: Municipal sewage system

Ownership

  • Type: Freehold

Information entered by Royal LePage Anchor Realty
Listing information last updated on: 2025-10-23 17:24:22


Book your free home evaluation with a 1% REALTOR® now!


How much could you save in commission selling with One Percent Realty?

Slide to select your home's price:

$500,000

Your One Percent Realty Commission savings

$500,000

Savings calculated using One Percent Realty East Inc’s posted commission rates compared to a brokerage charging 5%. (HST is extra). Not all agents charge the same.

Send a Message


One Percent Realty's top FAQs

Q
What is the deal exactly, with One Percent Realty East?

We are a fully licensed real estate brokerage offering the same top-tier services and exposure as the big names in the industry—but at a lower commission rate. Here's what you can expect when you work with us: ✅ Full MLS® system listing ✅ Exposure on all major internet real estate platforms ✅ Professional signage (where permitted) ✅ Property showings and open houses ✅ Strategic advertising to attract buyers ✅ Skilled negotiation to secure the best deal ✅ Seamless conveyancing to ensure a smooth closing With us, you’re getting everything you need to sell your property successfully—just without the high commission fees.

Q
What do you charge?

Simple, Transparent Pricing—No Surprises! Our commission structure is designed to save you money while providing top-tier service: • Residential Properties Under $400,000: $7,950 • Residential Properties Between $400,000 and $900,000: $9,950 • Residential Properties Over $900,000: 1% of the sale price + $950 Plus applicable taxes. Optional Flexibility: You have the option to offer additional commission to the buyer's agent. The choice is entirely yours! For commercial properties, farms, or development properties, please contact a One Percent Realty East agent directly or fill out the market evaluation form at the bottom right of our website. An agent will be in touch to discuss your specific needs. It’s that simple. Maximum service, minimum commission!

Q
Are your listings on MLS®, REALTOR.ca® and shared across the web?

Yes, yes, and yes! Our listings receive maximum exposure on the MLS® system, REALTOR.ca®, and all major real estate websites, ensuring your property gets seen by as many potential buyers as possible. With us, you’re never compromising on visibility—just saving on commission!


Learn more about the One Percent Realty Deal

 

Adrienne Briand BROKER/REALTOR®

Phone:
(902) 499-7998
Mobile:
(902) 499-7998
Email:
abriand@onepercentrealty.com
Support Area:
Bedford, Hammonds Plains, . Halifax, Dartmouth, Sackville, Enfield, Elmsdale, Tantallon, Timberlea, West Bedford, Bedford South, Glen Haven, Glen Margaret, Boutiliers Point

Entering into the buying or selling market can be an overwhelming experience, but with the right REA ...

Full Profile

 

Natalie Urquhart B.A, REALTOR ®, AIC Candidate Member (Appraisal Institute of Canada)

Phone:
(902) 489-0700
Email:
natalieonepercent@gmail.com
Support Area:
Bedford, Halifax, Dartmouth, Tantallon, Timberlea, Sackville, Elmsdale, Enfield, Chester, St Margarets Bay, Ellershouse, Beaver Bank

Selling and buying a home is a significant event. Natalie is a professional who will listen to your ...

Full Profile

 

Jasmine McNair REALTOR®/Associate Broker

Phone:
902.441.4566
Email:
jasmineonepercent@gmail.com
Support Area:
Bedford, Dartmouth, Halifax, Hammonds Plains, West Bedford, Bedford South, Downtown Dartmouth, Downtown Halifax, Tantallon, Fall River, Sackville, Hubley, Enfield, Elmsdale, Mount Uniacke, Clayton Park, Windsor Junction, Waverley, Eastern Passage, Timberlea, Belnan, Wellingto

Experience Exceptional Service with Jasmine McNairWith over 550 homes sold in the past 14 years ...

Full Profile