2943 Nova Scotia 311, Upper North River

2025-11-04
 

Quick Summary

Location
2943 Nova Scotia 311, Upper North River, Nova Scotia B6L6J8
Price
$349,900 CAD
Status:
For Sale
Property Type:
Single Family
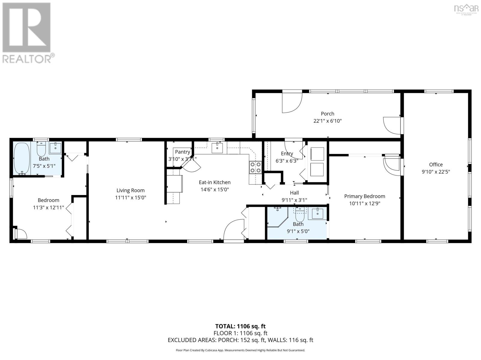
Area:
1106 sqft
Bedrooms:
2
Bathrooms:
2

MLS®#202527284

Property Description

Welcome Home! 2943 Highway 311 is a charming home full of character, nestled on just under 3 acres of beautiful land. The property features a stunning garden and an array of in-season trees and bushes strawberries, raspberries, apples, and blueberries await you! Step inside to find a warm, welcoming atmosphere and that perfect home-sweet-home feel. Large windows fill each room with natural light, while the spacious, thoughtfully designed kitchen might just inspire your inner chef. Unwind on the back deck and soak in the peaceful, picturesque surroundings. Come see it for yourself youll fall in love! (id:32467)

Property Features

Building

  • Appliances: Stove, Dishwasher, Dryer, Washer, Microwave, Refrigerator
  • Architectural Style: Mini
  • Basement Type: None
  • Cooling Type: Heat Pump
  • Exterior Finish: Vinyl
  • Fireplace: No
  • Flooring Type: Carpeted, Laminate, Tile
  • Interior Size: 1106 sqft
  • Building Type: Mobile Home
  • Stories: 1
  • Utility Water: Drilled Well

Land

  • Land Size: 2.98 ac
  • Sewer: Septic System

Ownership

  • Type: Freehold

Structure

  • Structure: Shed

Information entered by Keller Williams Select Realty
Listing information last updated on: 2025-11-05 08:06:49


Book your free home evaluation with a 1% REALTOR® now!


How much could you save in commission selling with One Percent Realty?

Slide to select your home's price:

$500,000

Your One Percent Realty Commission savings

$500,000

Savings calculated using One Percent Realty East Inc’s posted commission rates compared to a brokerage charging 5%. (HST is extra). Not all agents charge the same.

One Percent Realty's top FAQs

Q
What is the deal exactly, with One Percent Realty East?

We are a fully licensed real estate brokerage offering the same top-tier services and exposure as the big names in the industry—but at a lower commission rate. Here's what you can expect when you work with us: ✅ Full MLS® system listing ✅ Exposure on all major internet real estate platforms ✅ Professional signage (where permitted) ✅ Property showings and open houses ✅ Strategic advertising to attract buyers ✅ Skilled negotiation to secure the best deal ✅ Seamless conveyancing to ensure a smooth closing With us, you’re getting everything you need to sell your property successfully—just without the high commission fees.

Q
What do you charge?

Simple, Transparent Pricing—No Surprises! Our commission structure is designed to save you money while providing top-tier service: • Residential Properties Under $400,000: $7,950 • Residential Properties Between $400,000 and $900,000: $9,950 • Residential Properties Over $900,000: 1% of the sale price + $950 Plus applicable taxes. Optional Flexibility: You have the option to offer additional commission to the buyer's agent. The choice is entirely yours! For commercial properties, farms, or development properties, please contact a One Percent Realty East agent directly or fill out the market evaluation form at the bottom right of our website. An agent will be in touch to discuss your specific needs. It’s that simple. Maximum service, minimum commission!

Q
Are your listings on MLS®, REALTOR.ca® and shared across the web?

Yes, yes, and yes! Our listings receive maximum exposure on the MLS® system, REALTOR.ca®, and all major real estate websites, ensuring your property gets seen by as many potential buyers as possible. With us, you’re never compromising on visibility—just saving on commission!


Learn more about the One Percent Realty Deal