Lot C Highway 308, HUBBARDS POINT

2025-11-12
 

Quick Summary

Location
Lot C Highway 308, HUBBARDS POINT, Nova Scotia B0W3M0
Price
$80,000 CAD
Status:
For Sale
Property Type:
Vacant Land
Video Link:

MLS®#202527747

Property Description

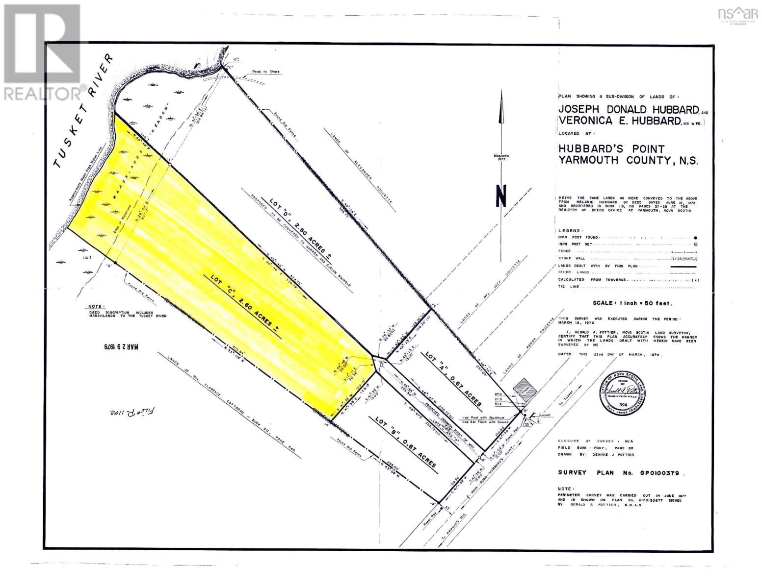
2.6 Acres with 300 Feet of Waterfront on the Tusket River Discover the perfect setting for your dream home on this beautiful 2.6-acre property featuring 300 feet of waterfront on the scenic Tusket River. The lot is partially cleared, offering a balance of natural beauty and ready-to-build convenience. Enjoy panoramic river views and peaceful surroundings while being only minutes from all the amenities in Tusket, including shops, dining, and services and just 10 minutes to Yarmouth. A right-of-way driveway provides easy access to the property, making this an ideal location for your year-round residence or a private retreat. (id:32467)

Property Features

Building

  • Fireplace: No
  • Utility Water: None

Features

  • Feature: Sloping, Partially cleared, Softwood bush

Land

  • Land Size: 2.6 ac
  • Sewer: No sewage system

Ownership

  • Type: Freehold

Information entered by Engel & Volkers (Yarmouth)
Listing information last updated on: 2025-11-28 14:42:30


Book your free home evaluation with a 1% REALTOR® now!


How much could you save in commission selling with One Percent Realty?

Slide to select your home's price:

$500,000

Your One Percent Realty Commission savings

$500,000

Savings calculated using One Percent Realty East Inc’s posted commission rates compared to a brokerage charging 5%. (HST is extra). Not all agents charge the same.

One Percent Realty's top FAQs

Q
What is the deal exactly, with One Percent Realty East?

We are a fully licensed real estate brokerage offering the same top-tier services and exposure as the big names in the industry—but at a lower commission rate. Here's what you can expect when you work with us: ✅ Full MLS® system listing ✅ Exposure on all major internet real estate platforms ✅ Professional signage (where permitted) ✅ Property showings and open houses ✅ Strategic advertising to attract buyers ✅ Skilled negotiation to secure the best deal ✅ Seamless conveyancing to ensure a smooth closing With us, you’re getting everything you need to sell your property successfully—just without the high commission fees.

Q
What do you charge?

Simple, Transparent Pricing—No Surprises! Our commission structure is designed to save you money while providing top-tier service: • Residential Properties Under $400,000: $7,950 • Residential Properties Between $400,000 and $900,000: $9,950 • Residential Properties Over $900,000: 1% of the sale price + $950 Plus applicable taxes. Optional Flexibility: You have the option to offer additional commission to the buyer's agent. The choice is entirely yours! For commercial properties, farms, or development properties, please contact a One Percent Realty East agent directly or fill out the market evaluation form at the bottom right of our website. An agent will be in touch to discuss your specific needs. It’s that simple. Maximum service, minimum commission!

Q
Are your listings on MLS®, REALTOR.ca® and shared across the web?

Yes, yes, and yes! Our listings receive maximum exposure on the MLS® system, REALTOR.ca®, and all major real estate websites, ensuring your property gets seen by as many potential buyers as possible. With us, you’re never compromising on visibility—just saving on commission!


Learn more about the One Percent Realty Deal