612 202 Walter Havill Drive, HALIFAX

2025-11-21
 

Quick Summary

Location
612 202 Walter Havill Drive, HALIFAX, Nova Scotia B3N3M4
Price
$509,000 CAD
Status:
For Sale
Property Type:
Single Family
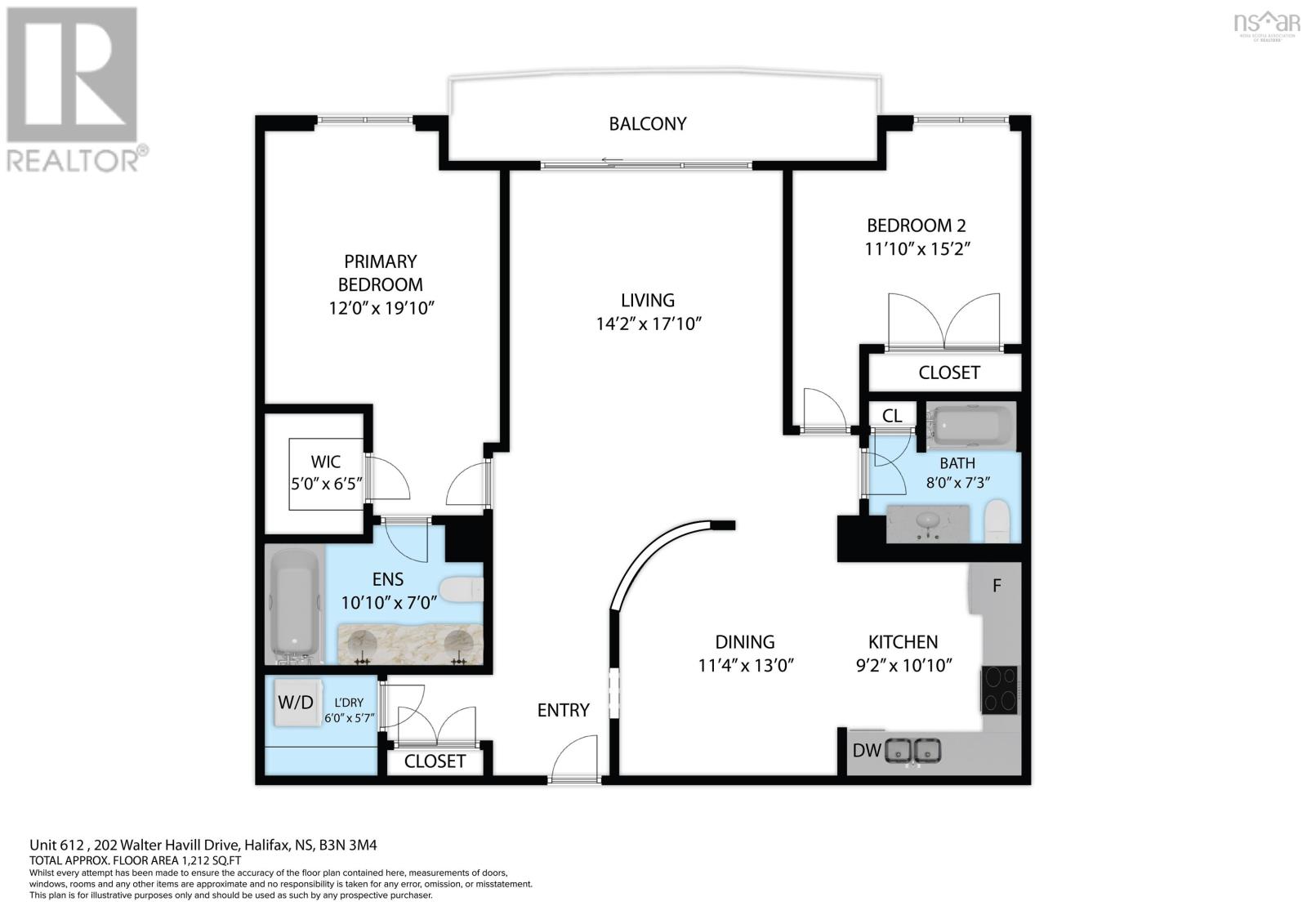
Area:
1212 sqft
Bedrooms:
2
Bathrooms:
2
Year of Construction:
2005

MLS®#202528351

Property Description

Don't miss this one. It's sure to impress. "The Roxbury". One of the best condo buildings in the city. This 6th floor two bedroom condo features a good size living room with a large deck and the beautiful views of Hail Pond and surrounding nature trails. A good size master with walk-in closet and 5-Pc ensuite, large bright, sunny kitchen and dining room, in unit laundry. This condo is close to downtown, highway access, minutes to shopping and more. The building features: sauna and hot tub, social room and guest suite. The condo fees include; heat, hot water and underground parking. (id:32467)

Property Features

Building

  • Appliances: Oven - Electric, Stove, Dryer - Electric, Washer, Refrigerator
  • Basement Type: None
  • Exterior Finish: Stone, Concrete
  • Fireplace: No
  • Flooring Type: Ceramic Tile, Laminate
  • Interior Size: 1212 sqft
  • Building Type: Apartment
  • Stories: 1
  • Utility Water: Municipal water

Land

  • Land Size: under 1/2 acre
  • Sewer: Municipal sewage system

Maintenance Fee

  • Maintenance Fee: 477.62

Ownership

  • Type: Condominium/Strata

Information entered by RE/MAX Nova (Halifax)
Listing information last updated on: 2025-11-21 15:19:08


Book your free home evaluation with a 1% REALTOR® now!


How much could you save in commission selling with One Percent Realty?

Slide to select your home's price:

$500,000

Your One Percent Realty Commission savings

$500,000

Savings calculated using One Percent Realty East Inc’s posted commission rates compared to a brokerage charging 5%. (HST is extra). Not all agents charge the same.

Send a Message


One Percent Realty's top FAQs

Q
What is the deal exactly, with One Percent Realty East?

We are a fully licensed real estate brokerage offering the same top-tier services and exposure as the big names in the industry—but at a lower commission rate. Here's what you can expect when you work with us: ✅ Full MLS® system listing ✅ Exposure on all major internet real estate platforms ✅ Professional signage (where permitted) ✅ Property showings and open houses ✅ Strategic advertising to attract buyers ✅ Skilled negotiation to secure the best deal ✅ Seamless conveyancing to ensure a smooth closing With us, you’re getting everything you need to sell your property successfully—just without the high commission fees.

Q
What do you charge?

Simple, Transparent Pricing—No Surprises! Our commission structure is designed to save you money while providing top-tier service: • Residential Properties Under $400,000: $7,950 • Residential Properties Between $400,000 and $900,000: $9,950 • Residential Properties Over $900,000: 1% of the sale price + $950 Plus applicable taxes. Optional Flexibility: You have the option to offer additional commission to the buyer's agent. The choice is entirely yours! For commercial properties, farms, or development properties, please contact a One Percent Realty East agent directly or fill out the market evaluation form at the bottom right of our website. An agent will be in touch to discuss your specific needs. It’s that simple. Maximum service, minimum commission!

Q
Are your listings on MLS®, REALTOR.ca® and shared across the web?

Yes, yes, and yes! Our listings receive maximum exposure on the MLS® system, REALTOR.ca®, and all major real estate websites, ensuring your property gets seen by as many potential buyers as possible. With us, you’re never compromising on visibility—just saving on commission!


Learn more about the One Percent Realty Deal

 

Alison McNair REALTOR®

Phone:
(902) 830-4363
Email:
alisonmcnair@eastlink.ca
Support Area:
Halifax Municipality and surrounding areas, Elmsdale, Enfield, Belnan, Nine Mile RIver

With over 11 years experience in the real estate industry you can count on a high level of success ...

Full Profile

 

Adrienne Briand BROKER/REALTOR®

Phone:
(902) 499-7998
Mobile:
(902) 499-7998
Email:
abriand@onepercentrealty.com
Support Area:
Bedford, Hammonds Plains, . Halifax, Dartmouth, Sackville, Enfield, Elmsdale, Tantallon, Timberlea, West Bedford, Bedford South, Glen Haven, Glen Margaret, Boutiliers Point

Entering into the buying or selling market can be an overwhelming experience, but with the right REA ...

Full Profile

 

Natalie Urquhart B.A, REALTOR ®, AIC Candidate Member (Appraisal Institute of Canada)

Phone:
(902) 489-0700
Email:
natalieonepercent@gmail.com
Support Area:
Bedford, Halifax, Dartmouth, Tantallon, Timberlea, Sackville, Elmsdale, Enfield, Chester, St Margarets Bay, Ellershouse, Beaver Bank

Selling and buying a home is a significant event. Natalie is a professional who will listen to your ...

Full Profile