LW14 209 Lewis Drive, WEST BEDFORD

2025-12-09
 

Quick Summary

Location
LW14 209 Lewis Drive, WEST BEDFORD, Nova Scotia B4B0L3
Price
$844,900 CAD
Status:
For Sale
Property Type:
Single Family
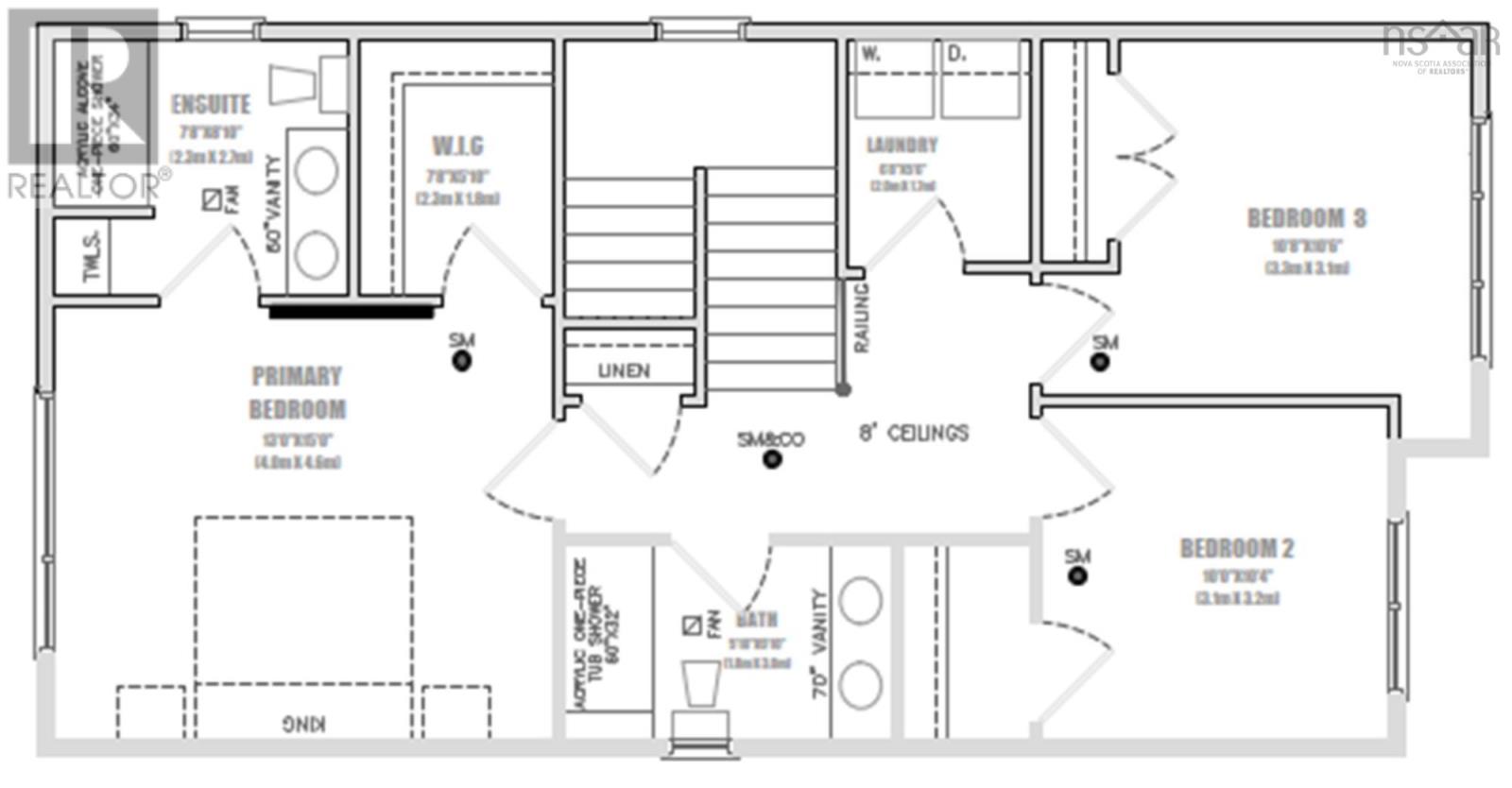
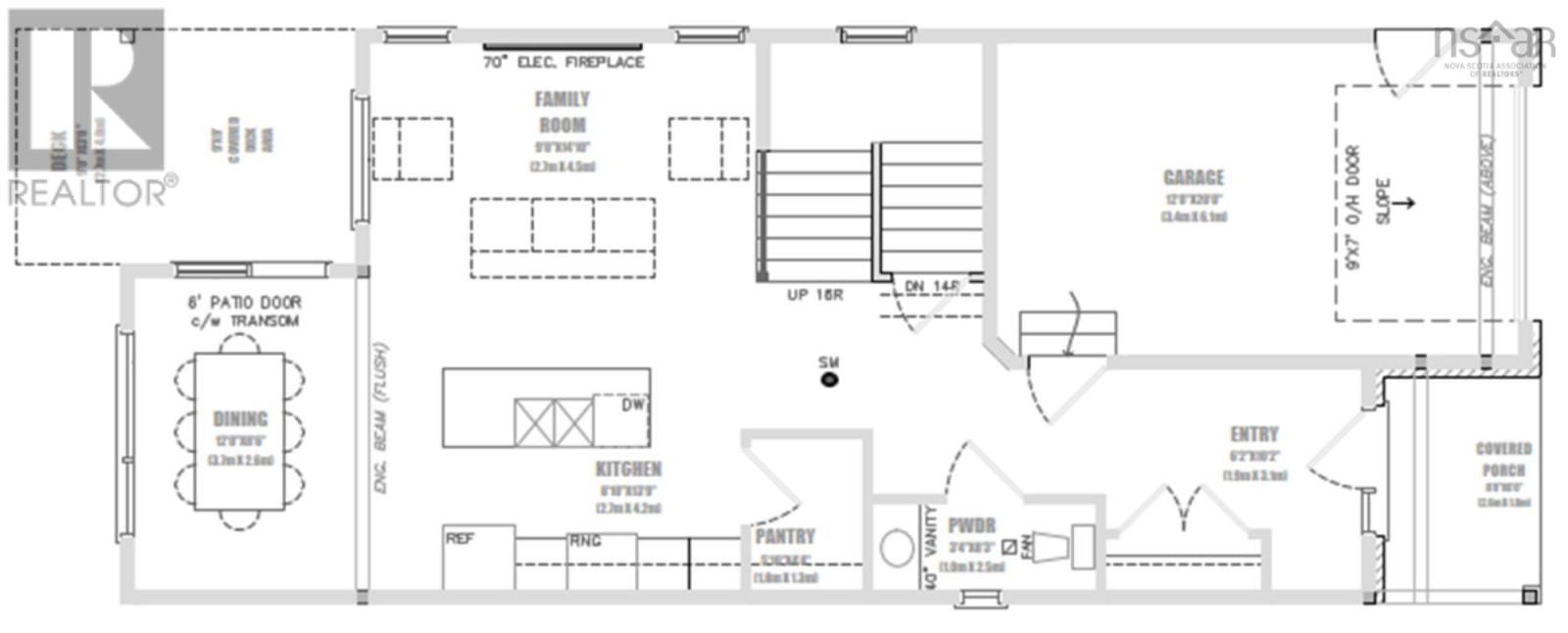
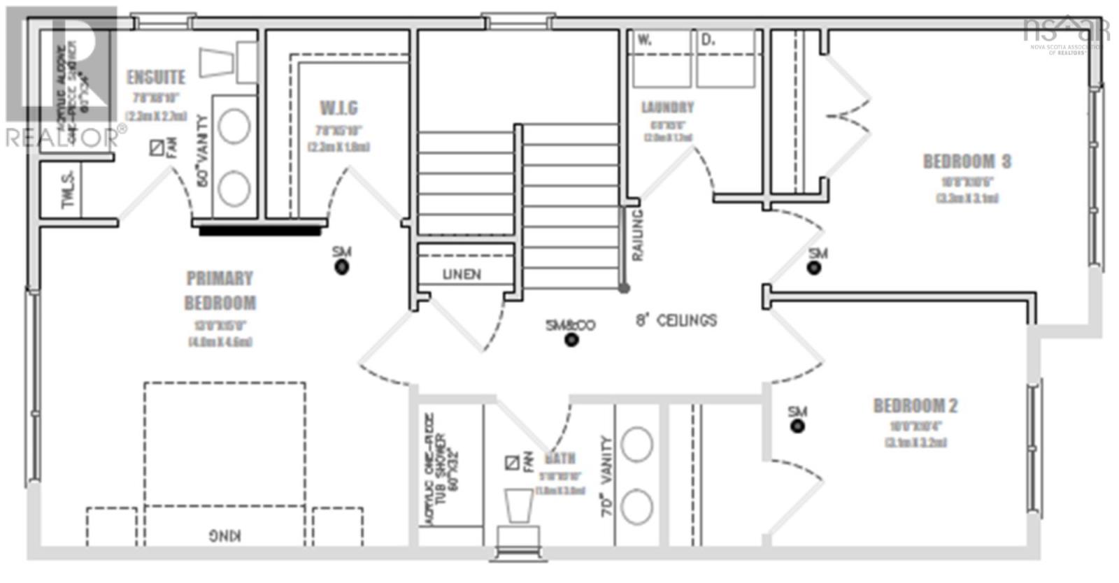
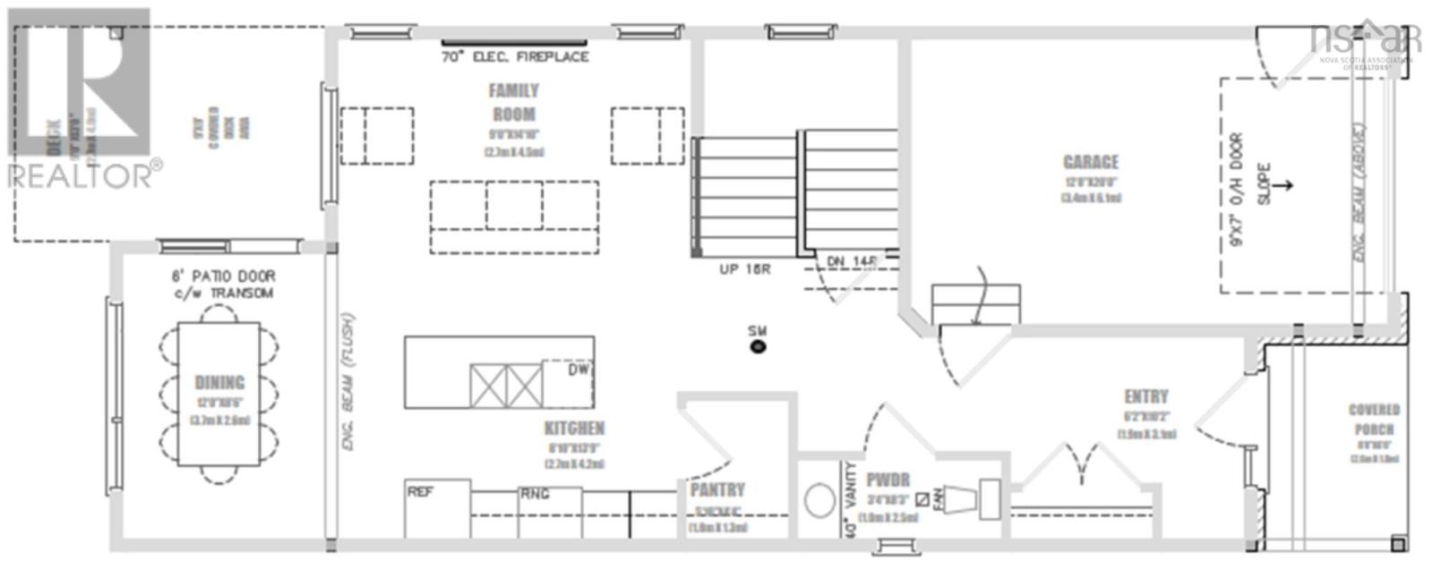
Area:
2537 sqft
Bedrooms:
3 bed +1
Bathrooms:
4
Year of Construction:
2025

MLS®#202529247

Property Description

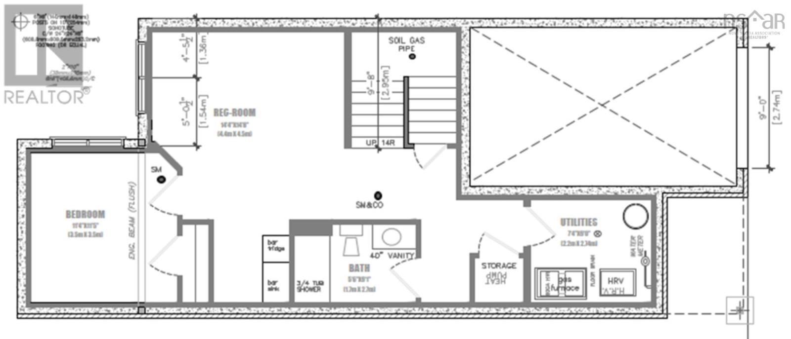
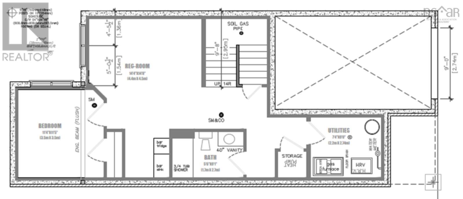
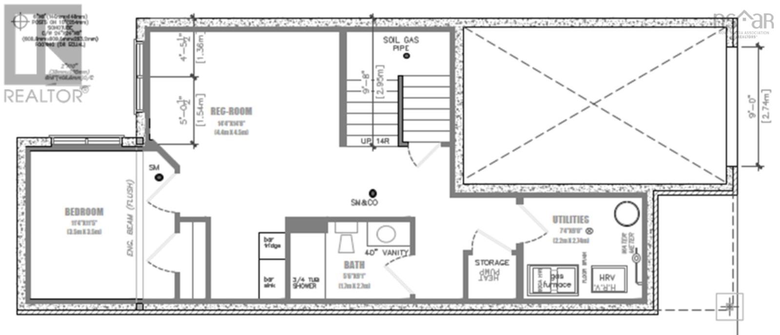
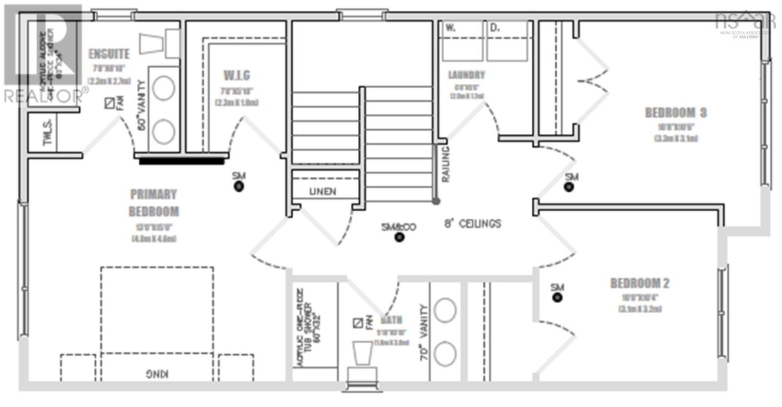
**Ready to move in by February 28, 2026** Introducing The Bellmore, a beautifully crafted 4-bedroom, 3.5-bath detached home byShaughnessy Homes in Belle Rose Park, West Bedford. Spanning 2,537 sq. ft. across three finished levels on a 34 lot, this homeblends modern style with everyday functionality. The main floor features an open-concept layout with a designer kitchen boasting awalk-in pantry, premium quartz countertops, and soft-close cabinetry. A stylish dining room bump-out adds a touch of elegance,perfect for gatherings. Engineered hardwood flows through the main and upper levels, complemented by an electric fireplace in theliving area. Step outside to a beautifully finished composite deck, providing long-lasting durability with low maintenance. The finishedbasement, with durable laminate flooring, offers flexible space for family or guests. If you're looking for a walk-out basement equippedwith a wet bar, washer and dryer rough in, bedroom, bathroom and a rec room - we have a limited number of The Bellmore walkoutmodels for $859,900, perfect for extended members of the family. Both versions include a fully ducted heat pump with natural gasbackup, plus rough-ins for a gas range, dryer, BBQ, water heater, and a 50 AMP EV charger. Nestled off Larry Uteck Blvd in theserene Belle Rose Park, this home is steps from schools, parks, and amenities. Built with Shaughnessy Homes signature quality,The Bellmore is a rare find in one of Bedfords most desirable communities. (id:32467)

Property Features

Ammenities Near By

  • Ammenities Near By: Park, Playground, Public Transit, Shopping

Building

  • Appliances: None
  • Construction Style: Detached
  • Cooling Type: Heat Pump
  • Exterior Finish: Stone, Vinyl
  • Fireplace: Yes
  • Flooring Type: Engineered hardwood, Laminate, Tile
  • Interior Size: 2537 sqft
  • Building Type: House
  • Stories: 2
  • Utility Water: Municipal water

Land

  • Land Size: 0.1057 ac
  • Sewer: Municipal sewage system

Ownership

  • Type: Freehold

Information entered by Royal LePage Atlantic
Listing information last updated on: 2026-03-04 17:40:25


Book your free home evaluation with a 1% REALTOR® now!


How much could you save in commission selling with One Percent Realty?

Slide to select your home's price:

$500,000

Your One Percent Realty Commission savings

$500,000

Savings calculated using One Percent Realty East Inc's posted commission rates compared to a brokerage charging 5%. (HST is extra). Not all agents charge the same.

Send a Message


One Percent Realty's top FAQs

Q
What is the deal exactly, with One Percent Realty East?

We are a fully licensed real estate brokerage offering the same top-tier services and exposure as the big names in the industry—but at a lower commission rate. Here's what you can expect when you work with us: ✅ Full MLS® system listing ✅ Exposure on all major internet real estate platforms ✅ Professional signage (where permitted) ✅ Property showings and open houses ✅ Strategic advertising to attract buyers ✅ Skilled negotiation to secure the best deal ✅ Seamless conveyancing to ensure a smooth closing With us, you’re getting everything you need to sell your property successfully—just without the high commission fees.

Q
What do you charge?

Simple, Transparent Pricing—No Surprises! Our commission structure is designed to save you money while providing top-tier service: • Residential Properties Under $400,000: $7,950 • Residential Properties Between $400,000 and $900,000: $9,950 • Residential Properties Over $900,000: 1% of the sale price + $950 Plus applicable taxes. Optional Flexibility: You have the option to offer additional commission to the buyer's agent. The choice is entirely yours! For commercial properties, farms, or development properties, please contact a One Percent Realty East agent directly or fill out the market evaluation form at the bottom right of our website. An agent will be in touch to discuss your specific needs. It’s that simple. Maximum service, minimum commission!

Q
Are your listings on MLS®, REALTOR.ca® and shared across the web?

Yes, yes, and yes! Our listings receive maximum exposure on the MLS® system, REALTOR.ca®, and all major real estate websites, ensuring your property gets seen by as many potential buyers as possible. With us, you’re never compromising on visibility—just saving on commission!


Learn more about the One Percent Realty Deal

 

Adrienne Briand BROKER/REALTOR®

Phone:
(902) 499-7998
Mobile:
(902) 499-7998
Email:
abriand@onepercentrealty.com
Support Area:
Bedford, Hammonds Plains, . Halifax, Dartmouth, Sackville, Enfield, Elmsdale, Tantallon, Timberlea, West Bedford, Bedford South, Glen Haven, Glen Margaret, Boutiliers Point

Entering into the buying or selling market can be an overwhelming experience, but with the right REA ...

Full Profile

 

Jasmine McNair REALTOR®/Associate Broker

Phone:
902.441.4566
Email:
jasmineonepercent@gmail.com
Support Area:
Bedford, Dartmouth, Halifax, Hammonds Plains, West Bedford, Bedford South, Downtown Dartmouth, Downtown Halifax, Tantallon, Fall River, Sackville, Hubley, Enfield, Elmsdale, Mount Uniacke, Clayton Park, Windsor Junction, Waverley, Eastern Passage, Timberlea, Belnan, Wellingto

Experience Exceptional Service with Jasmine...with over 15 years of experience helping clients buy a ...

Full Profile