Unit 210 Hybrid Lane, EAST UNIACKE

2025-12-18
 

Quick Summary

Location
Unit 210 Hybrid Lane, EAST UNIACKE, Nova Scotia B0N1Z0
Price
$629,900 CAD
Status:
For Sale
Property Type:
Single Family
Area:
1574 sqft
Bedrooms:
3
Bathrooms:
2

MLS®#202529560

Property Description

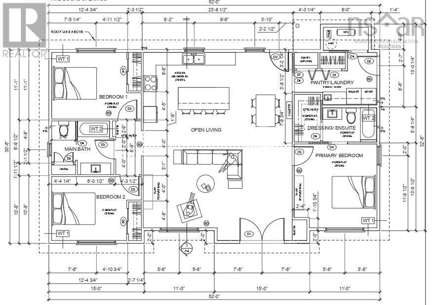
Luxury living in Cottage Country awaits! Located on a 1.3 acre lot in East Uniacke, this designer 3 bedroom, 2 bath home is currently under construction and just minutes from Long Lake's boat launch, dock, and scenic trails. Inside, you'll be greeted by an open concept living area featuring 9 ft ceilings throughout and designer lighting that elevates every room. The custom kitchen with a walk-in pantry and laundry room is open to the living room, complete with a cozy propane fireplace. The primary suite provides a private retreat with its own full ensuite bath, while two additional large bedrooms and a full bath are thoughtfully located on the opposite side of the home. The home is crafted with universal design principles and ensures comfort and accessibility for all. Step outside to your back deck overlooking peaceful nature. Enjoy modern conveniences including heat pumps and an electric vehicle charging station. The condo fee covers snow removal and garbage collection, offering low-maintenance living. You will love the optional 18x24 weather tight detached garage that can be added to the purchase. Adventure is right at your doorstep with swimming, fishing, and boating at Long Lake and exploring groomed hiking trails. This home truly has it all, offering quiet country living with the convenience of being less than 30 minutes from all amenities in HRM. (id:32467)

Property Features

Building

  • Architectural Style: Bungalow
  • Basement Type: None
  • Construction Style: Detached
  • Cooling Type: Heat Pump
  • Exterior Finish: Aluminum siding, Vinyl
  • Fireplace: Yes
  • Flooring Type: Engineered hardwood, Hardwood
  • Interior Size: 1574 sqft
  • Stories: 1
  • Utility Water: Drilled Well, Well

Land

  • Land Size: 1.3 ac
  • Sewer: Septic System

Maintenance Fee

  • Maintenance Fee: 50.00

Ownership

  • Type: Condominium/Strata

Information entered by Royal LePage Atlantic - Valley(Windsor)
Listing information last updated on: 2026-01-07 15:46:42


Book your free home evaluation with a 1% REALTOR® now!


How much could you save in commission selling with One Percent Realty?

Slide to select your home's price:

$500,000

Your One Percent Realty Commission savings

$500,000

Savings calculated using One Percent Realty East Inc’s posted commission rates compared to a brokerage charging 5%. (HST is extra). Not all agents charge the same.

One Percent Realty's top FAQs

Q
What is the deal exactly, with One Percent Realty East?

We are a fully licensed real estate brokerage offering the same top-tier services and exposure as the big names in the industry—but at a lower commission rate. Here's what you can expect when you work with us: ✅ Full MLS® system listing ✅ Exposure on all major internet real estate platforms ✅ Professional signage (where permitted) ✅ Property showings and open houses ✅ Strategic advertising to attract buyers ✅ Skilled negotiation to secure the best deal ✅ Seamless conveyancing to ensure a smooth closing With us, you’re getting everything you need to sell your property successfully—just without the high commission fees.

Q
What do you charge?

Simple, Transparent Pricing—No Surprises! Our commission structure is designed to save you money while providing top-tier service: • Residential Properties Under $400,000: $7,950 • Residential Properties Between $400,000 and $900,000: $9,950 • Residential Properties Over $900,000: 1% of the sale price + $950 Plus applicable taxes. Optional Flexibility: You have the option to offer additional commission to the buyer's agent. The choice is entirely yours! For commercial properties, farms, or development properties, please contact a One Percent Realty East agent directly or fill out the market evaluation form at the bottom right of our website. An agent will be in touch to discuss your specific needs. It’s that simple. Maximum service, minimum commission!

Q
Are your listings on MLS®, REALTOR.ca® and shared across the web?

Yes, yes, and yes! Our listings receive maximum exposure on the MLS® system, REALTOR.ca®, and all major real estate websites, ensuring your property gets seen by as many potential buyers as possible. With us, you’re never compromising on visibility—just saving on commission!


Learn more about the One Percent Realty Deal