10 Peterson Street, CAMBRIDGE

2026-01-16
 

Quick Summary

Location
10 Peterson Street, CAMBRIDGE, Nova Scotia B0P1G0
Price
$525,000 CAD
Status:
For Sale
Property Type:
Single Family
Area:
1400 sqft
Bedrooms:
2
Bathrooms:
2

MLS®#202600957

Property Description

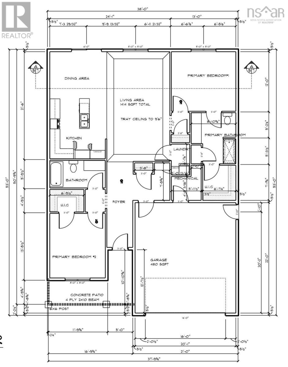
This attractive new build offers excellent curb appeal with a welcoming covered porch and a concrete patio conveniently located off the dining roomperfect for outdoor enjoyment. Designed for efficiency, the home is heated with a ductless heat pump and finished with durable vinyl flooring throughout. Inside, youll find a spacious open-concept layout featuring the kitchen, living room, and dining area, highlighted by a stunning 9'5" tray ceiling with indirect lighting in the living room. The custom kitchen is beautifully appointed with solid countertops and brand-new appliances. The home features two primary bedrooms, each with its own ensuite bath and walk-in closet, along with a separate laundry area for added convenience. (id:32467)

Property Features

Ammenities Near By

  • Ammenities Near By: Playground, Public Transit, Place of Worship

Building

  • Appliances: Range - Electric, Dishwasher, Microwave Range Hood Combo, Refrigerator
  • Basement Type: None
  • Construction Style: Detached
  • Cooling Type: Heat Pump
  • Exterior Finish: Vinyl
  • Fireplace: No
  • Flooring Type: Laminate, Vinyl
  • Interior Size: 1400 sqft
  • Building Type: House
  • Stories: 1
  • Utility Water: Drilled Well

Features

  • Feature: Level

Land

  • Land Size: 0.1263 ac
  • Sewer: Municipal sewage system

Ownership

  • Type: Freehold

Information entered by Royal LePage Atlantic (New Minas)
Listing information last updated on: 2026-04-19 00:26:01


Book your free home evaluation with a 1% REALTOR® now!


How much could you save in commission selling with One Percent Realty?

Slide to select your home's price:

$500,000

Your One Percent Realty Commission savings

$500,000

Savings calculated using One Percent Realty East Inc's posted commission rates compared to a brokerage charging 5%. (HST is extra). Not all agents charge the same.

One Percent Realty's top FAQs

Q
What is the deal exactly, with One Percent Realty East?

We are a fully licensed real estate brokerage offering the same top-tier services and exposure as the big names in the industry—but at a lower commission rate. Here's what you can expect when you work with us: ✅ Full MLS® system listing ✅ Exposure on all major internet real estate platforms ✅ Professional signage (where permitted) ✅ Property showings and open houses ✅ Strategic advertising to attract buyers ✅ Skilled negotiation to secure the best deal ✅ Seamless conveyancing to ensure a smooth closing With us, you’re getting everything you need to sell your property successfully—just without the high commission fees.

Q
What do you charge?

Simple, Transparent Pricing—No Surprises! Our commission structure is designed to save you money while providing top-tier service: • Residential Properties Under $400,000: $7,950 • Residential Properties Between $400,000 and $900,000: $9,950 • Residential Properties Over $900,000: 1% of the sale price + $950 Plus applicable taxes. Optional Flexibility: You have the option to offer additional commission to the buyer's agent. The choice is entirely yours! For commercial properties, farms, or development properties, please contact a One Percent Realty East agent directly or fill out the market evaluation form at the bottom right of our website. An agent will be in touch to discuss your specific needs. It’s that simple. Maximum service, minimum commission!

Q
Are your listings on MLS®, REALTOR.ca® and shared across the web?

Yes, yes, and yes! Our listings receive maximum exposure on the MLS® system, REALTOR.ca®, and all major real estate websites, ensuring your property gets seen by as many potential buyers as possible. With us, you’re never compromising on visibility—just saving on commission!


Learn more about the One Percent Realty Deal