55 Victoria Street, AMHERST

2026-02-07
 

Quick Summary

Location
55 Victoria Street, AMHERST, Nova Scotia B4H1X4
Price
$1 CAD
Status:
For lease
Property Type:
Office
Video Link:

MLS®#202404938

Property Description

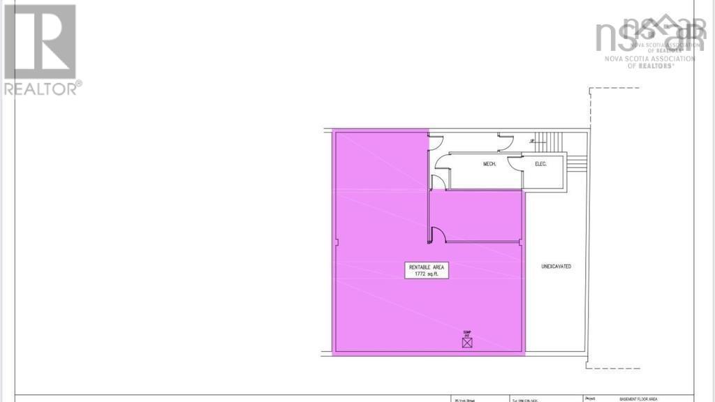
LOCATION, LOCATION, LOCATION! This prime commercial space is up for LEASE in the heart of Amherst with frontage on one of the busiest intersections in town! The space offers a total of 2,888 square feet main level with an an additional 1,772 square feet available in the basement for storage etc. if needed. Previously used as an insurance brokerage, the main level space provides a nice waiting/reception area, large common area that could accommodate many cubicles and 8 independent offices along with a spacious break room. The lease includes washrooms, common area and a 3-4 parking spaces although there is plenty of public parking spaces surrounding the building. Owner is willing to review options and is flexible with the space. Tenant is responsible for arranging there own cleaning service. Check out the 3D link for 3D tour. (id:32467)

Property Features

Ammenities Near By

  • Ammenities Near By: Shopping

Building

  • Cooling Type: Heat Pump
  • Fireplace: No
  • Flooring Type: Concrete, Other
  • Utility Water: Municipal water

Land

  • Land Size: 0.1959 ac

Ownership

  • Type: Freehold

Information entered by Royal LePage Cumberland Realty Ltd.
Listing information last updated on: 2026-01-30 17:50:11


Book your free home evaluation with a 1% REALTOR® now!


How much could you save in commission selling with One Percent Realty?

Slide to select your home's price:

$500,000

Your One Percent Realty Commission savings

$500,000

Savings calculated using One Percent Realty East Inc's posted commission rates compared to a brokerage charging 5%. (HST is extra). Not all agents charge the same.

One Percent Realty's top FAQs

Q
What is the deal exactly, with One Percent Realty East?

We are a fully licensed real estate brokerage offering the same top-tier services and exposure as the big names in the industry—but at a lower commission rate. Here's what you can expect when you work with us: ✅ Full MLS® system listing ✅ Exposure on all major internet real estate platforms ✅ Professional signage (where permitted) ✅ Property showings and open houses ✅ Strategic advertising to attract buyers ✅ Skilled negotiation to secure the best deal ✅ Seamless conveyancing to ensure a smooth closing With us, you’re getting everything you need to sell your property successfully—just without the high commission fees.

Q
What do you charge?

Simple, Transparent Pricing—No Surprises! Our commission structure is designed to save you money while providing top-tier service: • Residential Properties Under $400,000: $7,950 • Residential Properties Between $400,000 and $900,000: $9,950 • Residential Properties Over $900,000: 1% of the sale price + $950 Plus applicable taxes. Optional Flexibility: You have the option to offer additional commission to the buyer's agent. The choice is entirely yours! For commercial properties, farms, or development properties, please contact a One Percent Realty East agent directly or fill out the market evaluation form at the bottom right of our website. An agent will be in touch to discuss your specific needs. It’s that simple. Maximum service, minimum commission!

Q
Are your listings on MLS®, REALTOR.ca® and shared across the web?

Yes, yes, and yes! Our listings receive maximum exposure on the MLS® system, REALTOR.ca®, and all major real estate websites, ensuring your property gets seen by as many potential buyers as possible. With us, you’re never compromising on visibility—just saving on commission!


Learn more about the One Percent Realty Deal