24 Mackenzie Avenue, INVERNESS

2026-02-09
 

Quick Summary

Location
24 Mackenzie Avenue, INVERNESS, Nova Scotia B0E1N0
Price
$299,000 CAD
Status:
For Sale
Property Type:
Single Family
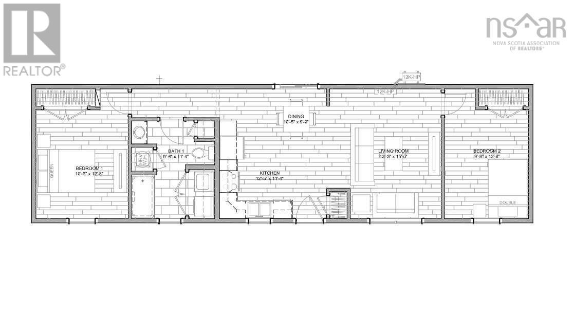
Area:
928 sqft
Bedrooms:
2
Bathrooms:
1
Year of Construction:
2020

MLS®#202602377

Property Description

For more information, please click the "More Information" button. Charming Detached Home on Its Own Lot Walk to Beach, Hospital & Amenities Enjoy simple, low-maintenance living in this well-kept 2-bedroom home ideally located in the heart of Inverness. Situated on its own 2,600 sq ft lot (no park or lease fees), this property offers the rare combination of privacy, convenience, and affordability all within a five-minute walk to the beach, hospital, and local amenities. Designed for comfortable year-round living, the home is efficient to heat with a combination of electric heat, propane fireplace, and heat pump. The functional layout makes excellent use of its space and includes all major appliances, including washer and dryer, making it move-in ready. Outside, the property features a private driveway and a separate barn with electricity, perfect for storage, a workshop, hobby space, or seasonal gear. This property is ideal for those looking to downsize, first-time buyers seeking an alternative to renting, or investors searching for a manageable rental in a prime walkable location. Key Features: Owned 2,600 sq ft lot no lot fees 2 bedrooms, 1 bathroom Heat pump plus electric and propane heat options Includes all appliances Private driveway Electrified barn for storage or workspace Walk to beach, hospital, and daily amenities Easy-care property with low operating costs A unique opportunity to own a detached home on land in one of Invernesss most convenient locations (id:32467)

Property Features

Ammenities Near By

  • Ammenities Near By: Golf Course, Beach

Building

  • Appliances: Cooktop - Propane, Oven - Propane, Dishwasher, Washer/Dryer Combo, Microwave, Refrigerator, Fridge/Stove Combo
  • Basement Type: None
  • Construction Style: Detached
  • Cooling Type: Heat Pump
  • Exterior Finish: Vinyl
  • Fireplace: Yes
  • Flooring Type: Laminate
  • Interior Size: 928 sqft
  • Building Type: House
  • Stories: 1
  • Utility Water: Municipal water

Land

  • Land Size: 0.0597 ac
  • Sewer: Municipal sewage system

Ownership

  • Type: Freehold

Information entered by Easy List Realty Ltd.
Listing information last updated on: 2026-03-02 16:50:16


Book your free home evaluation with a 1% REALTOR® now!


How much could you save in commission selling with One Percent Realty?

Slide to select your home's price:

$500,000

Your One Percent Realty Commission savings

$500,000

Savings calculated using One Percent Realty East Inc's posted commission rates compared to a brokerage charging 5%. (HST is extra). Not all agents charge the same.

One Percent Realty's top FAQs

Q
What is the deal exactly, with One Percent Realty East?

We are a fully licensed real estate brokerage offering the same top-tier services and exposure as the big names in the industry—but at a lower commission rate. Here's what you can expect when you work with us: ✅ Full MLS® system listing ✅ Exposure on all major internet real estate platforms ✅ Professional signage (where permitted) ✅ Property showings and open houses ✅ Strategic advertising to attract buyers ✅ Skilled negotiation to secure the best deal ✅ Seamless conveyancing to ensure a smooth closing With us, you’re getting everything you need to sell your property successfully—just without the high commission fees.

Q
What do you charge?

Simple, Transparent Pricing—No Surprises! Our commission structure is designed to save you money while providing top-tier service: • Residential Properties Under $400,000: $7,950 • Residential Properties Between $400,000 and $900,000: $9,950 • Residential Properties Over $900,000: 1% of the sale price + $950 Plus applicable taxes. Optional Flexibility: You have the option to offer additional commission to the buyer's agent. The choice is entirely yours! For commercial properties, farms, or development properties, please contact a One Percent Realty East agent directly or fill out the market evaluation form at the bottom right of our website. An agent will be in touch to discuss your specific needs. It’s that simple. Maximum service, minimum commission!

Q
Are your listings on MLS®, REALTOR.ca® and shared across the web?

Yes, yes, and yes! Our listings receive maximum exposure on the MLS® system, REALTOR.ca®, and all major real estate websites, ensuring your property gets seen by as many potential buyers as possible. With us, you’re never compromising on visibility—just saving on commission!


Learn more about the One Percent Realty Deal