272 Explorer Loop, EAST UNIACKE

2026-02-15
 

Quick Summary

Location
272 Explorer Loop, EAST UNIACKE, Nova Scotia B0N1Z0
Price
$359,900 CAD
Status:
For Sale
Property Type:
Single Family
Area:
672 sqft
Bedrooms:
2
Bathrooms:
1

MLS®#202602753

Property Description

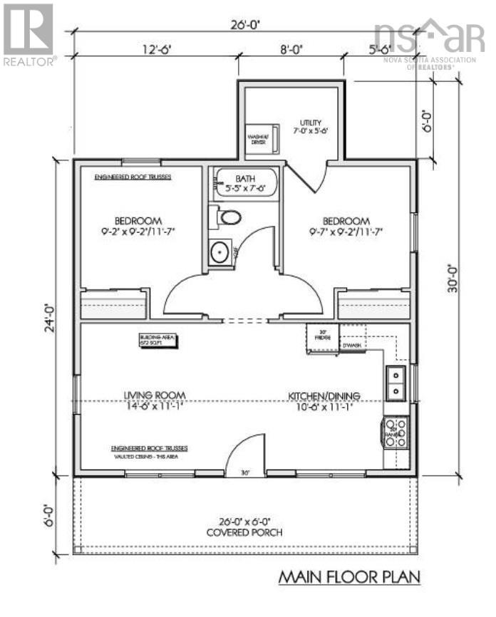
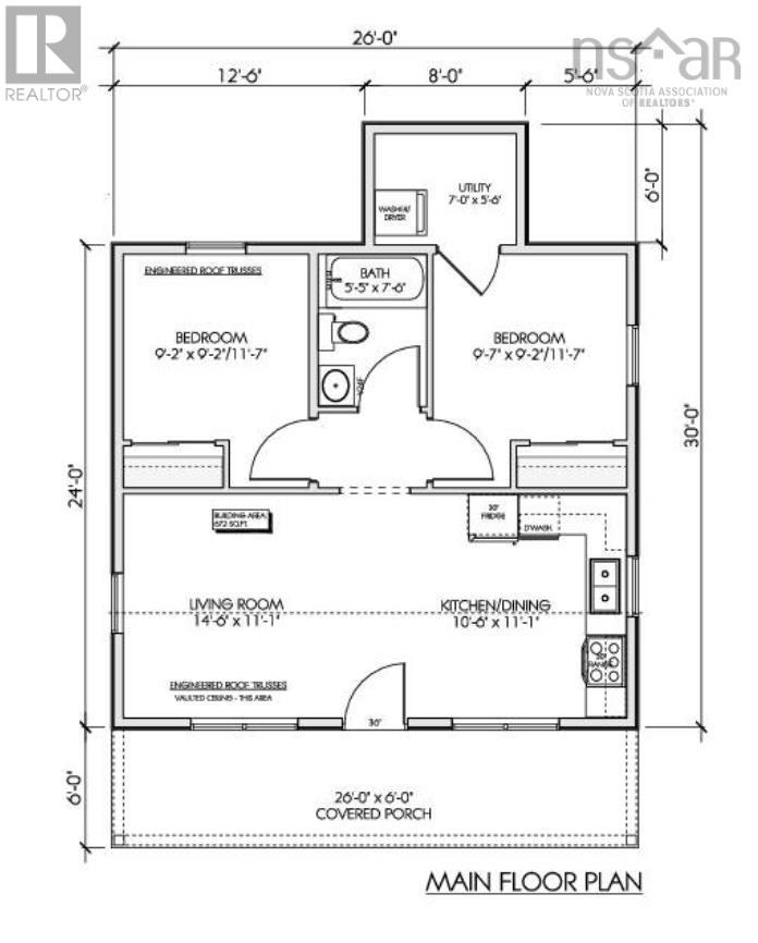
Have you dreamed of affordable living in your own house? We have the answer! Loon Point, in the Villages of Long Lake, an Lake Side Community in East Uniacke! Its just a short commute to the cities and airport. This Bare Land Condo has it all. You own your lot and everything on it, while the Condo Corp manages and maintains the roads, parks, trails and lake access points. They are even responsible to inspect your septic tank and clean it out if required. Yes every property owner has deeded access to the 3 private lake access points with their wharves, canoe, kayak, one even has a paddle board racks and boat launch. Undeveloped Lots start at approximately $67,500 and Homes start in the $300,000 price range. We offer many home designs suited to this development. We can also help design and build your custom home. This Cricket is a cozy Rancher. It is a 648 sq ft 2 bedroom home on a 1.4 acre lot. The House includes 2 comfortably sized bedrooms, a 4 piece bath, a utility/laundry room and a comfortable great room. Comfortable Cozy and very affordable. Call to book your appointment now (id:32467)

Property Features

Building

  • Architectural Style: Bungalow
  • Basement Type: None
  • Construction Style: Detached
  • Cooling Type: Wall unit, Heat Pump
  • Exterior Finish: Vinyl
  • Fireplace: No
  • Flooring Type: Vinyl Plank
  • Interior Size: 672 sqft
  • Building Type: House
  • Stories: 1
  • Utility Water: Drilled Well

Features

  • Feature: Treed, Level, Walk-In Closet

Land

  • Land Size: 1.4087 ac
  • Sewer: Septic System

Maintenance Fee

  • Maintenance Fee: 25.00

Ownership

  • Type: Condominium/Strata

Information entered by RE/MAX Nova
Listing information last updated on: 2026-04-02 19:40:44


Book your free home evaluation with a 1% REALTOR® now!


How much could you save in commission selling with One Percent Realty?

Slide to select your home's price:

$500,000

Your One Percent Realty Commission savings

$500,000

Savings calculated using One Percent Realty East Inc's posted commission rates compared to a brokerage charging 5%. (HST is extra). Not all agents charge the same.

One Percent Realty's top FAQs

Q
What is the deal exactly, with One Percent Realty East?

We are a fully licensed real estate brokerage offering the same top-tier services and exposure as the big names in the industry—but at a lower commission rate. Here's what you can expect when you work with us: ✅ Full MLS® system listing ✅ Exposure on all major internet real estate platforms ✅ Professional signage (where permitted) ✅ Property showings and open houses ✅ Strategic advertising to attract buyers ✅ Skilled negotiation to secure the best deal ✅ Seamless conveyancing to ensure a smooth closing With us, you’re getting everything you need to sell your property successfully—just without the high commission fees.

Q
What do you charge?

Simple, Transparent Pricing—No Surprises! Our commission structure is designed to save you money while providing top-tier service: • Residential Properties Under $400,000: $7,950 • Residential Properties Between $400,000 and $900,000: $9,950 • Residential Properties Over $900,000: 1% of the sale price + $950 Plus applicable taxes. Optional Flexibility: You have the option to offer additional commission to the buyer's agent. The choice is entirely yours! For commercial properties, farms, or development properties, please contact a One Percent Realty East agent directly or fill out the market evaluation form at the bottom right of our website. An agent will be in touch to discuss your specific needs. It’s that simple. Maximum service, minimum commission!

Q
Are your listings on MLS®, REALTOR.ca® and shared across the web?

Yes, yes, and yes! Our listings receive maximum exposure on the MLS® system, REALTOR.ca®, and all major real estate websites, ensuring your property gets seen by as many potential buyers as possible. With us, you’re never compromising on visibility—just saving on commission!


Learn more about the One Percent Realty Deal