25 JAN MARIE Drive, LAWRENCETOWN

2026-02-18
 

Quick Summary

Location
25 JAN MARIE Drive, LAWRENCETOWN, Nova Scotia B2Z1E2
Price
$569,000 CAD
Status:
For Sale
Property Type:
Single Family
Area:
1250 sqft
Bedrooms:
4
Bathrooms:
2
Open House:
15/03/2026 02:00:00 PM to
15/03/2026 04:00:00 PM

MLS®#202602903

Property Description

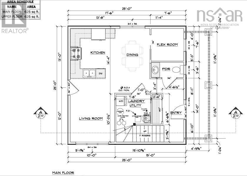
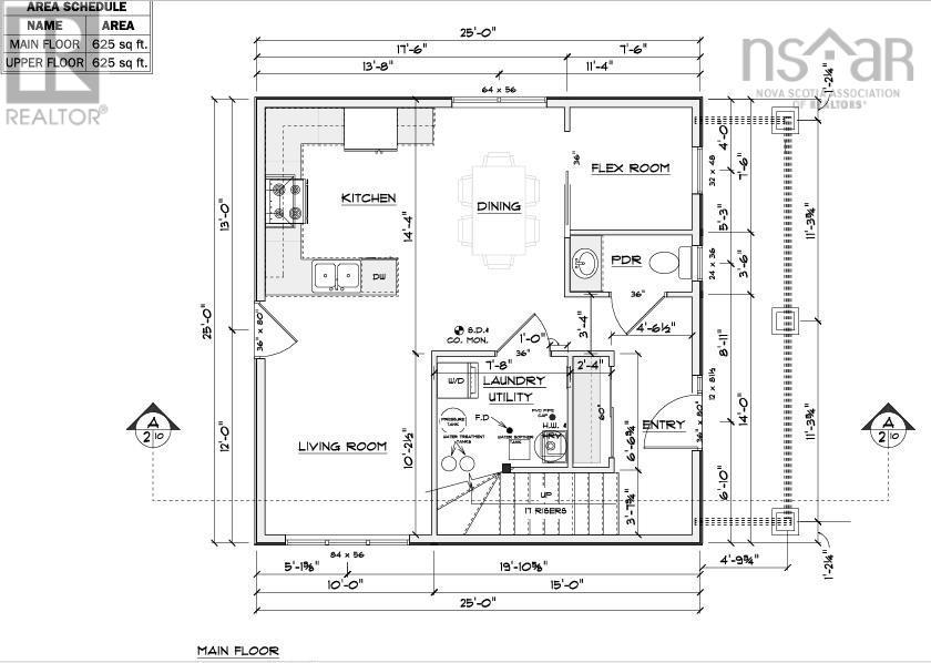
When viewing this property on Realtor.ca MLS # 202602903 Please click on Realtor's website link to the right for further information. This brand new house offers 4 bedrooms, 1.5 baths, an open-concept kitchen-dining-living area, and a private property surrounded by tall mature trees. Ideally located in a quiet family oriented subdivision, with a quaint front covered patio. Two heat pumps; in the living room and primary bedroom, supply cool AC in the summer and affordable heating in the winter. This home boasts porcelain tiles, elegant light fixtures, lots of natural daylight, and a beautiful kitchen with stainless steel appliances. Just 10 minutes to the heart of Cole Harbour, 10 minutes to Lawrencetown beach, and 25 minutes to the Halifax bridges. Also, the Salt Marsh trail is nearby for outdoor enthusiasts. (id:32467)

Property Features

Ammenities Near By

  • Ammenities Near By: Park, Playground, Beach

Building

  • Appliances: Stove, Dishwasher, Washer/Dryer Combo, Microwave, Refrigerator, Water softener
  • Basement Type: None
  • Construction Style: Detached
  • Cooling Type: Wall unit, Heat Pump
  • Exterior Finish: Vinyl
  • Fireplace: No
  • Flooring Type: Porcelain Tile, Vinyl
  • Interior Size: 1250 sqft
  • Building Type: House
  • Stories: 2
  • Utility Water: Drilled Well

Features

  • Feature: Level

Land

  • Land Size: 0.779 ac
  • Sewer: Septic System

Ownership

  • Type: Freehold

Information entered by FLAT RATE REALTY CANADA LTD - 15099
Listing information last updated on: 2026-03-11 18:35:44


Book your free home evaluation with a 1% REALTOR® now!


How much could you save in commission selling with One Percent Realty?

Slide to select your home's price:

$500,000

Your One Percent Realty Commission savings

$500,000

Savings calculated using One Percent Realty East Inc's posted commission rates compared to a brokerage charging 5%. (HST is extra). Not all agents charge the same.

One Percent Realty's top FAQs

Q
What is the deal exactly, with One Percent Realty East?

We are a fully licensed real estate brokerage offering the same top-tier services and exposure as the big names in the industry—but at a lower commission rate. Here's what you can expect when you work with us: ✅ Full MLS® system listing ✅ Exposure on all major internet real estate platforms ✅ Professional signage (where permitted) ✅ Property showings and open houses ✅ Strategic advertising to attract buyers ✅ Skilled negotiation to secure the best deal ✅ Seamless conveyancing to ensure a smooth closing With us, you’re getting everything you need to sell your property successfully—just without the high commission fees.

Q
What do you charge?

Simple, Transparent Pricing—No Surprises! Our commission structure is designed to save you money while providing top-tier service: • Residential Properties Under $400,000: $7,950 • Residential Properties Between $400,000 and $900,000: $9,950 • Residential Properties Over $900,000: 1% of the sale price + $950 Plus applicable taxes. Optional Flexibility: You have the option to offer additional commission to the buyer's agent. The choice is entirely yours! For commercial properties, farms, or development properties, please contact a One Percent Realty East agent directly or fill out the market evaluation form at the bottom right of our website. An agent will be in touch to discuss your specific needs. It’s that simple. Maximum service, minimum commission!

Q
Are your listings on MLS®, REALTOR.ca® and shared across the web?

Yes, yes, and yes! Our listings receive maximum exposure on the MLS® system, REALTOR.ca®, and all major real estate websites, ensuring your property gets seen by as many potential buyers as possible. With us, you’re never compromising on visibility—just saving on commission!


Learn more about the One Percent Realty Deal