2455 2457 Old Sambro Road, WILLIAMSWOOD

2026-03-10
 

Quick Summary

Location
2455 2457 Old Sambro Road, WILLIAMSWOOD, Nova Scotia B3V1C9
Price
$1,199,900 CAD
Status:
For Sale
Property Type:
Single Family
Area:
3712 sqft
Bedrooms:
6
Bathrooms:
6
Year of Construction:
2022
Video Link:

MLS®#202604252

Property Description

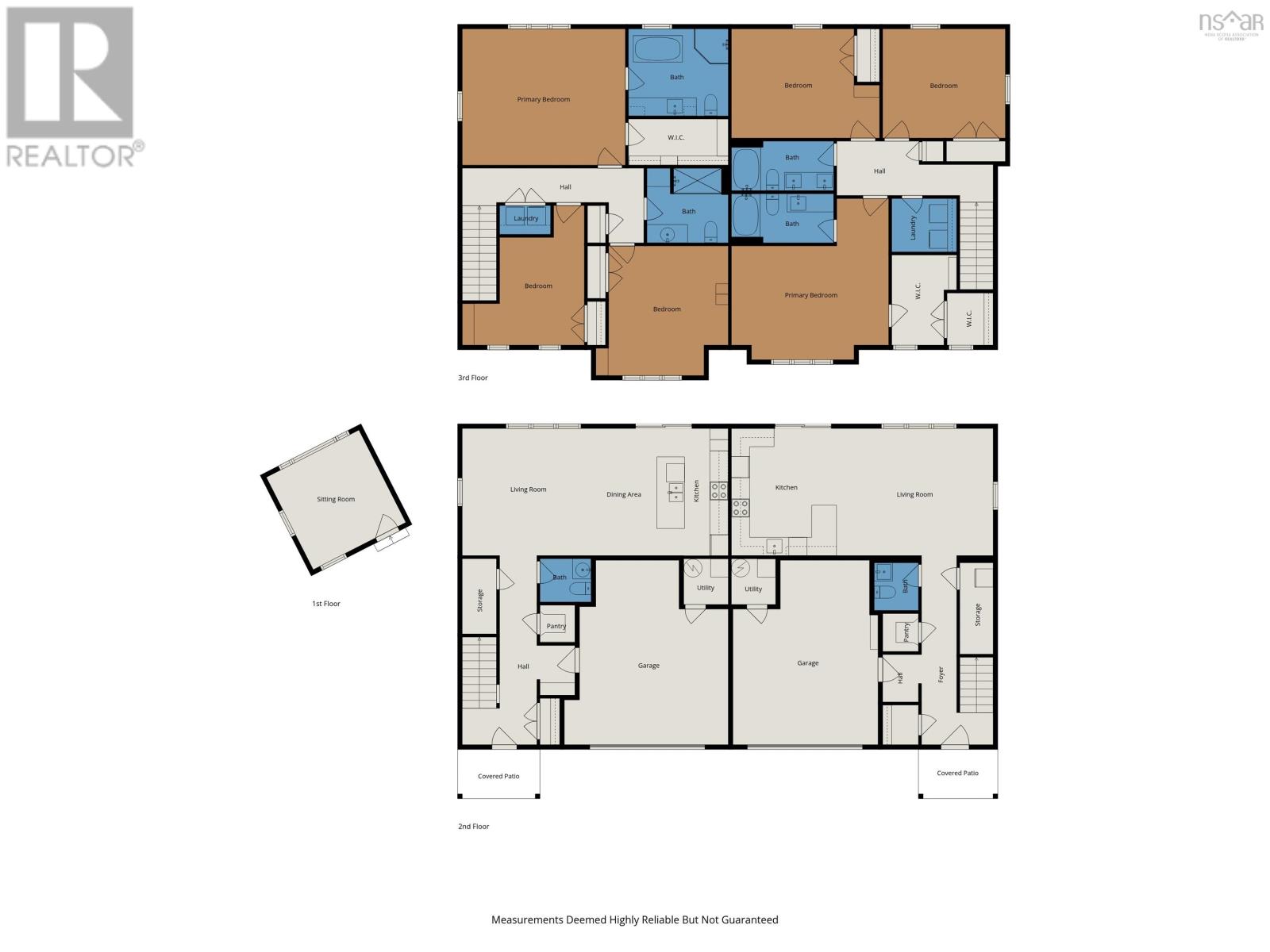
Built in 2022, this ICF-constructed duplex sits on 6.19 acres of land and offers exceptional privacy with its thoughtful setback from the road, all while backing onto crown land for a peaceful, natural setting. Each side features three large bedrooms, two and a half stylish bathrooms (including ensuites), large walk-in closets, 200-amp electrical panels, two mini-split heat pumps, a 1.5 car built-in garage and a metal roof. A separate retreat at the back of the property provides a flexible space ideal for a home office, gym, studio, or a quiet place to unwind. Whether youre looking for an investment property, a home where you can rent out one side, or a spacious family compound, this modern and efficient duplex offers versatility, comfort, and room to grow in a beautiful natural environment. In Williamswood, you are minutes to beaches, lakes, hiking trails, schools, parks, and amenities. (id:32467)

Property Features

Ammenities Near By

  • Ammenities Near By: Park, Playground, Beach

Building

  • Appliances: Range - Electric, Dishwasher, Dryer, Washer, Refrigerator
  • Basement Type: None
  • Construction Style: Side by side
  • Cooling Type: Heat Pump
  • Exterior Finish: Wood shingles, Stone, Vinyl
  • Fireplace: No
  • Flooring Type: Carpeted, Tile
  • Interior Size: 3712 sqft
  • Building Type: Duplex
  • Stories: 2
  • Utility Water: Drilled Well

Features

  • Feature: Treed

Land

  • Land Size: 6.19 ac
  • Sewer: Septic System

Ownership

  • Type: Freehold

Structure

  • Structure: Shed

Information entered by Engel & Volkers
Listing information last updated on: 2026-03-31 18:35:15


Book your free home evaluation with a 1% REALTOR® now!


How much could you save in commission selling with One Percent Realty?

Slide to select your home's price:

$500,000

Your One Percent Realty Commission savings

$500,000

Savings calculated using One Percent Realty East Inc's posted commission rates compared to a brokerage charging 5%. (HST is extra). Not all agents charge the same.

One Percent Realty's top FAQs

Q
What is the deal exactly, with One Percent Realty East?

We are a fully licensed real estate brokerage offering the same top-tier services and exposure as the big names in the industry—but at a lower commission rate. Here's what you can expect when you work with us: ✅ Full MLS® system listing ✅ Exposure on all major internet real estate platforms ✅ Professional signage (where permitted) ✅ Property showings and open houses ✅ Strategic advertising to attract buyers ✅ Skilled negotiation to secure the best deal ✅ Seamless conveyancing to ensure a smooth closing With us, you’re getting everything you need to sell your property successfully—just without the high commission fees.

Q
What do you charge?

Simple, Transparent Pricing—No Surprises! Our commission structure is designed to save you money while providing top-tier service: • Residential Properties Under $400,000: $7,950 • Residential Properties Between $400,000 and $900,000: $9,950 • Residential Properties Over $900,000: 1% of the sale price + $950 Plus applicable taxes. Optional Flexibility: You have the option to offer additional commission to the buyer's agent. The choice is entirely yours! For commercial properties, farms, or development properties, please contact a One Percent Realty East agent directly or fill out the market evaluation form at the bottom right of our website. An agent will be in touch to discuss your specific needs. It’s that simple. Maximum service, minimum commission!

Q
Are your listings on MLS®, REALTOR.ca® and shared across the web?

Yes, yes, and yes! Our listings receive maximum exposure on the MLS® system, REALTOR.ca®, and all major real estate websites, ensuring your property gets seen by as many potential buyers as possible. With us, you’re never compromising on visibility—just saving on commission!


Learn more about the One Percent Realty Deal