SD06B 163 Terrastone Ridge Ridge, DARTMOUTH

2026-03-18
 

Quick Summary

Location
SD06B 163 Terrastone Ridge Ridge, DARTMOUTH, Nova Scotia B2X0C4
Price
$629,900 CAD
Status:
For Sale
Property Type:
Single Family
Area:
2200 sqft
Bedrooms:
3
Bathrooms:
4

MLS®#202604815

Property Description

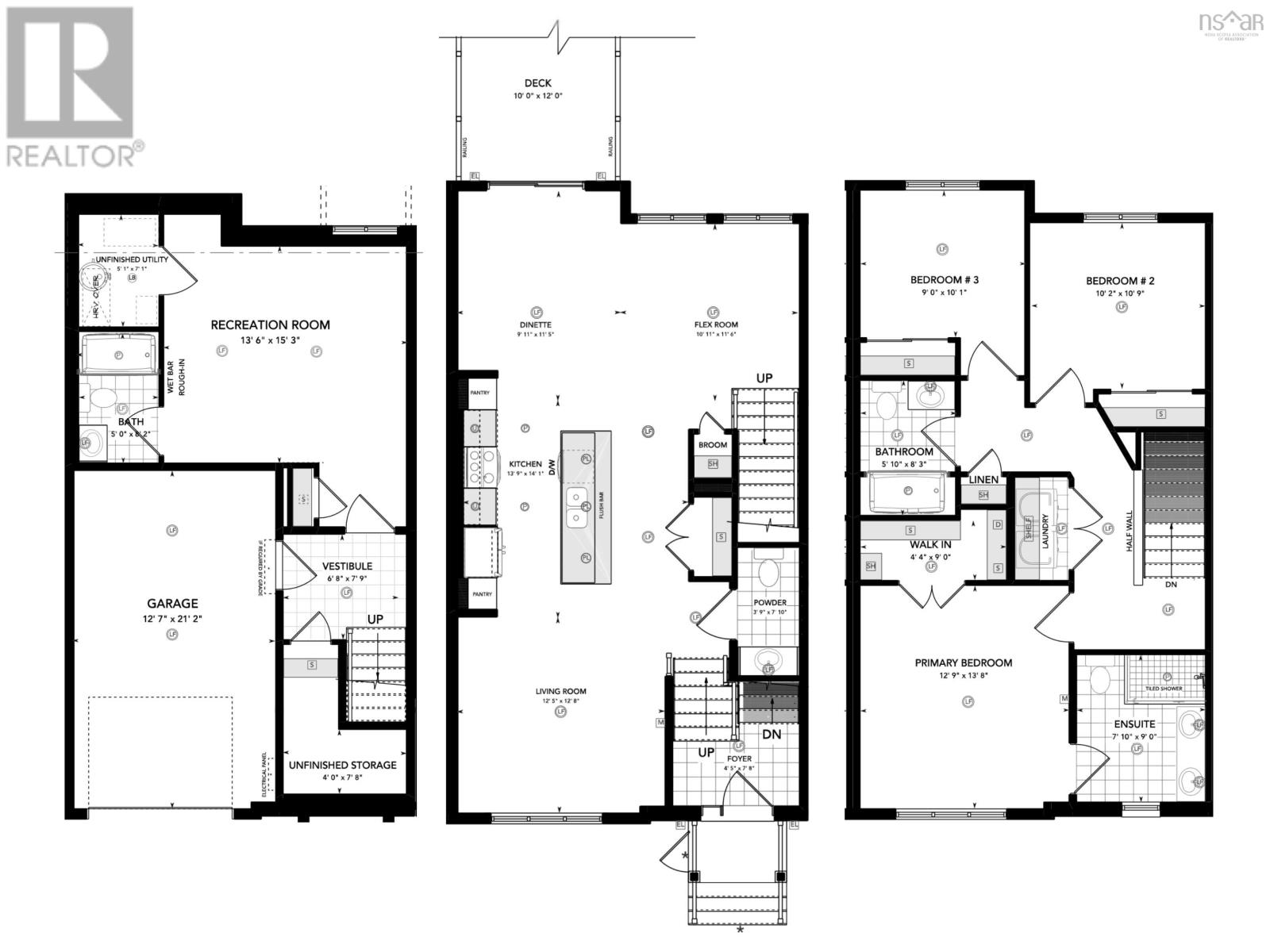
Introducing The Fairbanks by Cresco, a chic 3-bedroom middle unit townhome in one of HRM's most sought-after new communities, The Parks of Lake Charles. This stylish 3-level design features a built-in garage and a bright lookout lower level, offering added natural light and functional living space. The main level is thoughtfully designed for everyday comfort and entertaining, with a spacious living room, dedicated dining area, a well-appointed kitchen complete with pantry, and a convenient powder room. Upstairs, the private primary suite includes a walk-in closet and its own ensuite bath, complemented by two additional bedrooms, a full main bathroom, and a dedicated laundry room for added convenience. The fully finished lower level expands your living space with a large recreation room, full bathroom and wet bar rough-in. The lookout design enhances the lower level with natural light, creating a comfortable, versatile space ideal for relaxing, entertaining, or accommodating guests. The Fairbanks blends modern style with practical design,, delivering comfortable living in a prime Lake Charles location. Disclaimer: Photos shown are facsimiles only. Colour selections and finishes may vary by unit. (id:32467)

Property Features

Ammenities Near By

  • Ammenities Near By: Park, Playground, Public Transit, Shopping, Place of Worship

Building

  • Appliances: Microwave Range Hood Combo
  • Architectural Style: 3 Level
  • Cooling Type: Heat Pump
  • Exterior Finish: Stone, Vinyl
  • Fireplace: No
  • Flooring Type: Ceramic Tile, Hardwood, Laminate
  • Interior Size: 2200 sqft
  • Building Type: Row / Townhouse
  • Stories: 2
  • Utility Water: Municipal water

Land

  • Land Size: 0.0648 ac
  • Sewer: Municipal sewage system

Ownership

  • Type: Freehold

Information entered by Royal LePage Atlantic
Listing information last updated on: 2026-03-24 14:41:11


Book your free home evaluation with a 1% REALTOR® now!


How much could you save in commission selling with One Percent Realty?

Slide to select your home's price:

$500,000

Your One Percent Realty Commission savings

$500,000

Savings calculated using One Percent Realty East Inc's posted commission rates compared to a brokerage charging 5%. (HST is extra). Not all agents charge the same.

Send a Message


One Percent Realty's top FAQs

Q
What is the deal exactly, with One Percent Realty East?

We are a fully licensed real estate brokerage offering the same top-tier services and exposure as the big names in the industry—but at a lower commission rate. Here's what you can expect when you work with us: ✅ Full MLS® system listing ✅ Exposure on all major internet real estate platforms ✅ Professional signage (where permitted) ✅ Property showings and open houses ✅ Strategic advertising to attract buyers ✅ Skilled negotiation to secure the best deal ✅ Seamless conveyancing to ensure a smooth closing With us, you’re getting everything you need to sell your property successfully—just without the high commission fees.

Q
What do you charge?

Simple, Transparent Pricing—No Surprises! Our commission structure is designed to save you money while providing top-tier service: • Residential Properties Under $400,000: $7,950 • Residential Properties Between $400,000 and $900,000: $9,950 • Residential Properties Over $900,000: 1% of the sale price + $950 Plus applicable taxes. Optional Flexibility: You have the option to offer additional commission to the buyer's agent. The choice is entirely yours! For commercial properties, farms, or development properties, please contact a One Percent Realty East agent directly or fill out the market evaluation form at the bottom right of our website. An agent will be in touch to discuss your specific needs. It’s that simple. Maximum service, minimum commission!

Q
Are your listings on MLS®, REALTOR.ca® and shared across the web?

Yes, yes, and yes! Our listings receive maximum exposure on the MLS® system, REALTOR.ca®, and all major real estate websites, ensuring your property gets seen by as many potential buyers as possible. With us, you’re never compromising on visibility—just saving on commission!


Learn more about the One Percent Realty Deal

 

Adrienne Briand BROKER/REALTOR®

Phone:
(902) 499-7998
Mobile:
(902) 499-7998
Email:
abriand@onepercentrealty.com
Support Area:
Bedford, Hammonds Plains, . Halifax, Dartmouth, Sackville, Enfield, Elmsdale, Tantallon, Timberlea, West Bedford, Bedford South, Glen Haven, Glen Margaret, Boutiliers Point

Entering into the buying or selling market can be an overwhelming experience, but with the right REA ...

Full Profile

 

Natalie Urquhart B.A, REALTOR ®, AIC Candidate Member (Appraisal Institute of Canada)

Phone:
(902) 489-0700
Email:
natalieonepercent@gmail.com
Support Area:
Bedford, Halifax, Dartmouth, Tantallon, Timberlea, Sackville, Elmsdale, Enfield, Chester, St Margarets Bay, Ellershouse, Beaver Bank

Selling and buying a home is a significant event. Natalie is a professional who will listen to your ...

Full Profile

 

Jasmine McNair REALTOR®/Associate Broker

Phone:
902.441.4566
Email:
jasmineonepercent@gmail.com
Support Area:
Bedford, Dartmouth, Halifax, Hammonds Plains, West Bedford, Bedford South, Downtown Dartmouth, Downtown Halifax, Tantallon, Fall River, Sackville, Hubley, Enfield, Elmsdale, Mount Uniacke, Clayton Park, Windsor Junction, Waverley, Eastern Passage, Timberlea, Belnan, Wellingto

Experience Exceptional Service with Jasmine...with over 15 years of experience helping clients buy a ...

Full Profile