31 Pleasant Street, MELVERN SQUARE

2026-03-18
 

Quick Summary

Location
31 Pleasant Street, MELVERN SQUARE, Nova Scotia B0P1R0
Price
$549,900 CAD
Status:
For Sale
Property Type:
Single Family
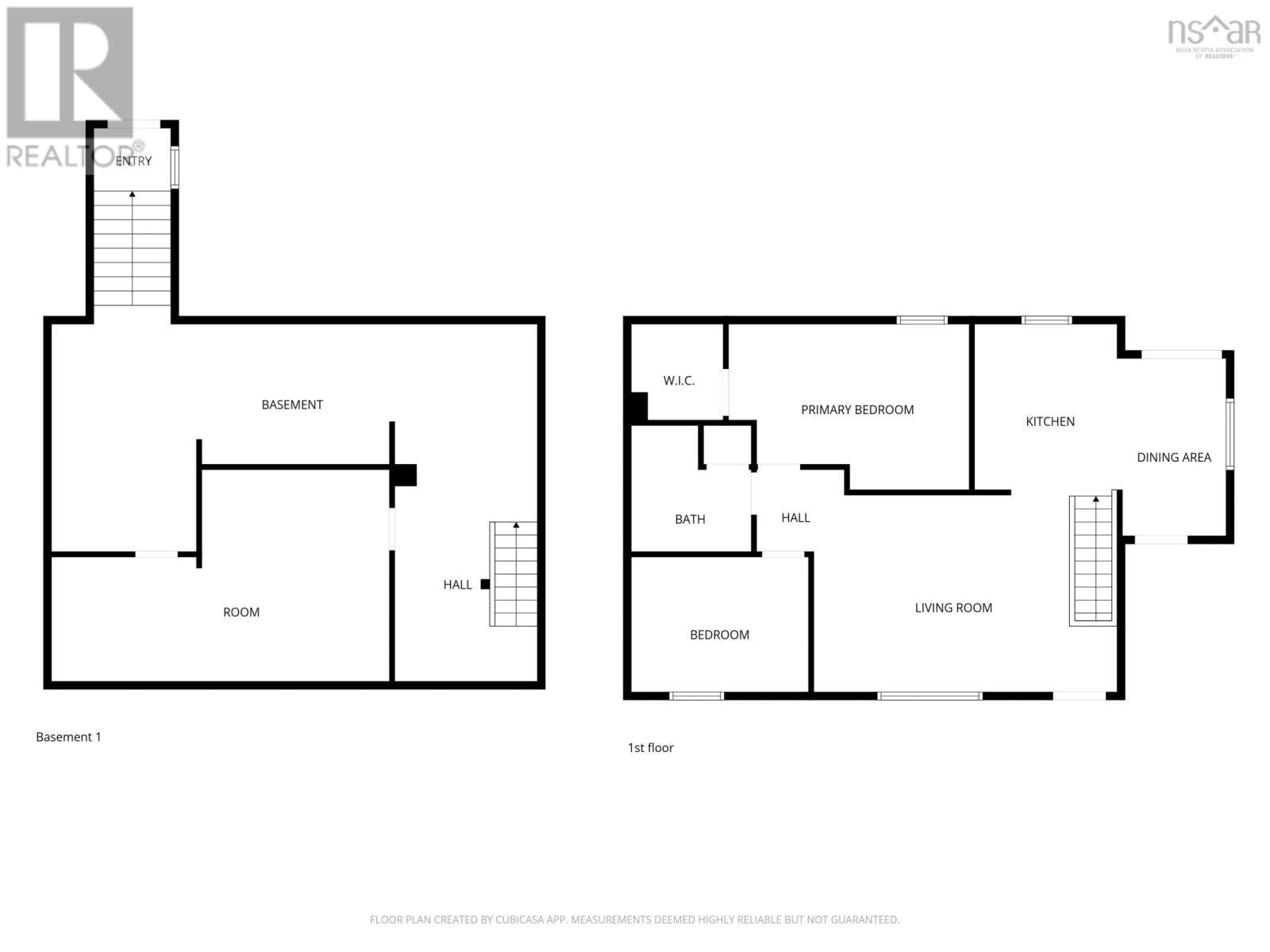
Area:
796 sqft
Bedrooms:
2
Bathrooms:
1
Year of Construction:
1957

MLS®#202604864

Property Description

A rare opportunity to own a property that offers both serious shop workspace and comfortable living. The impressive 2,000 sq.ft. detached garage immediately sets this property apart, offering a 15'9" ceiling height, a 12' x 12' overhead door, a dedicated office space within the garage, and a wheelchair-accessible 2-piece washroom. Ideal for mechanics, tradespeople, contractors, hobbyists, or anyone needing serious workspace at home, this is a unique setup for projects, equipment, vehicles, or business use. And the value doesnt stop there the well maintained two-bedroom, one-bath bungalow sits on just over half an acre and has been thoughtfully updated with a steel roof, windows, siding, hot tub and generator panel. The walkout basement adds future potential for a rental or in-law suite, additional living space, storage, or workshop use. Located just minutes from 14 Wing Greenwood and close to amenities, this versatile property offers an exceptional combination of home, workspace, and future potential. Buyer to verify zoning, approvals, and permitted uses. (id:32467)

Property Features

Building

  • Appliances: Range - Electric, Dishwasher, Refrigerator, Hot Tub
  • Architectural Style: Bungalow
  • Basement Type: Crawl space
  • Construction Style: Detached
  • Cooling Type: Wall unit, Heat Pump
  • Exterior Finish: Wood siding
  • Fireplace: No
  • Flooring Type: Laminate
  • Interior Size: 796 sqft
  • Building Type: House
  • Stories: 1
  • Utility Water: Drilled Well

Features

  • Feature: Treed

Land

  • Land Size: 0.6573 ac
  • Sewer: Septic System

Ownership

  • Type: Freehold

Structure

  • Structure: Shed

Information entered by RE/MAX Banner Real Estate(Greenwood)
Listing information last updated on: 2026-05-08 01:24:51


Book your free home evaluation with a 1% REALTOR® now!


How much could you save in commission selling with One Percent Realty?

Slide to select your home's price:

$500,000

Your One Percent Realty Commission savings

$500,000

Savings calculated using One Percent Realty East Inc's posted commission rates compared to a brokerage charging 5%. (HST is extra). Not all agents charge the same.

One Percent Realty's top FAQs

Q
What is the deal exactly, with One Percent Realty East?

We are a fully licensed real estate brokerage offering the same top-tier services and exposure as the big names in the industry—but at a lower commission rate. Here's what you can expect when you work with us: ✅ Full MLS® system listing ✅ Exposure on all major internet real estate platforms ✅ Professional signage (where permitted) ✅ Property showings and open houses ✅ Strategic advertising to attract buyers ✅ Skilled negotiation to secure the best deal ✅ Seamless conveyancing to ensure a smooth closing With us, you’re getting everything you need to sell your property successfully—just without the high commission fees.

Q
What do you charge?

Simple, Transparent Pricing—No Surprises! Our commission structure is designed to save you money while providing top-tier service: • Residential Properties Under $400,000: $7,950 • Residential Properties Between $400,000 and $900,000: $9,950 • Residential Properties Over $900,000: 1% of the sale price + $950 Plus applicable taxes. Optional Flexibility: You have the option to offer additional commission to the buyer's agent. The choice is entirely yours! For commercial properties, farms, or development properties, please contact a One Percent Realty East agent directly or fill out the market evaluation form at the bottom right of our website. An agent will be in touch to discuss your specific needs. It’s that simple. Maximum service, minimum commission!

Q
Are your listings on MLS®, REALTOR.ca® and shared across the web?

Yes, yes, and yes! Our listings receive maximum exposure on the MLS® system, REALTOR.ca®, and all major real estate websites, ensuring your property gets seen by as many potential buyers as possible. With us, you’re never compromising on visibility—just saving on commission!


Learn more about the One Percent Realty Deal