44 Wildstone Lane, UPPER TANTALLON

2026-04-07
 

Quick Summary

Location
44 Wildstone Lane, UPPER TANTALLON, Nova Scotia B3Z4J8
Price
$599,900 CAD
Status:
For Sale
Property Type:
Single Family
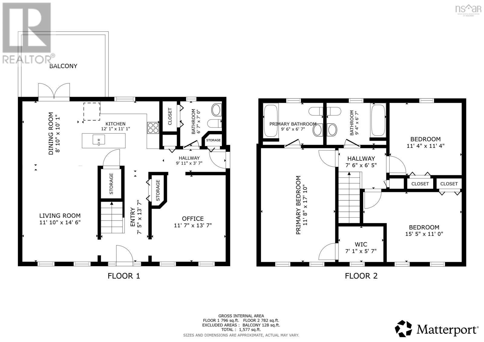
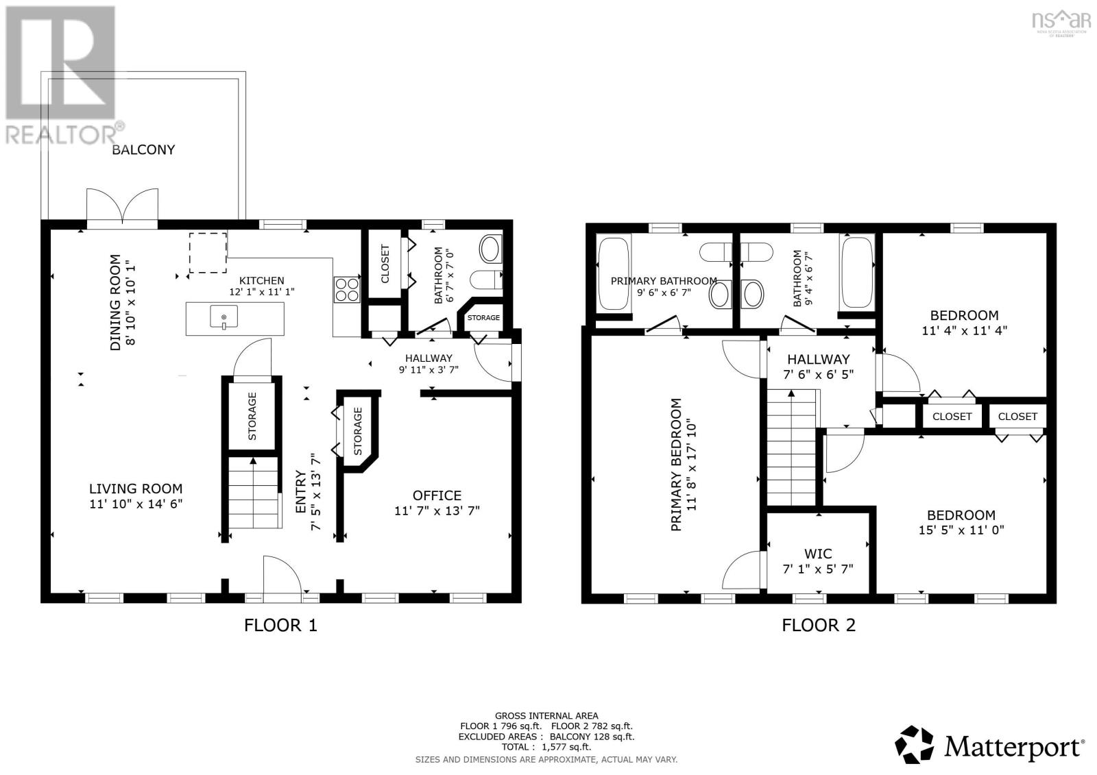
Area:
1664 sqft
Bedrooms:
3
Bathrooms:
3
Year of Construction:
2004
Video Link:

MLS®#202606462

Property Description

Welcome to 44 Wildstone Lane in the desirable subdivision of Westwood Hills in Upper Tantallon. This classic salt-box style two storey home sits on a 2 acre lot on a private lane and offers 3 bedrooms, 2.5 baths, and a functional layout ideal for family living. The main level features a spacious kitchen with beautiful birch cabinets, dining/bonus room, living room, and convenient laundry in the half bath. Originally designed with baking in mind, the kitchen offers generous prep space and a unique center island sink. Upstairs, youll find the primary bedroom with ensuite bath, two additional bedrooms and another full bath. The unfinished walk-out basement, complete with bathroom rough-in, offers excellent potential for future development. Recent updates include new roof shingles (Nov 2025), front and side decks replaced in 2021, and 2 heat pumps for added comfort. Current annual private road maintenance is $300/year. Close to all the amenities Tantallon has to offer. makes this a wonderful opportunity to own in a fantastic neighbourhood. (id:32467)

Property Features

Ammenities Near By

  • Ammenities Near By: Golf Course, Park, Playground, Public Transit, Shopping, Place of Worship

Building

  • Appliances: Stove, Dishwasher, Dryer, Washer, Microwave, Refrigerator, Water softener
  • Construction Style: Detached
  • Cooling Type: Heat Pump
  • Exterior Finish: Vinyl
  • Fireplace: No
  • Flooring Type: Carpeted, Ceramic Tile, Laminate
  • Interior Size: 1664 sqft
  • Building Type: House
  • Stories: 2
  • Utility Water: Drilled Well

Features

  • Feature: Walk-In Closet

Land

  • Land Size: 2.0264 ac
  • Sewer: Septic System

Ownership

  • Type: Freehold

Structure

  • Structure: Shed

Information entered by Sutton Group Professional Realty
Listing information last updated on: 2026-04-23 18:31:04


Book your free home evaluation with a 1% REALTOR® now!


How much could you save in commission selling with One Percent Realty?

Slide to select your home's price:

$500,000

Your One Percent Realty Commission savings

$500,000

Savings calculated using One Percent Realty East Inc's posted commission rates compared to a brokerage charging 5%. (HST is extra). Not all agents charge the same.

One Percent Realty's top FAQs

Q
What is the deal exactly, with One Percent Realty East?

We are a fully licensed real estate brokerage offering the same top-tier services and exposure as the big names in the industry—but at a lower commission rate. Here's what you can expect when you work with us: ✅ Full MLS® system listing ✅ Exposure on all major internet real estate platforms ✅ Professional signage (where permitted) ✅ Property showings and open houses ✅ Strategic advertising to attract buyers ✅ Skilled negotiation to secure the best deal ✅ Seamless conveyancing to ensure a smooth closing With us, you’re getting everything you need to sell your property successfully—just without the high commission fees.

Q
What do you charge?

Simple, Transparent Pricing—No Surprises! Our commission structure is designed to save you money while providing top-tier service: • Residential Properties Under $400,000: $7,950 • Residential Properties Between $400,000 and $900,000: $9,950 • Residential Properties Over $900,000: 1% of the sale price + $950 Plus applicable taxes. Optional Flexibility: You have the option to offer additional commission to the buyer's agent. The choice is entirely yours! For commercial properties, farms, or development properties, please contact a One Percent Realty East agent directly or fill out the market evaluation form at the bottom right of our website. An agent will be in touch to discuss your specific needs. It’s that simple. Maximum service, minimum commission!

Q
Are your listings on MLS®, REALTOR.ca® and shared across the web?

Yes, yes, and yes! Our listings receive maximum exposure on the MLS® system, REALTOR.ca®, and all major real estate websites, ensuring your property gets seen by as many potential buyers as possible. With us, you’re never compromising on visibility—just saving on commission!


Learn more about the One Percent Realty Deal