102 Ingram Drive, FALL RIVER

2026-04-09
 

Quick Summary

Location
102 Ingram Drive, FALL RIVER, Nova Scotia B2T1A4
Price
$924,900 CAD
Status:
For Sale
Property Type:
Single Family
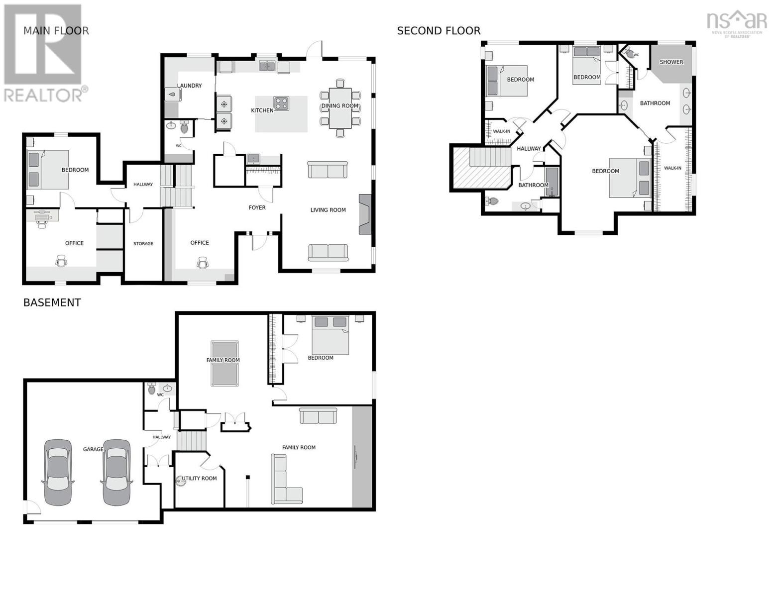
Area:
4236 sqft
Bedrooms:
4 bed +1
Bathrooms:
4
Year of Construction:
1999
Video Link:
Open House:
11/04/2026 02:00:00 PM to
11/04/2026 04:00:00 PM

MLS®#202606779

Property Description

This stunning home is a must-see for every family! From the moment you step inside, youll appreciate the bright, open-concept main floor - perfectly designed for everyday living and entertaining. The spacious living and dining areas flow seamlessly into a beautifully appointed kitchen, complete with a large centre island, ample cabinetry, coffee bar with separate prep sink, pantry, and plenty of workspace - truly a chefs delight. A convenient powder room, laundry room, and dedicated office space with custom built ins complete this level. Upstairs, the generous primary suite offers a relaxing retreat with its own ensuite oasis. Three additional well-sized bedrooms, and a full main bath provide plenty of room for family living. The fully finished lower level is ideal for guests or extended family, featuring a family room, media room, fifth bedroom, and an additional 2-piece bath off of the garage entrance. Step outside to enjoy your own private oasis, complete with a hot tub and outdoor kitchen - perfect for relaxing or entertaining family and friends. Added features are irrigation system and wired for generator. Located just minutes from Highway 102 to Halifax and Highway 118 to Dartmouth, this home offers both convenience and lifestyle. (id:32467)

Property Features

Ammenities Near By

  • Ammenities Near By: Shopping, Place of Worship

Building

  • Appliances: Oven, Dishwasher, Dryer, Washer, Freezer, Refrigerator
  • Basement Development: Finished
  • Basement Type: Full (Finished)
  • Construction Style: Detached
  • Cooling Type: Heat Pump
  • Exterior Finish: Brick, Vinyl
  • Fireplace: Yes
  • Flooring Type: Hardwood, Laminate
  • Interior Size: 4236 sqft
  • Building Type: House
  • Stories: 2
  • Utility Water: Municipal water

Land

  • Land Size: 0.9895 ac
  • Sewer: Septic System

Ownership

  • Type: Freehold

Structure

  • Structure: Shed

Information entered by RE/MAX Nova
Listing information last updated on: 2026-04-09 21:20:31


Book your free home evaluation with a 1% REALTOR® now!


How much could you save in commission selling with One Percent Realty?

Slide to select your home's price:

$500,000

Your One Percent Realty Commission savings

$500,000

Savings calculated using One Percent Realty East Inc's posted commission rates compared to a brokerage charging 5%. (HST is extra). Not all agents charge the same.

Send a Message


One Percent Realty's top FAQs

Q
What is the deal exactly, with One Percent Realty East?

We are a fully licensed real estate brokerage offering the same top-tier services and exposure as the big names in the industry—but at a lower commission rate. Here's what you can expect when you work with us: ✅ Full MLS® system listing ✅ Exposure on all major internet real estate platforms ✅ Professional signage (where permitted) ✅ Property showings and open houses ✅ Strategic advertising to attract buyers ✅ Skilled negotiation to secure the best deal ✅ Seamless conveyancing to ensure a smooth closing With us, you’re getting everything you need to sell your property successfully—just without the high commission fees.

Q
What do you charge?

Simple, Transparent Pricing—No Surprises! Our commission structure is designed to save you money while providing top-tier service: • Residential Properties Under $400,000: $7,950 • Residential Properties Between $400,000 and $900,000: $9,950 • Residential Properties Over $900,000: 1% of the sale price + $950 Plus applicable taxes. Optional Flexibility: You have the option to offer additional commission to the buyer's agent. The choice is entirely yours! For commercial properties, farms, or development properties, please contact a One Percent Realty East agent directly or fill out the market evaluation form at the bottom right of our website. An agent will be in touch to discuss your specific needs. It’s that simple. Maximum service, minimum commission!

Q
Are your listings on MLS®, REALTOR.ca® and shared across the web?

Yes, yes, and yes! Our listings receive maximum exposure on the MLS® system, REALTOR.ca®, and all major real estate websites, ensuring your property gets seen by as many potential buyers as possible. With us, you’re never compromising on visibility—just saving on commission!


Learn more about the One Percent Realty Deal

 

Jasmine McNair REALTOR®/Associate Broker

Phone:
902.441.4566
Email:
jasmineonepercent@gmail.com
Support Area:
Bedford, Dartmouth, Halifax, Hammonds Plains, West Bedford, Bedford South, Downtown Dartmouth, Downtown Halifax, Tantallon, Fall River, Sackville, Hubley, Enfield, Elmsdale, Mount Uniacke, Clayton Park, Windsor Junction, Waverley, Eastern Passage, Timberlea, Belnan, Wellingto

Experience Exceptional Service with Jasmine...with over 15 years of experience helping clients buy a ...

Full Profile

 

Maureen Ross REALTOR®

Phone:
902-802-6068
Email:
maureen@maureenross.ca
Support Area:
Bedford, Dartmouth, Halifax, Fall River, Windsor Junction, Sackville, Timberlea, Tant

Understanding. Honesty. Accountability. Confidentiality. This is what you will experience when part ...

Full Profile