509 Fitch Road, LAWRENCETOWN

2026-04-13
 

Quick Summary

Location
509 Fitch Road, LAWRENCETOWN, Nova Scotia B0S1M0
Price
$549,000 CAD
Status:
For Sale
Property Type:
Single Family
Area:
1884 sqft
Bedrooms:
2
Bathrooms:
2
Year of Construction:
2008
Video Link:

MLS®#202607220

Property Description

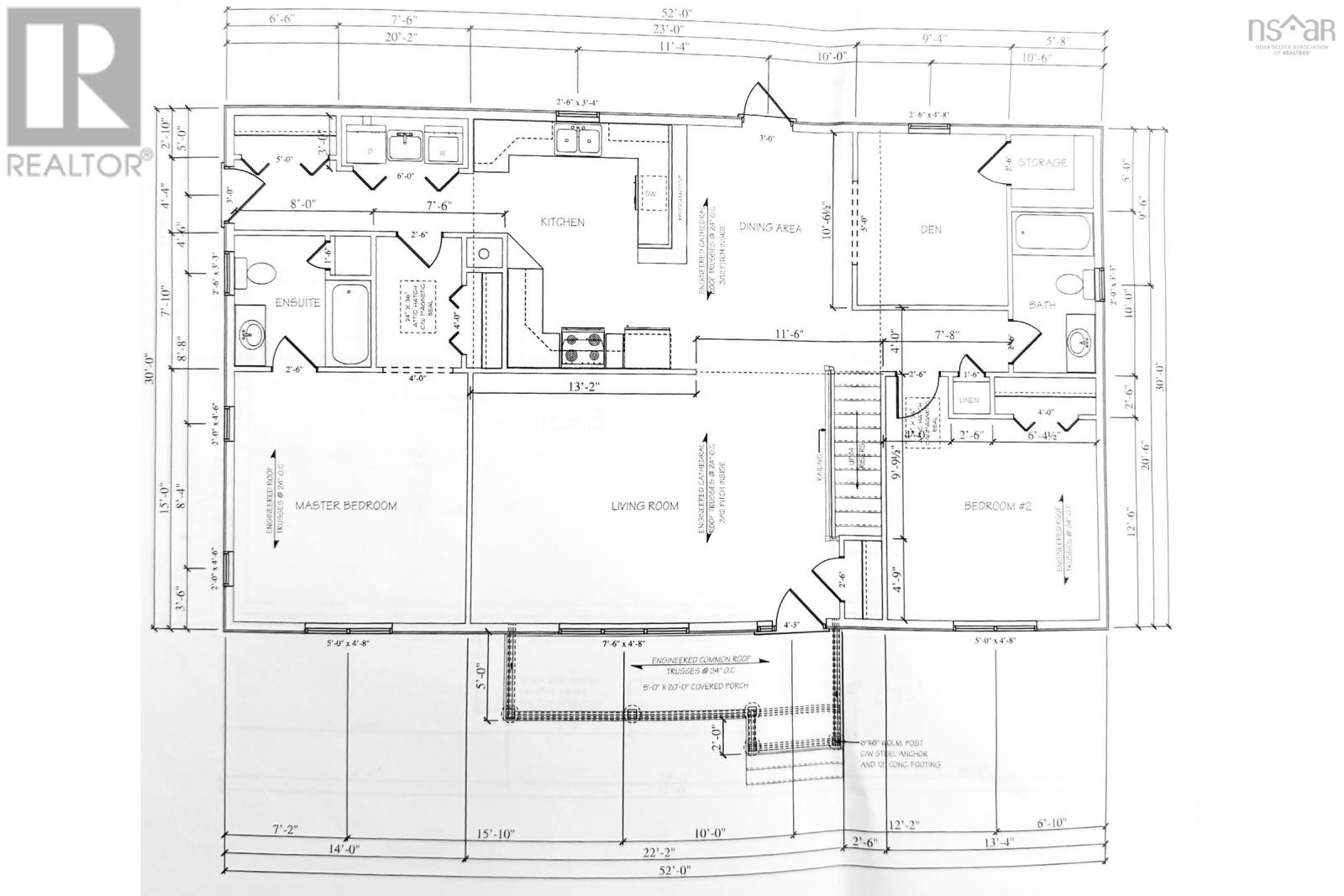
This immaculate 2/3-bedroom, 2-bathroom bungalow sits on 19.58 surveyed acres in a pastoral setting with lovely views of mountains and pastures, a brook at the back of the property, and perennial gardens that add charm throughout the seasons. Original owners - first time on market! Built in 2008 to a standard that well exceeded code, the home has been exceptionally maintained and shows pride of ownership at every turn. The main floor offers oak hardwood floors, a cathedral ceiling, ceiling fans throughout, a bright living room, main floor laundry, and a den that converts easily to a third bedroom. The primary bedroom features a 4-piece ensuite, and a second full bath serves the rest of the home. Covered front and rear decks make outdoor living easy, with a circular drive completing the curb appeal. The full-height basement is partially finished and currently used as a home gym, with plenty of room to expand living space further. Heating is efficient and versatile - the wood furnace keeps it cozy with only 2 cords per year, supplemented by a heat pump and electric baseboard throughout, plus an HRV for air quality. Built with R40 attic insulation and R30 in walls, casement windows, 200 amp panel, drilled well, water softener, and modern septic. The cleared, level acreage is ideal for hobby farming or animals. A detached 20x12 garage, greenhouse, and large shed round out the outbuildings. Fresh paint throughout. Bell high speed internet. Minutes to Middleton and Bridgetown amenities, with CFB Greenwood a short commute. Hard to beat this combo at only $549,000! (id:32467)

Property Features

Ammenities Near By

  • Ammenities Near By: Golf Course, Park, Playground, Public Transit, Shopping, Place of Worship, Beach

Building

  • Appliances: Stove, Dishwasher, Dryer, Washer, Refrigerator
  • Architectural Style: Bungalow
  • Basement Development: Partially finished
  • Basement Type: Full (Partially finished)
  • Construction Style: Detached
  • Cooling Type: Heat Pump
  • Exterior Finish: Vinyl
  • Fireplace: No
  • Flooring Type: Carpeted, Hardwood, Vinyl
  • Interior Size: 1884 sqft
  • Building Type: House
  • Stories: 1
  • Utility Water: Drilled Well

Features

  • Feature: Level

Land

  • Land Size: 19.5816 ac
  • Sewer: Septic System

Ownership

  • Type: Freehold

Structure

  • Structure: Shed

Information entered by RE/MAX Banner Real Estate(Greenwood)
Listing information last updated on: 2026-04-22 00:26:41


Book your free home evaluation with a 1% REALTOR® now!


How much could you save in commission selling with One Percent Realty?

Slide to select your home's price:

$500,000

Your One Percent Realty Commission savings

$500,000

Savings calculated using One Percent Realty East Inc's posted commission rates compared to a brokerage charging 5%. (HST is extra). Not all agents charge the same.

One Percent Realty's top FAQs

Q
What is the deal exactly, with One Percent Realty East?

We are a fully licensed real estate brokerage offering the same top-tier services and exposure as the big names in the industry—but at a lower commission rate. Here's what you can expect when you work with us: ✅ Full MLS® system listing ✅ Exposure on all major internet real estate platforms ✅ Professional signage (where permitted) ✅ Property showings and open houses ✅ Strategic advertising to attract buyers ✅ Skilled negotiation to secure the best deal ✅ Seamless conveyancing to ensure a smooth closing With us, you’re getting everything you need to sell your property successfully—just without the high commission fees.

Q
What do you charge?

Simple, Transparent Pricing—No Surprises! Our commission structure is designed to save you money while providing top-tier service: • Residential Properties Under $400,000: $7,950 • Residential Properties Between $400,000 and $900,000: $9,950 • Residential Properties Over $900,000: 1% of the sale price + $950 Plus applicable taxes. Optional Flexibility: You have the option to offer additional commission to the buyer's agent. The choice is entirely yours! For commercial properties, farms, or development properties, please contact a One Percent Realty East agent directly or fill out the market evaluation form at the bottom right of our website. An agent will be in touch to discuss your specific needs. It’s that simple. Maximum service, minimum commission!

Q
Are your listings on MLS®, REALTOR.ca® and shared across the web?

Yes, yes, and yes! Our listings receive maximum exposure on the MLS® system, REALTOR.ca®, and all major real estate websites, ensuring your property gets seen by as many potential buyers as possible. With us, you’re never compromising on visibility—just saving on commission!


Learn more about the One Percent Realty Deal