31 Piggott Avenue, FALL RIVER

2025-11-14
 

Quick Summary

Location
31 Piggott Avenue, FALL RIVER, Nova Scotia B2T1S7
Price
$749,900 CAD
Status:
For Sale
Property Type:
Single Family
Area:
2750 sqft
Bedrooms:
3 bed +1
Bathrooms:
4
Year of Construction:
2004
Video Link:

MLS®#202527806

Property Description

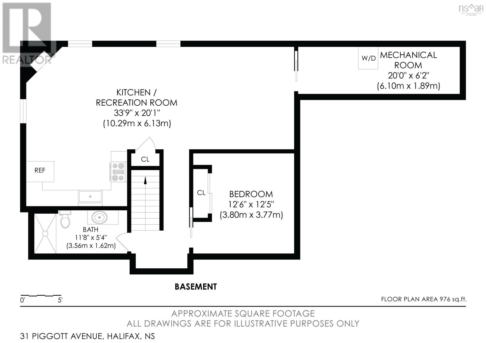
Your search is over for a lovely 2-storey home in Fall River with a in-law suite. Main floor is an open concept with a convenient den/office, a formal dining room, a dining nook, which leads to the 2-tier deck sun room and pool area, living room with a propane fireplace, mud room located off the double garage, laundry space and a 2 pc bath. 3 spacious bedrooms upstairs, double garage, Radon mitigation sysyem, plenty of parking, private yard excellent for gardening. Primary bedroom offers an ensuite and a walk-in closet and a family bath completes this level. Lower level has a secondary open concept 1-bedroom in-law suite with a private office space, offering privacy for the grandparents/family members, kitchen, new bathroom with a 5ft custom shower, large storage and walk-out. (id:32467)

Property Features

Building

  • Appliances: Stove, Dishwasher, Dryer, Washer, Microwave Range Hood Combo, Refrigerator
  • Basement Development: Finished
  • Basement Features: Walk out
  • Basement Type: Full (Finished)
  • Construction Style: Detached
  • Exterior Finish: Vinyl
  • Fireplace: Yes
  • Flooring Type: Hardwood, Laminate, Tile
  • Interior Size: 2750 sqft
  • Building Type: House
  • Stories: 2
  • Utility Water: Drilled Well

Features

  • Feature: Level

Land

  • Land Size: 1.7062 ac
  • Sewer: Septic System

Ownership

  • Type: Freehold

Structure

  • Structure: Shed

Information entered by Sutton Group Professional Realty
Listing information last updated on: 2025-12-01 00:27:07


Book your free home evaluation with a 1% REALTOR® now!


How much could you save in commission selling with One Percent Realty?

Slide to select your home's price:

$500,000

Your One Percent Realty Commission savings

$500,000

Savings calculated using One Percent Realty East Inc’s posted commission rates compared to a brokerage charging 5%. (HST is extra). Not all agents charge the same.

Send a Message


One Percent Realty's top FAQs

Q
What is the deal exactly, with One Percent Realty East?

We are a fully licensed real estate brokerage offering the same top-tier services and exposure as the big names in the industry—but at a lower commission rate. Here's what you can expect when you work with us: ✅ Full MLS® system listing ✅ Exposure on all major internet real estate platforms ✅ Professional signage (where permitted) ✅ Property showings and open houses ✅ Strategic advertising to attract buyers ✅ Skilled negotiation to secure the best deal ✅ Seamless conveyancing to ensure a smooth closing With us, you’re getting everything you need to sell your property successfully—just without the high commission fees.

Q
What do you charge?

Simple, Transparent Pricing—No Surprises! Our commission structure is designed to save you money while providing top-tier service: • Residential Properties Under $400,000: $7,950 • Residential Properties Between $400,000 and $900,000: $9,950 • Residential Properties Over $900,000: 1% of the sale price + $950 Plus applicable taxes. Optional Flexibility: You have the option to offer additional commission to the buyer's agent. The choice is entirely yours! For commercial properties, farms, or development properties, please contact a One Percent Realty East agent directly or fill out the market evaluation form at the bottom right of our website. An agent will be in touch to discuss your specific needs. It’s that simple. Maximum service, minimum commission!

Q
Are your listings on MLS®, REALTOR.ca® and shared across the web?

Yes, yes, and yes! Our listings receive maximum exposure on the MLS® system, REALTOR.ca®, and all major real estate websites, ensuring your property gets seen by as many potential buyers as possible. With us, you’re never compromising on visibility—just saving on commission!


Learn more about the One Percent Realty Deal

 

Jasmine McNair REALTOR®/Associate Broker

Phone:
902.441.4566
Email:
jasmineonepercent@gmail.com
Support Area:
Bedford, Dartmouth, Halifax, Hammonds Plains, West Bedford, Bedford South, Downtown Dartmouth, Downtown Halifax, Tantallon, Fall River, Sackville, Hubley, Enfield, Elmsdale, Mount Uniacke, Clayton Park, Windsor Junction, Waverley, Eastern Passage, Timberlea, Belnan, Wellingto

Experience Exceptional Service with Jasmine McNairWith over 550 homes sold in the past 14 years ...

Full Profile

 

Maureen Ross REALTOR®

Phone:
902-802-6068
Email:
maureen@maureenross.ca
Support Area:
Bedford, Dartmouth, Halifax, Fall River, Windsor Junction, Sackville, Timberlea, Tant

Understanding. Honesty. Accountability. Confidentiality. This is what you will experience when part ...

Full Profile