124 Parish Street, FALL RIVER

2025-11-27
 

Quick Summary

Location
124 Parish Street, FALL RIVER, Nova Scotia B2T0W9
Price
$809,900 CAD
Status:
For Sale
Property Type:
Single Family
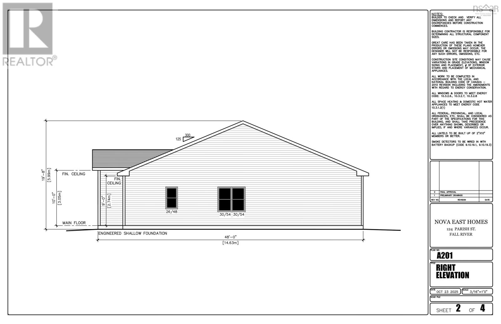
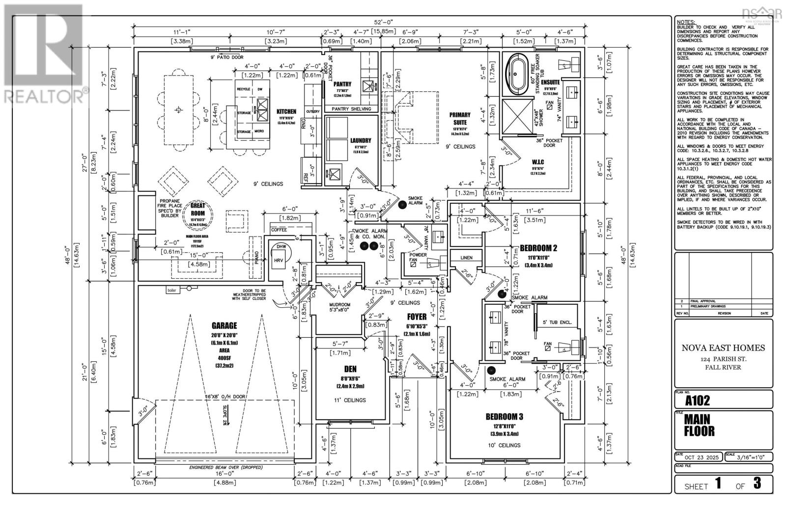
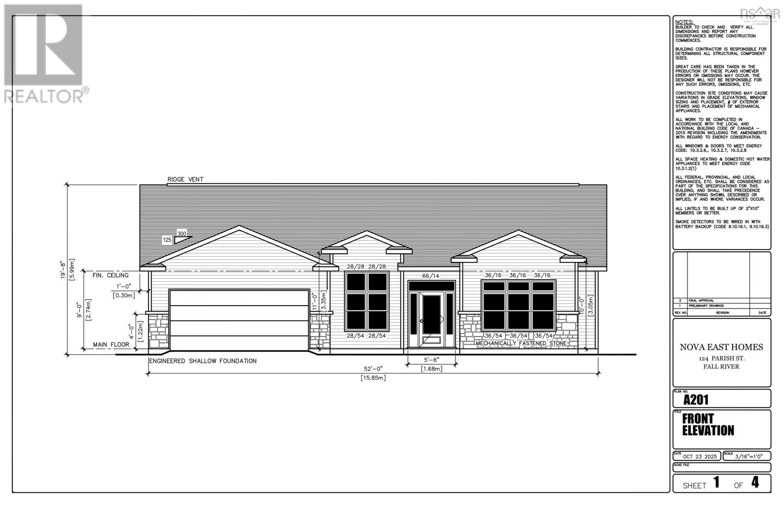
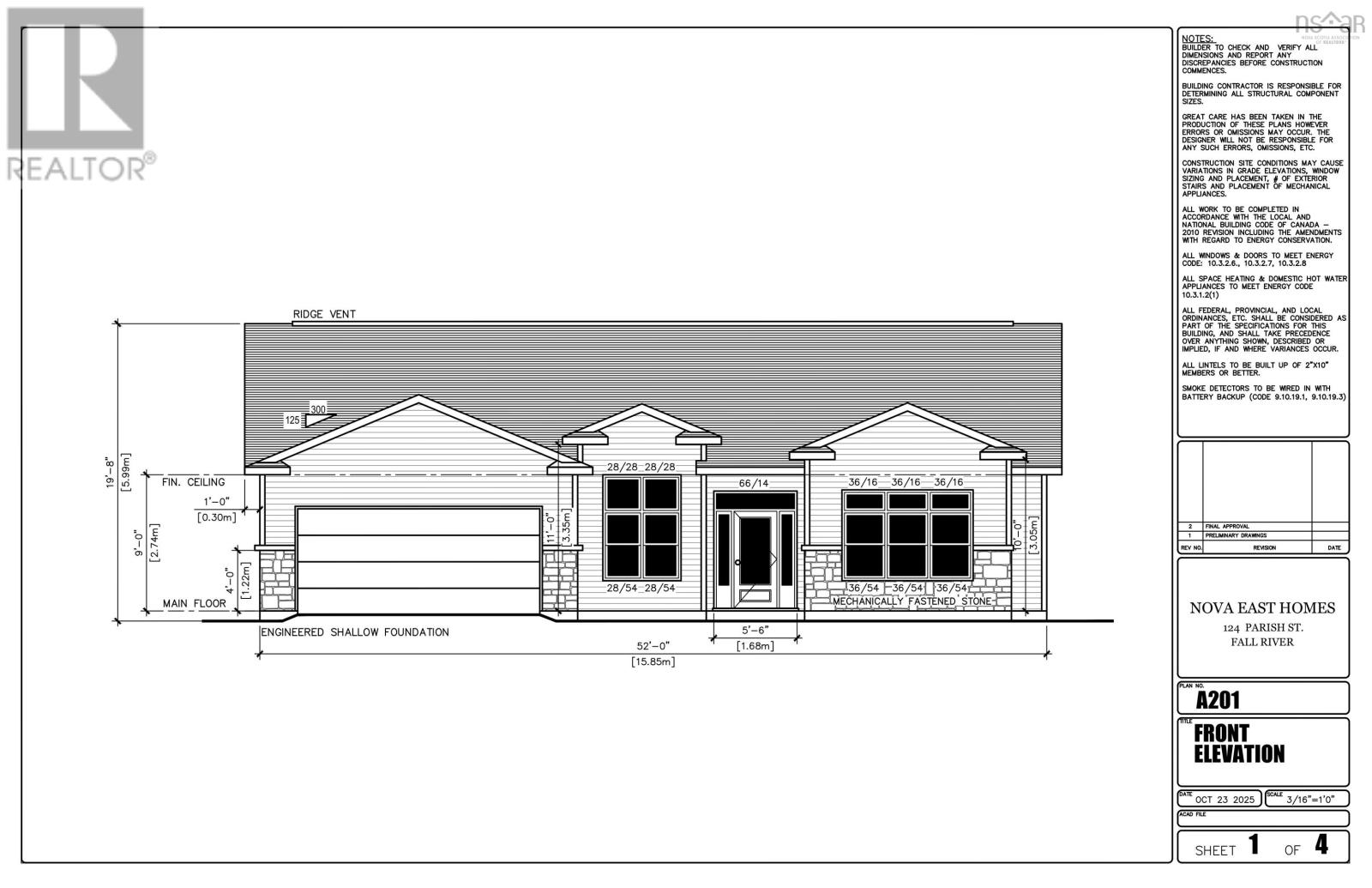
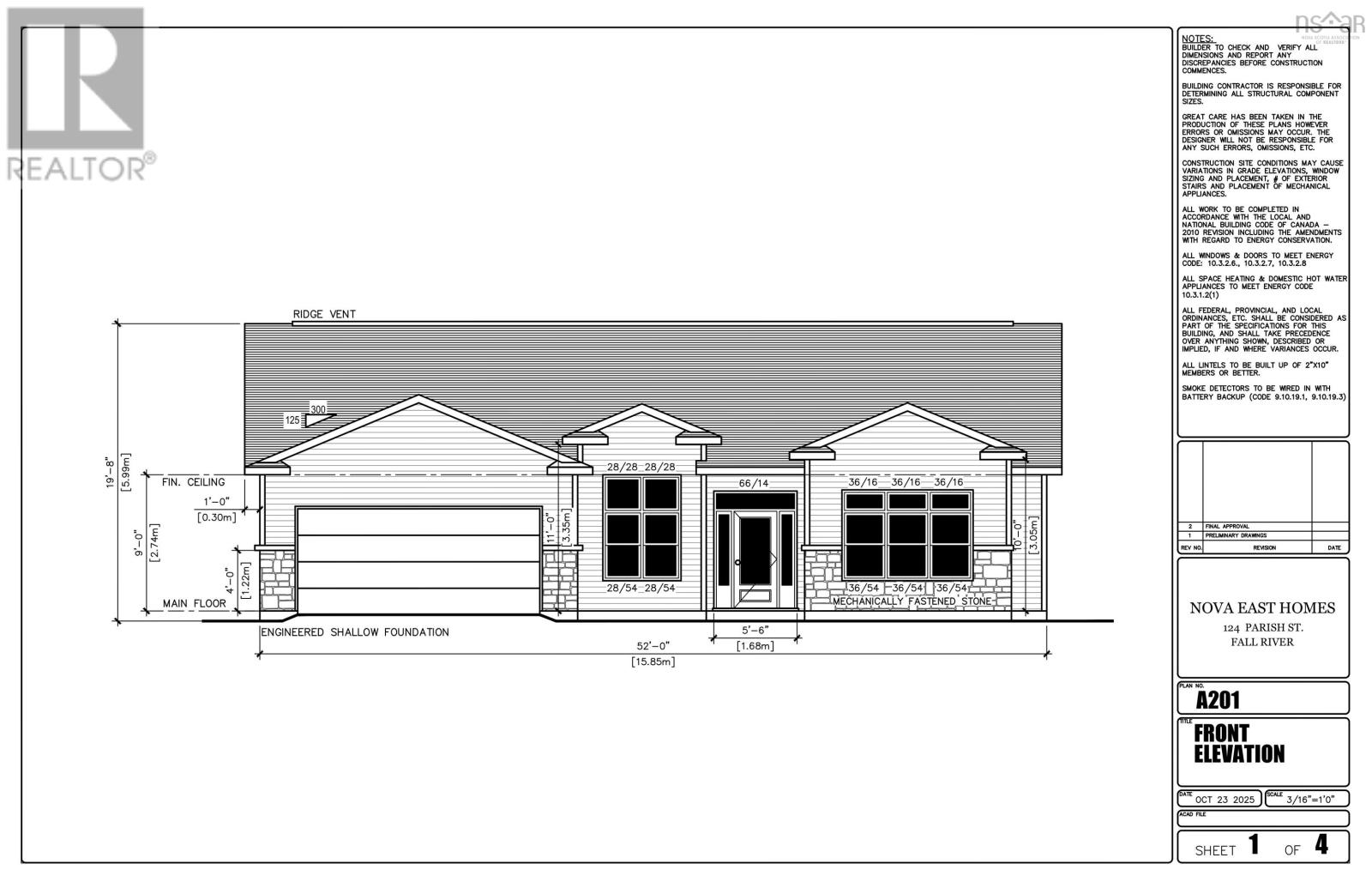
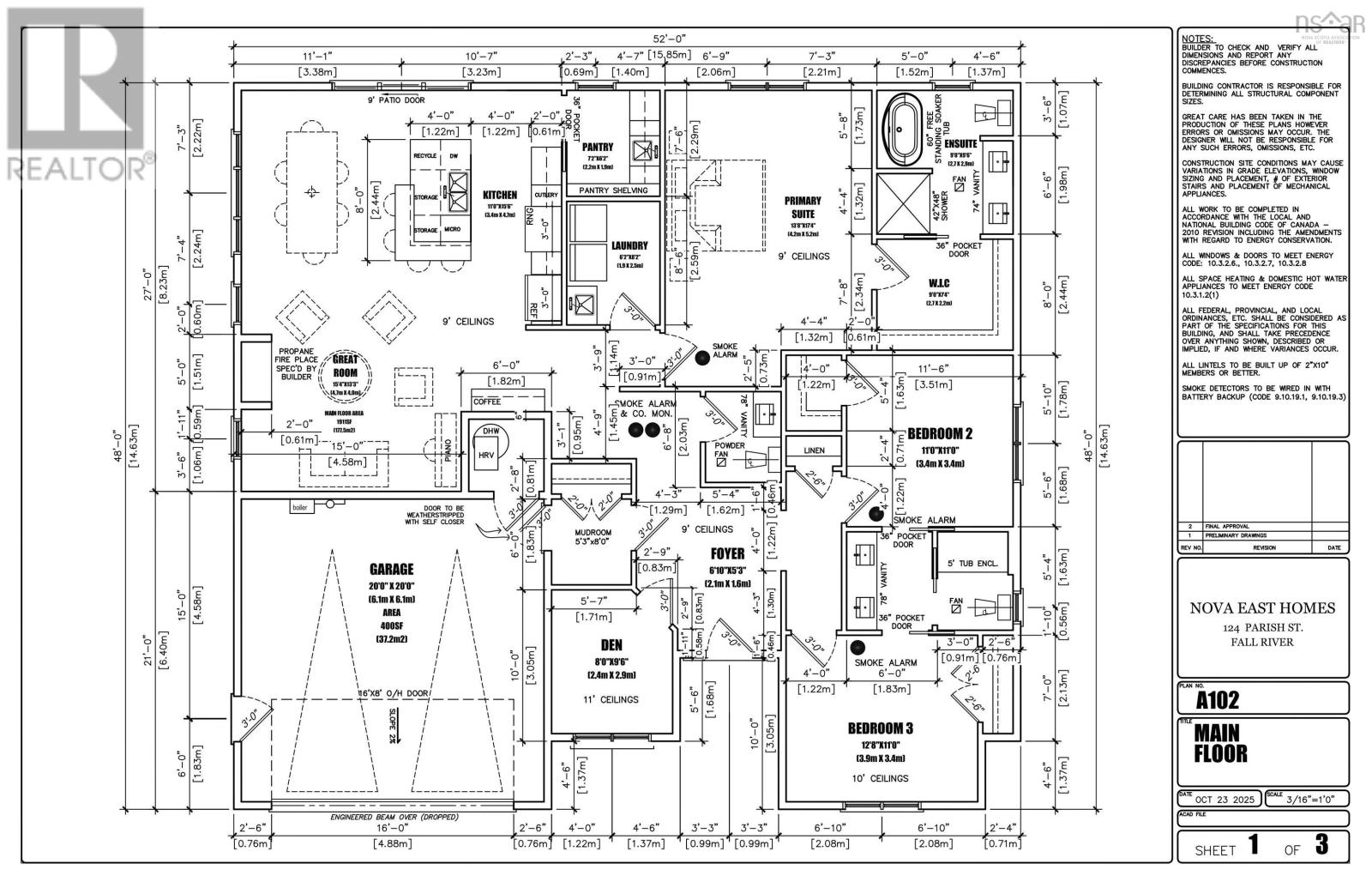
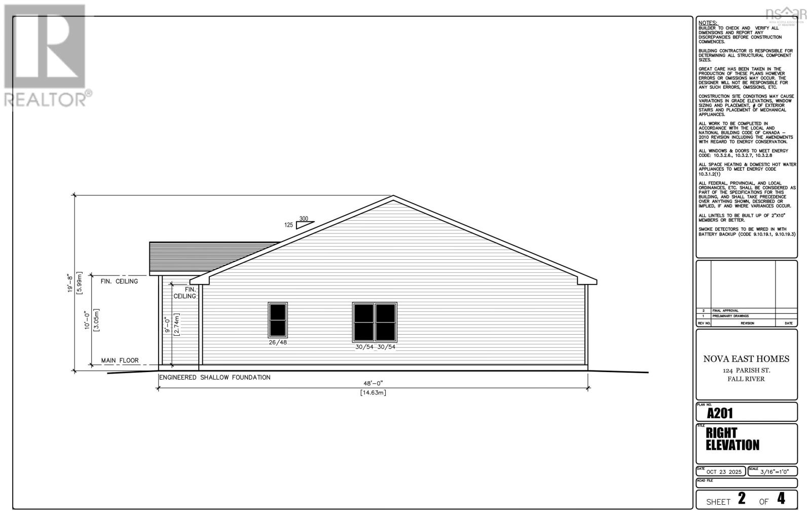
Area:
1911 sqft
Bedrooms:
3
Bathrooms:
3

MLS®#202528683

Property Description

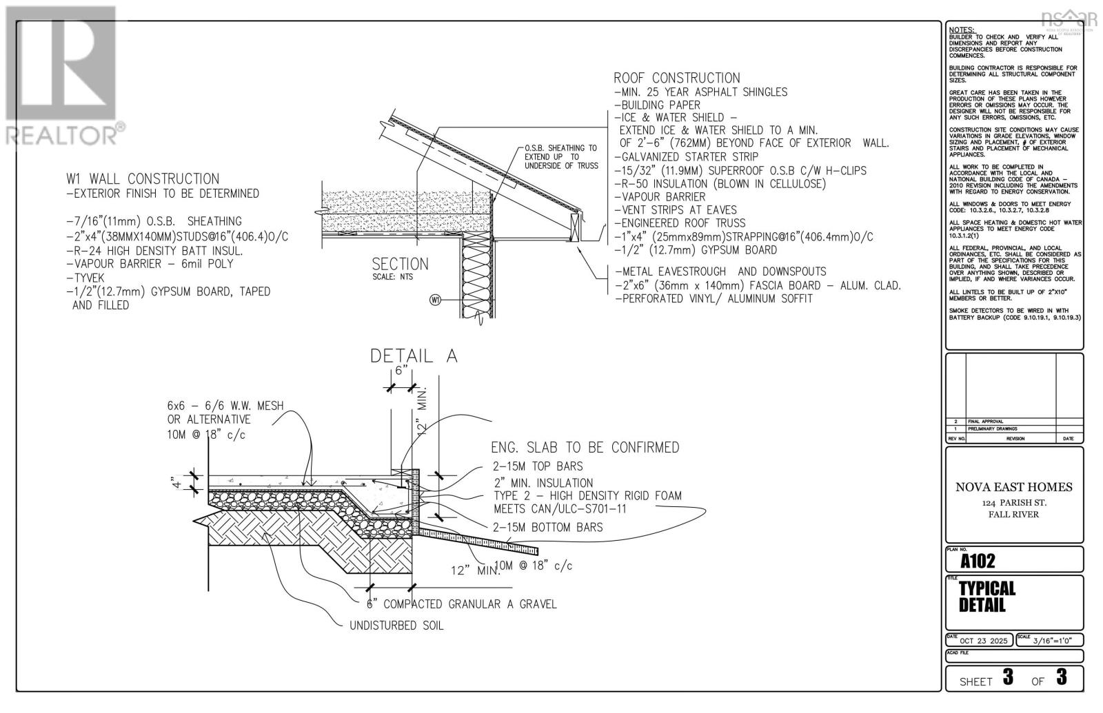
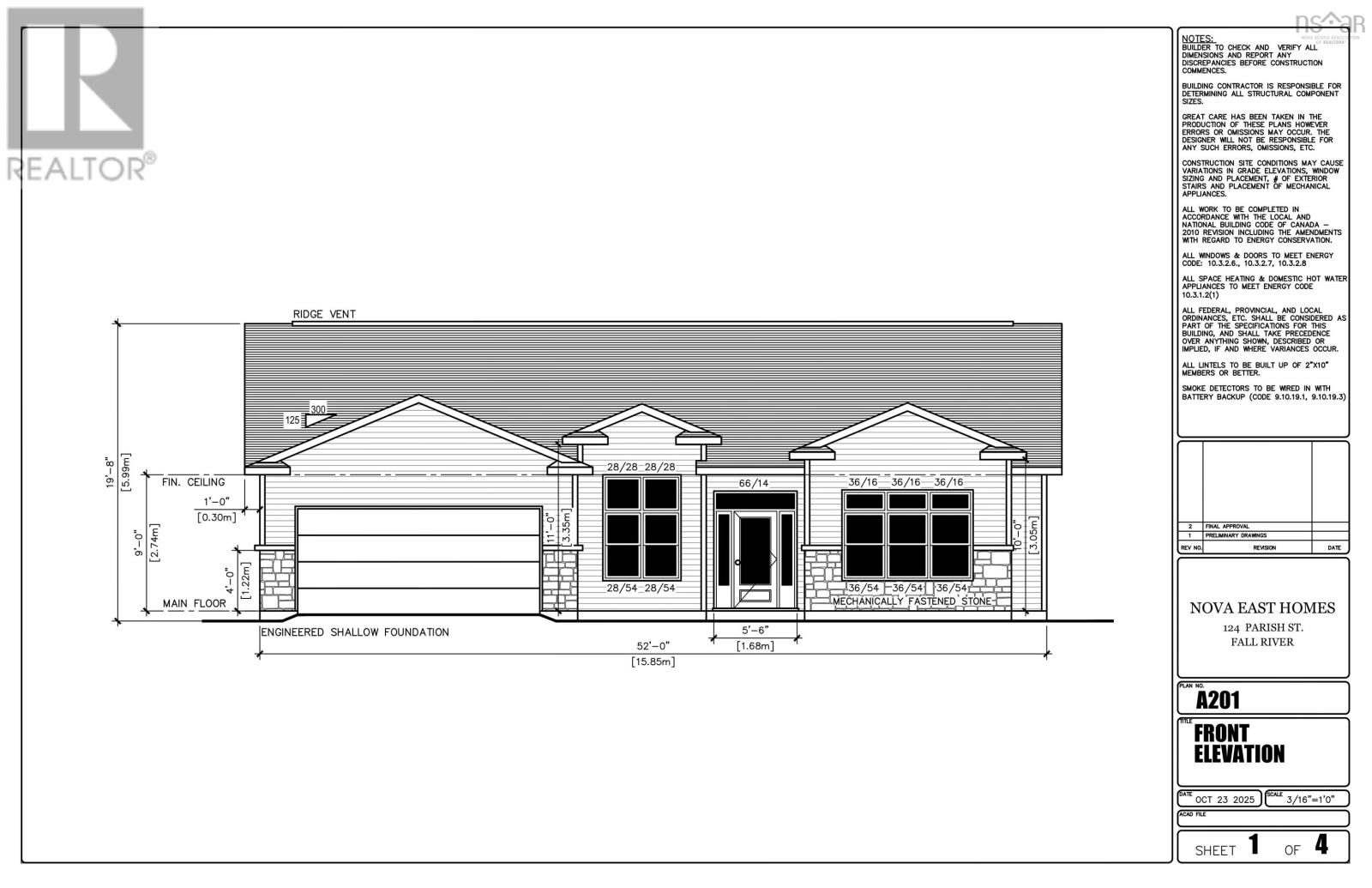
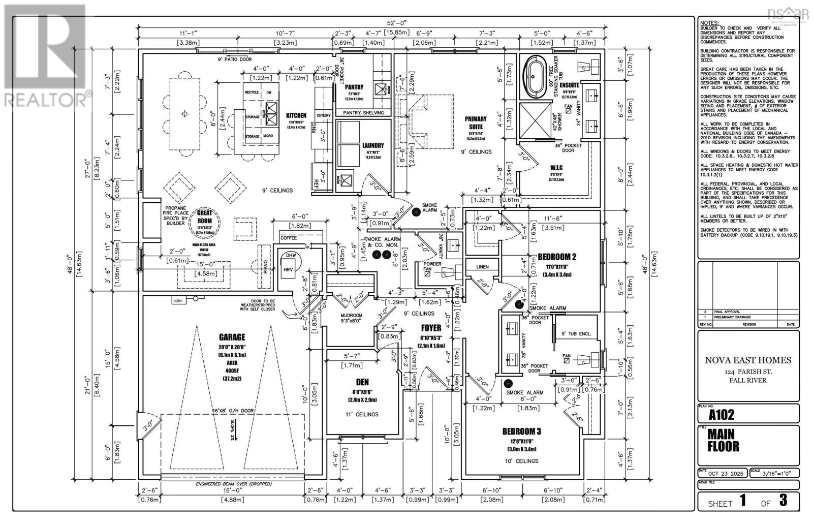
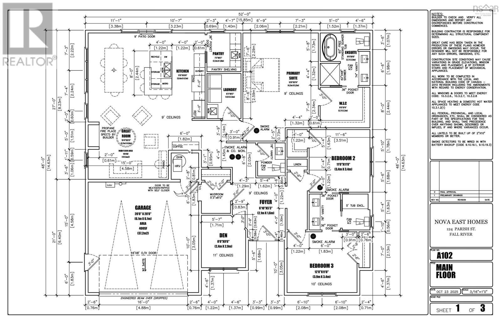
Welcome to this stunning new construction from Nova East Homes nestled in beautiful Kinloch Estates in Fall River, where modern comfort meets natural tranquility. This thoughtfully designed home offers 1,911 square feet of meticulously crafted living space, perfectly balancing functionality with contemporary elegance. Step inside to discover three generously sized bedrooms, including a primary bedroom with ensuite and a Jack & Jill ensuite for the other two bedrooms. Nine foot ceilings throughout lend to the spacious feeling. Enjoy the convenience of one-level living with in-floor radiant heat throughout the living space. The surrounding area boasts a blend of natural beauty and convenient amenities. Built with attention to detail and quality craftsmanship, this home showcases superior construction materials and modern finishes throughout. Don't miss the chance to be the first owner of this remarkable home. (id:32467)

Property Features

Ammenities Near By

  • Ammenities Near By: Golf Course, Park, Playground, Shopping, Place of Worship

Building

  • Appliances: None
  • Basement Type: None
  • Construction Style: Detached
  • Cooling Type: Wall unit, Heat Pump
  • Exterior Finish: Stone, Vinyl
  • Fireplace: Yes
  • Flooring Type: Tile, Vinyl Plank
  • Interior Size: 1911 sqft
  • Building Type: House
  • Stories: 1
  • Utility Water: Drilled Well

Land

  • Land Size: 1.6525 ac
  • Sewer: Septic System

Ownership

  • Type: Freehold

Information entered by Keller Williams Select Realty
Listing information last updated on: 2026-04-03 12:10:04


Book your free home evaluation with a 1% REALTOR® now!


How much could you save in commission selling with One Percent Realty?

Slide to select your home's price:

$500,000

Your One Percent Realty Commission savings

$500,000

Savings calculated using One Percent Realty East Inc's posted commission rates compared to a brokerage charging 5%. (HST is extra). Not all agents charge the same.

Send a Message


One Percent Realty's top FAQs

Q
What is the deal exactly, with One Percent Realty East?

We are a fully licensed real estate brokerage offering the same top-tier services and exposure as the big names in the industry—but at a lower commission rate. Here's what you can expect when you work with us: ✅ Full MLS® system listing ✅ Exposure on all major internet real estate platforms ✅ Professional signage (where permitted) ✅ Property showings and open houses ✅ Strategic advertising to attract buyers ✅ Skilled negotiation to secure the best deal ✅ Seamless conveyancing to ensure a smooth closing With us, you’re getting everything you need to sell your property successfully—just without the high commission fees.

Q
What do you charge?

Simple, Transparent Pricing—No Surprises! Our commission structure is designed to save you money while providing top-tier service: • Residential Properties Under $400,000: $7,950 • Residential Properties Between $400,000 and $900,000: $9,950 • Residential Properties Over $900,000: 1% of the sale price + $950 Plus applicable taxes. Optional Flexibility: You have the option to offer additional commission to the buyer's agent. The choice is entirely yours! For commercial properties, farms, or development properties, please contact a One Percent Realty East agent directly or fill out the market evaluation form at the bottom right of our website. An agent will be in touch to discuss your specific needs. It’s that simple. Maximum service, minimum commission!

Q
Are your listings on MLS®, REALTOR.ca® and shared across the web?

Yes, yes, and yes! Our listings receive maximum exposure on the MLS® system, REALTOR.ca®, and all major real estate websites, ensuring your property gets seen by as many potential buyers as possible. With us, you’re never compromising on visibility—just saving on commission!


Learn more about the One Percent Realty Deal

 

Jasmine McNair REALTOR®/Associate Broker

Phone:
902.441.4566
Email:
jasmineonepercent@gmail.com
Support Area:
Bedford, Dartmouth, Halifax, Hammonds Plains, West Bedford, Bedford South, Downtown Dartmouth, Downtown Halifax, Tantallon, Fall River, Sackville, Hubley, Enfield, Elmsdale, Mount Uniacke, Clayton Park, Windsor Junction, Waverley, Eastern Passage, Timberlea, Belnan, Wellingto

Experience Exceptional Service with Jasmine...with over 15 years of experience helping clients buy a ...

Full Profile

 

Maureen Ross REALTOR®

Phone:
902-802-6068
Email:
maureen@maureenross.ca
Support Area:
Bedford, Dartmouth, Halifax, Fall River, Windsor Junction, Sackville, Timberlea, Tant

Understanding. Honesty. Accountability. Confidentiality. This is what you will experience when part ...

Full Profile